EasyManua.ls Logo

Carrier 50DK024 - Page 11

Carrier 50DK024
32 pages
Print Icon
To Next Page IconTo Next Page
To Next Page IconTo Next Page
To Previous Page IconTo Previous Page
To Previous Page IconTo Previous Page
Loading...
STANDARD FILTERS
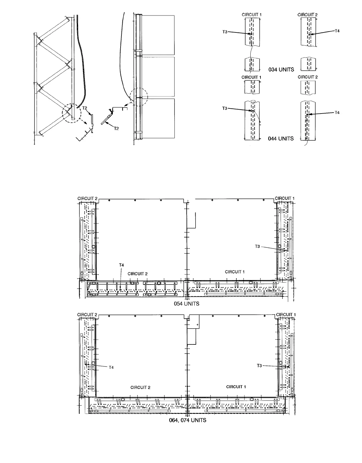
Fig. 17 Thermistor T3 and T4 Locations,
034,044 Units
Fig. 18 Thermistor T3 and T4 Locations, 054-074 Units
BAG FILTERS
Fig. 16 Thermistor T2 Location, 054-074 Units
11

Table of Contents

Other manuals for Carrier 50DK024

Related product manuals