EasyManua.ls Logo

Carrier FA4ANF - Circuit Board Function and Troubleshooting HK61 GA001 and HK61 GA003 PCB; Step 1-PCB Component Layout and Description

Carrier FA4ANF
52 pages
Print Icon
To Next Page IconTo Next Page
To Next Page IconTo Next Page
To Previous Page IconTo Previous Page
To Previous Page IconTo Previous Page
Loading...
IF FAN RUNS CONTINUOUSLY:
1. If PCB has no low-voltage power, check blue and black fan
leads. These may be switched at sequencer/relay.
2. If PCB has low-voltage power, check fan relay to see if it is
opening and closing. It may be stuck in the normally-closed
position due to debris in relay.
TRANSFORMER FAILURE:
1. Check 208-v and 230-v transformer connections. They may be
miswired.
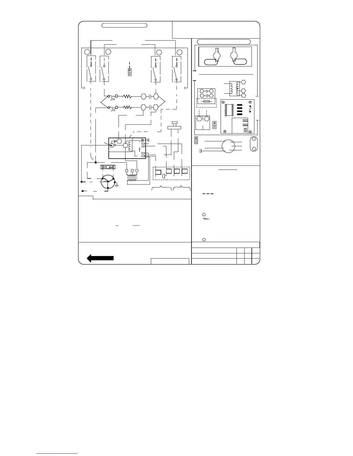
CIRCUIT BOARD FUNCTION AND TROUBLESHOOTING
HK61GA001 and HK61GA003 Circuit Boards
This section of the service manual describes the HK61GA001 and
HK61GA003 printed-circuit boards (PCB) by examining the
functional operation of the printed-circuit board’s components.
Step 1—PCB Component Layout and Description
Layout of the actual printed-circuit boards are depicted in
Fig. 6 and Fig. 7.
1. The low-voltage terminal board is used to connect the indoor
thermostat to the low, 24-v side of the transformer, and to
serve as a junction between the indoor thermostat and the
outdoor section.
2. Break off the tabs.
a. W2-3 Used to control (stage) the second stage of electric
heat. The first stage controlling electric heat and the indoor
fan are interlocked through diodes.
b. W2-E Used to control (stage) the third stage of electric
heat.
3. A fuse is used to protect the low-voltage transformer.
4. AUX 1 and AUX 2 are connections for the latent capacity
control, delay off kit, 2-speed kit and air conditioning acces-
sories.
5. F1, F2, F3, and F4 are connections for the indoor fan.
6. EAC1 and EAC2 are 240-v connections, which parallel fan
lead connections, for the electronic air cleaner.
7. L1 and L2 are 240-v connections which parallel power input.
8. T1, T2 and T3 are connections for the primary, high-voltage
side of the transformer.
9. The fan relay is controlled by the thermostat and turns the fan
on and off.
10. A plug is used as the connection for the PCB power and
electric heaters. Note the pin numbers on the plug.
11. Diodes provide DC power for the fan relay and the first stage
of electric heat: W2, W3 or E.
Fig. 3B—FF1D Typical Wiring Diagram
A98229
SEE NOTE #7
F
1
NO
NC
SPT
OUTDOOR
UNIT
G
PCB
BLK
C
INDOOR
THERMOSTAT
BARRIER
C
T
R
FR
NOTES:
SEE RATING PLATE FOR VOLTS & HERTZ
DISCONNECT PER NEC
FIELD POWER WIRING
COOLING CONTROLS
ELECTRIC HEAT
230V
208V
BRN
RED
TRAN
COM
GRN/YEL
GND
YEL
LO
HI
COM
RED
YEL
BLK
FM
BRN
BRN
CAP
RELAY 1
22 VDC COIL
R E C
SCHEMATIC DIAGRAM
COMPONENT ARRANGEMENT
CAUTION:
ATTENTION:
NOT SUITABLE FOR USE ON SYSTEMS EXCEEDING 150V TO GROUND
NE CONVIENT PAS AUX INSTALLATIONS DE PLUS DE 150 V A LA TERRE
COM
208 V
230 V
TRAN
RED
24 V
BRN
GND
NC
NO
SPT
FR
T
C
1
R
G
PCB
F
L2 L1
DISC
60A 60A
RED-LOW
BLK-HI
GRN/YEL-GND
FM
BRN
BRN
YEL-COM
FAN MOTOR THERMALLY PROTECTED
CAP
GND
SEE NOTE #5
LEGEND
RED
ORN
VIO
GND
2
HTR2
BLK
8
LS2
6
HTR1
BLK
4
LS1
RELAY 1
YEL
BLK
SEE NOTE #1
BLK
SYSTEM TRANSFORMER: 40.0VA
FAN COIL/HEATER: 8.4VA
REMAINING VA AVAILABLE: 31.6VA
REC
01
2
8
6
4
RELAY 1
CAP
CAPACITOR
COM
COMMON
F
FUSE
FM
FAN MOTOR
FIELD POWER WIRING
FR
PCB FAN RELAY
EQUIPMENT GROUND
GND
SPT
FAN SPEED TAP LOCATION
HTR
HEATER
LS
LIMIT SWITCH
MARKED TERMINAL
PLUG AND RECEPTACLE
PCB
PRINTED CIRCUIT BOARD
REC
RECTIFIER
TRAN
TRANSFORMER
UNMARKED TERMINAL
RWG
324494-101 REV. A
1. Use copper wire (75¡c min) only between disconnect switch and unit.
2. To be wired in accordance with nec and local codes.
3. If any of the original wire, as supplied, must be replaced, use the same or
equivalent type wire.
4. Replace low voltage fuse with no greater than 5 AMP fuse.
5. (2) Speed Motor uses HI (BLK) and LOW (RED).
6. Smaller heaters will have fewer components.
7. Connect R to R, G to G, etc., see outdoor instructions for details.
8. Cooling controls wiring not used with electric heaters.
HTR
HTR
LS
LS
DISC
DISCONNECT
YEL
YEL
BLU
BLK
BRN
RED
GRY
GRY
ORN
YEL
BLK
DISC
DISC
BLU
BLK
DISC
YEL
DISC
VIO
BLK
SEE NOTE #8
SEE NOTE #8
YEL
L1
SEE NOTE #6
L1
L2
L2
MINIMUM MOTOR SPEED SELECTION
FAN COIL SIZE
MOTOR SPEED ONE HTR
MOTOR SPEED TWO HTR
LO
LO LO
LO LO
LO
018 024 030
ROTATION
This compartment must be closed except
when servicing.
6

Table of Contents

Related product manuals