EasyManua.ls Logo

Carrier FC4BNF - PCB Component Functions

Carrier FC4BNF
52 pages
Print Icon
To Next Page IconTo Next Page
To Next Page IconTo Next Page
To Previous Page IconTo Previous Page
To Previous Page IconTo Previous Page
Loading...
Step 2—PCB Component Functions
LOW-VOLTAGE TERMINAL BOARD
The low-voltage terminal board connects the indoor thermostat to
the outdoor unit as shown in Fig. 8. The terminals are listed as
follows along with their functional control.
1. R is used to connect the secondary side of the transformer. The
red wire provides low voltage (24v) to the PCB and the
thermostat. R is fused on the HK61GA003 board.
2. C is used to connect the brown wire of the thermostat to
provide a return path to ground through the fuse which
protects the transformer. C is fused on the HK61GA001 board.
3. G is used to control the switching of the relay to turn the fan
on through the normally open contact of the relay.
4. Y on the HK61GA001 is used as the junction for the outdoor
section’s Y connection which controls the compressor contac-
tor for heat pump and cooling modes. The HK61GA003 board
contains a 90-sec fan-off delay which begins timing when the
Y is de-energized.
5. O is used as a junction for a heat pump reversing valve circuit.
6. W2 is used to turn on the first stage of electric heat which is
interlocked with the fan through the normally closed fan relay.
Unless the tabs are broken off, all stages of electric heat will
turn on when W2 receives a signal from the thermostat.
7. W3 is used to turn on the second stage of electric heat. Note
the W2 and W3 tab must be broken off for individual staging
to take place. Energizing W3 will always turn on the first stage
through the diodes even if the tabs are broken off.
8. E is used to turn on the third stage of electric heat. Note that
the W3 and E tab must be broken for this individual staging.
Energizing E will always turn on the first stage through the
diodes even if the tab is broken off.
9. L is used as a junction to wire a diagnostic light (LED) on
selected thermostats.
TRANSFORMER
The proper wiring of the transformer on the HK61GA001 board is
illustrated in Fig. 8. Note that T1, T2, and T3 are wired to the
primary or high side of the transformer. The blue wire is connected
to T3 for 208-v applications. The red wire is connected to T3 for
230-v applications. Units are factory wired at 230v. The T2
terminal is a dummy.
INDOOR FAN
1. Wiring--The fan connects to F1, F2, F3, and F4 as shown in
Fig. 8. Note that F2 and F3 are dummy terminals. The desired
fan speed is connected to F4 and the common is connected to
F1. Units are factory wired at medium speed.
2. Functional Control
a. Thermostat and Relay Control--When the thermostat calls
for the fan in cooling, heat pump, electric heat, or fan-only
mode, a 24-v dc signal is sent to the relay. This causes the
relay to close its normally open contacts, thus turning on
the fan. When the thermostat no longer calls for the fan, the
signal sent to the relay is turned off and the relay opens
causing the fan to turn off. The HK61GA003 board
contains a 90-sec fan-off delay when Y is de-energized.
b. Sequencer Interlock--The fan will also turn on whenever
there is any call for electric heat, even if the fan relay is not
energized. This happens because the fan is interlocked with
the first stage of electric heat through the normally closed
contact of the fan relay.
ELECTRIC HEAT
When the thermostat calls for electric heat, a 24-v signal is sent to
the PCB through W2, causing the first stage to turn on. W3 and E
also receive the signal if the tabs are not broken off the PCB. The
signal sent to W2 causes the first stage to turn on. If the tabs are
broken off the PCB, the sequencers can be controlled individually
to stage the electric heat. The sequence control is described in the
following section:
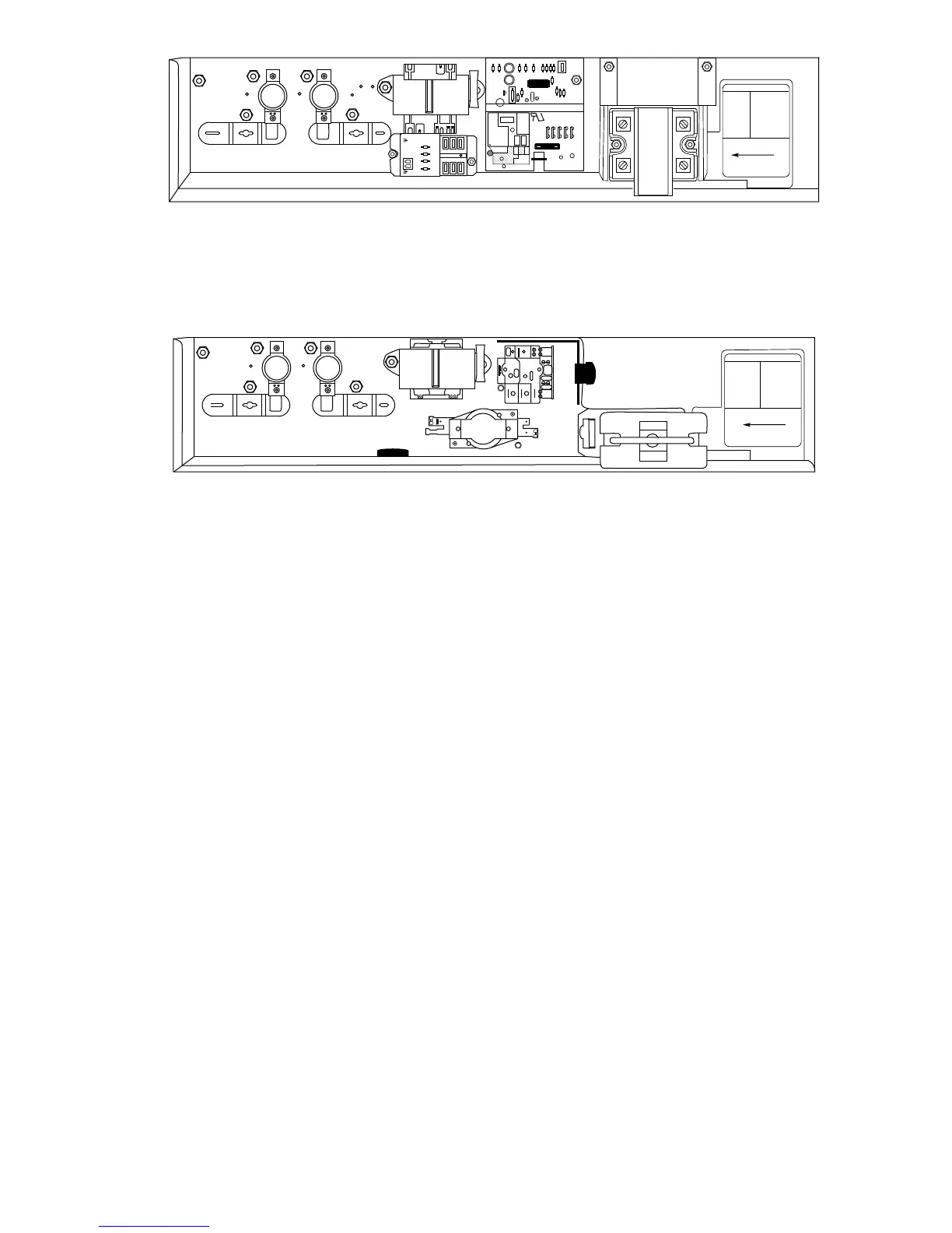
Fig. 3C—Electric Heater Control Boxes
A98184
312753
T-O-D 60TX11
HH19ZA945
C9725
L145-55F
312753
T-O-D 60TX11
HH19ZA945
C9725
L145-55F
SPT
FAN
RELAY
NO
NC
5
PULL TO OPEN
WARNING
ELECTRIC SHOCK
HAZARD
DISCONNECT
REMOTE POWER
SUPPLY BEFORE
OPENING PANEL.
322861-101 REV. A
PULL TO OPEN
WARNING
ELECTRIC SHOCK
HAZARD
DISCONNECT
REMOTE POWER
SUPPLY BEFORE
OPENING PANEL.
322861-101 REV. A
312753
T-O-D 60TX11
HH19ZA945
C9701
L145-55F
312753
T-O-D 60TX11
HH19ZA945
C9701
L145-55F
FF1D CONTROL BOX
FF1A/FF1B/FF1C CONTROL BOX
7

Table of Contents

Related product manuals