EasyManua.ls Logo

Carrier FV4ANB - Page 14

Carrier FV4ANB
52 pages
Print Icon
To Next Page IconTo Next Page
To Next Page IconTo Next Page
To Previous Page IconTo Previous Page
To Previous Page IconTo Previous Page
Loading...
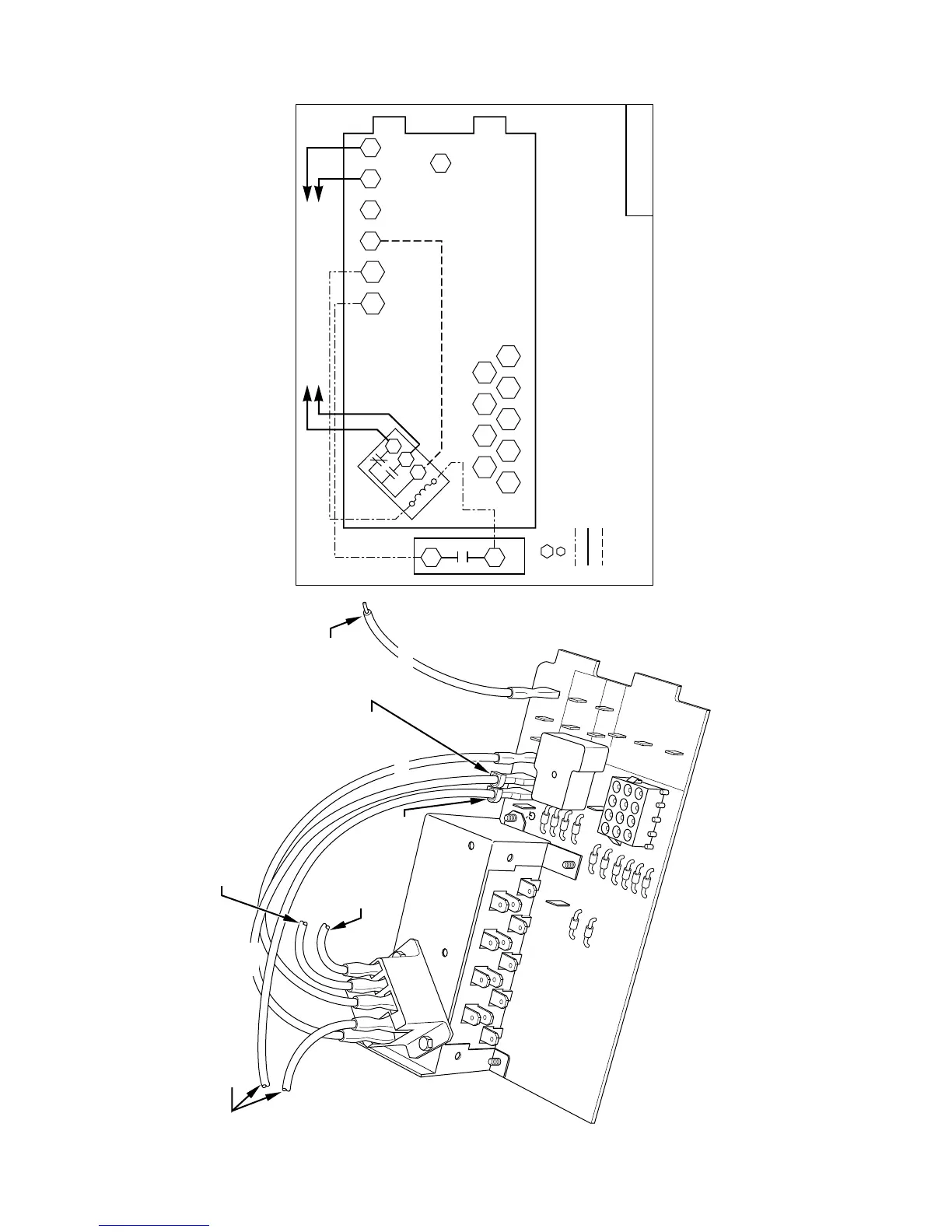
Fig. 10—Latent Capacity Control Kit
A97029
VAC
W3 W2 E G C
CB
2-05868-1A
LATENT CAPACITY
CONTROL WIRING
LOW VOLTAGE BOARD
L
FR
CB
FAN RELAY
CIRCUIT BOARD
HST HUMIDISTAT
MARKED TERMINAL
UNMARKED TERMINAL
FIELD CTRL WIRING
FACTORY POWER WIRING
FIELD POWER WIRING
AUX
1
AUX
2
F4
24 VDC
RED
FR
LOW MTR SPD
HI MTR SPD
FAN COMMON
UNUSED LEAD
BLK
208/240 VAC
NO
C
HST
ORG
ORG
COM
NO
NC
F3 F2
L2
F1
O Y R
TRANSFORMER
AC
LINE
T1
T2
COMMON
COMMON
DUMMY
T3
L2
L1
F1
F2
F3
F4
2SD-1
C
AUX1
AUX2
EAC2
FAN
EAC1
L
O
Y
R
C
G
E
W2
W3
AUX 1
AUX 2
RED
BLK
YEL
NO TO 
HIGHER
FAN SPEED
ORANGE WIRES
TO HUMIDISTAT
NC TO 
LOWER
FAN SPEED
FAN MOTOR
COMMON LEAD
14

Table of Contents