EasyManua.ls Logo

Carrier Infinity ICS 58MVC 100 Series - Page 30

Carrier Infinity ICS 58MVC 100 Series
62 pages
To Next Page IconTo Next Page
To Next Page IconTo Next Page
To Previous Page IconTo Previous Page
To Previous Page IconTo Previous Page
Loading...
30
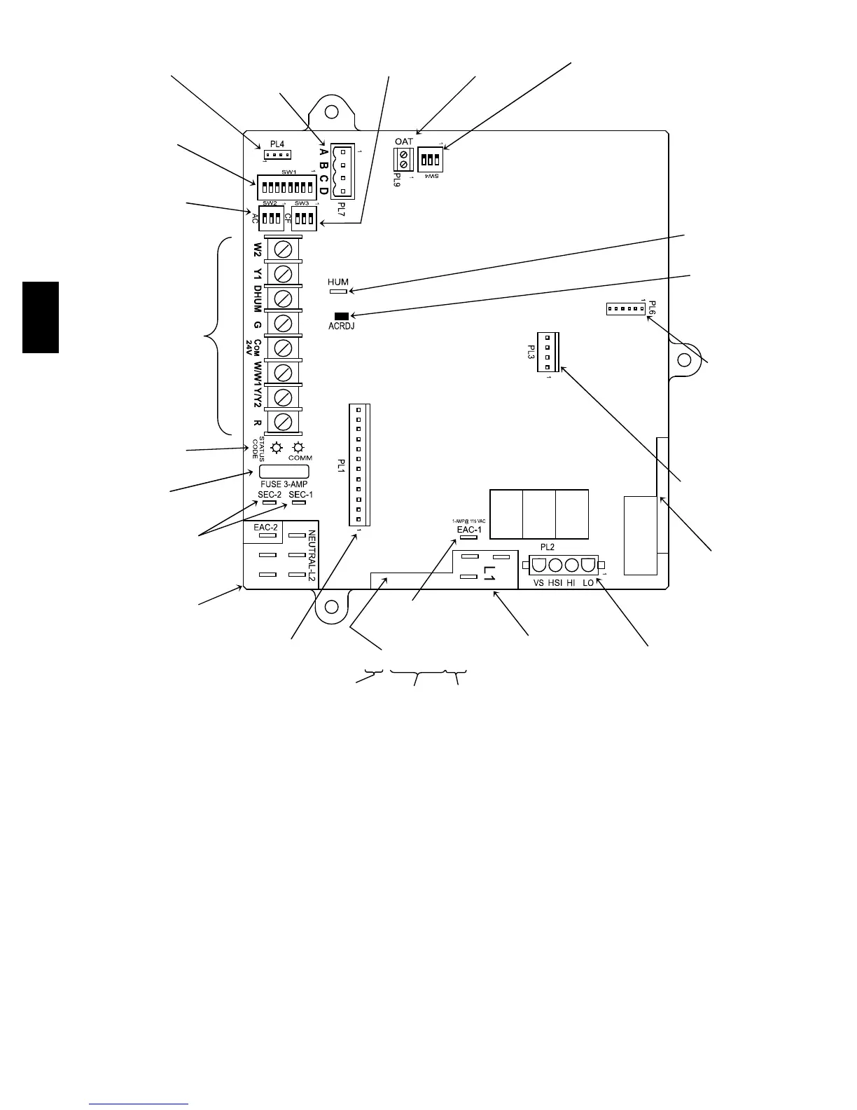
24-V THERMOSTAT
TERMINALS
PL2 – HOT SURFACE
IGNITER & INDUCER
MOTOR CONNECTOR
115-VAC (L2) NEUTRAL
CONNECTIONS
115-VAC (L1) LINE
VOLTAGE CONNECTIONS
EAC-1 TERMINAL
(115 -VAC 1.0 AMP MAX.)
PL1 – LOW VOLTAGE MAIN
HARNESS CONNECTOR
PL3 – ECM BLOWER
HARNESS
CONNECTOR
RANSFORMER 24-VAC
CONNECTIONS
3-AMP FUSE
STATUS AND COMM
LED LIGHTS
SW1 SETUP
SWITCHES AND
BLOWER OFF-
DELAY
MODEL PLUG
CONNECTOR
AIR CONDITIONING
(A/C) AIRFLOW
SETUP SWITCHES
USER INTERFACE
OR ADVANCED
PRODUCT
MONITOR
CONNECTOR
CONTINUOUS FAN
(CF) AIRFLOW
SETUP SWITCHES
OAT
CONNECTOR
HUMIDIFIER
TERMINAL (24-VAC
0.5 AMP MAX.
ACRDJ – AIR
CONDITIONING
RELAY DISABLE
JUMPER
FLASH
UPGRADE
CONNECTOR
(FACTORY
ONLY)
SW4 SETUP
SWITCHES
BOARD SERIAL
NUMBER
EXAMPLE:
V12 HK42FZ022 3407
SOFTWARE
VERSION
NUMBER
DATE
CODE
PART
NUMBER
A07422
Fig. 33 -- Furnace Control
58MVC

Related product manuals