EasyManua.ls Logo

Case CX31B - Page 23

Case CX31B
23 pages
Print Icon
To Previous Page IconTo Previous Page
To Previous Page IconTo Previous Page
Loading...
2. SPECIFICATIONS
2-5
2
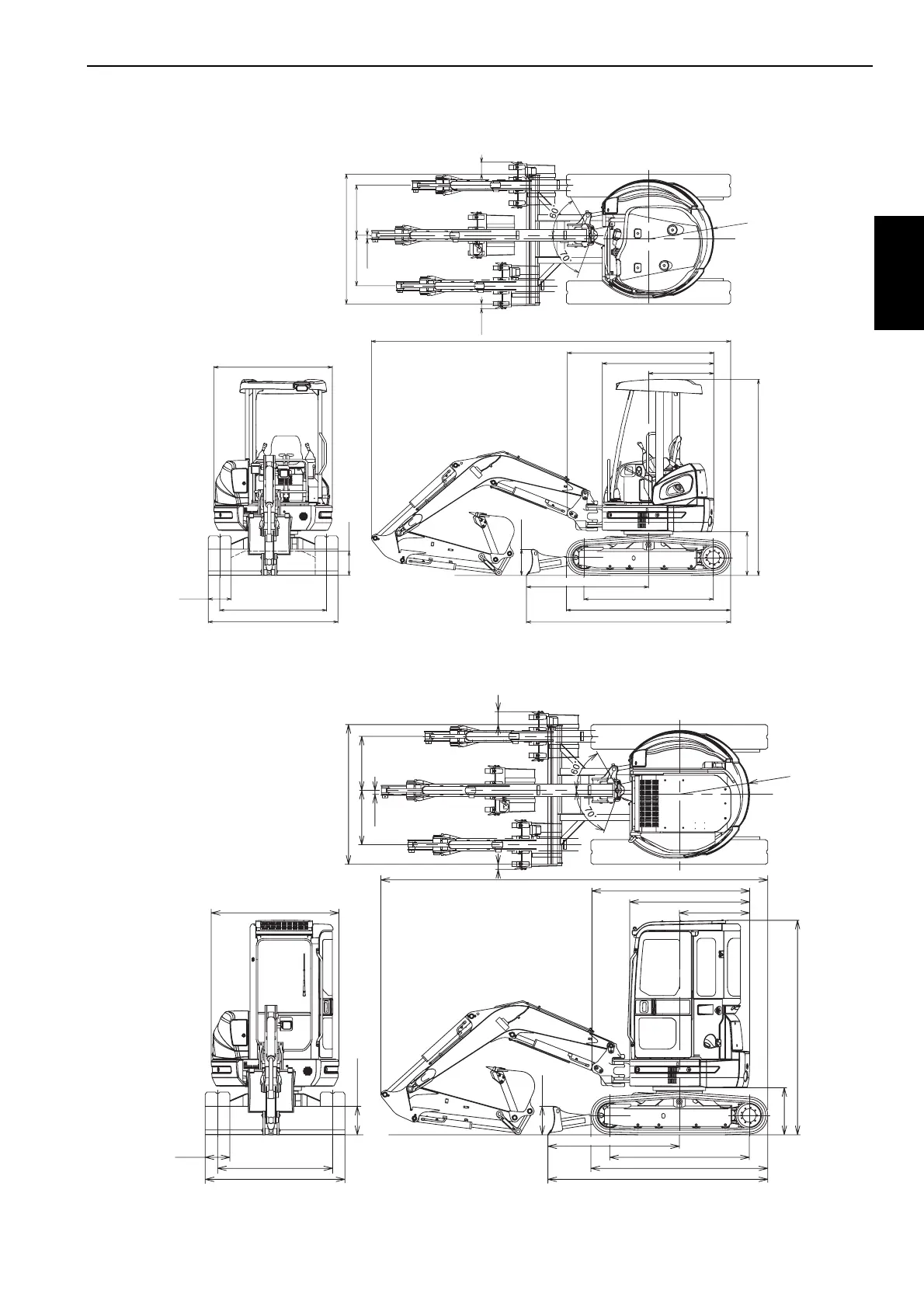
(3) CX36B (CANOPY) Unit:mm(ft-in)
(4) CX36B (CAB)
2680 {8'9.5"}
2150 {7'0.6"}
1700 {5'6.9"}
570
{1'10.4"}
2570 {8'5.2"}
850 {2'9.5"}
1460 {4'9.5"}
1910 {6'3.2"}
4710 {15'5.4"}
1550 {5'1.0"}
300
{11.8"}
1400 {4'7.1"}
1700 {5'6.9"}
330 {13.0"}
R850
{2'9.5"}
60
{2.4"}
50
{2.0"}
1700 {5'6.9"}
660 {2'2.0"}660 {2'2.0"}
345
{13.6"}
345
{13.6"}
160{6.3"}
1600 {5'3.0"}
2680 {8'9.5"}
2150 {7'0.6"}
1700 {5'6.9"}
570
{1'10.4"}
2610 {8'6.8"}
850 {2'9.5"}
1460 {4'9.5"}
1910 {6'3.2"}
4710 {15'5.4"}
1550 {5'1.0"}
300
{11.8"}
1400 {4'7.1"}
1700 {5'6.9"}
330 {13.0"}
R850
{2'9.5"}
60
{2.4"}
50
{2.0"}
660 {2'2.0"}660 {2'2.0"}
1700 {5'6.9"}
345
{13.6"}
345
{13.6"}
160{6.3"}
1600 {5'3.0"}

Related product manuals