EasyManua.ls Logo

CDVI PROMI500 - Page 9

CDVI PROMI500
9 pages
Print Icon
To Previous Page IconTo Previous Page
To Previous Page IconTo Previous Page
Loading...
9
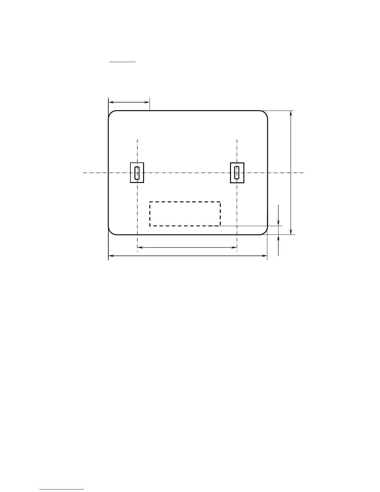
Template
DGLP or DGLI Auxiliary reader
Block terminal
43x15 mm
60
mm
96
mm
75 mm
25 mm
6 mm

Related product manuals