EasyManua.ls Logo

Cedar Ridge MD3TPU - Installation

Cedar Ridge MD3TPU
30 pages
Print Icon
To Next Page IconTo Next Page
To Next Page IconTo Next Page
To Previous Page IconTo Previous Page
To Previous Page IconTo Previous Page
Loading...
www.usaprocom.com
9200131-01A
INSTALLATION
NOTICE: This heater is intended
for use as supplemental heat.
Use this heater along with your
primary heating system. Do not
install this heater as your pri-
mary heat source. If you have a
central heating system, you may
run system’s circulating blower
while using heater. This will help
circulate the heat throughout the
house. In the event of a power
outage, you can use this heater
as your primary heat source.
WARNING: A qualied ser-
vice person must install heater.
Follow all local codes.
WARNING: Never install the
heater
in a bedroom or bathroom
in a recreational vehicle
where curtains, furniture,
clothing, or other ammable
objects are less than 36" from
the front, top, or sides of the
heater
in high trafc areas
in windy or drafty areas
CAUTION: This heater cre-
ates warm air currents. These
currents move heat to wall sur-
faces next to heater. Installing
heater next to vinyl or cloth wall
coverings or operating heater
where impurities (such as to-
bacco smoke, aromatic candles,
cleaning uids, oil or kerosene
lamps, etc.) in the air exist, may
cause walls to discolor.
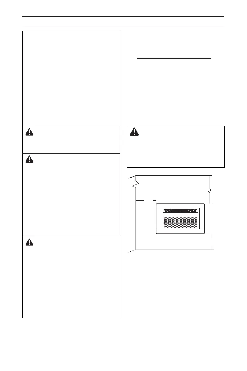
Figure 4 - Mounting Clearances as
Viewed From Front of Heater
IMPORTANT: Vent-free heaters add moisture
to the air. Although this is benecial, installing
heater in rooms without enough ventilation air
may cause mildew to form too much moisture.
See Air for Combustion and Ventilation, page
7 and 8.
CHECK GAS TYPE
Be sure your gas supply is right for your heat-
er. Otherwise, call dealer where you bought
the heater for proper type heater.
CLEARANCES TO
COMBUSTIBLES
Carefully follow the instructions below. This
heater is a freestanding unit designed to be
mounted on a wall or set on a base.
WARNING: Maintain the
minimum clearances shown in
Figure 4. If you can, provide
greater clearances from oor,
ceiling, and joining wall.
CEILING
36"
Minimum
12"
Minimum
From
Sides of
Heater
Left
Side
Right
Side
5" Minimum to Top Surface of Carpeting,
Tile or Other Combustible Material
FLOOR
LOCATING HEATER
This heater is designed to be mounted on a
wall. For convenience and efciency, install
heater:
1. Where there is easy access for operation,
inspection, and service.
2. In the coldest part of room.

Related product manuals