EasyManua.ls Logo

CHIEF PT Series - Page 24

CHIEF PT Series
28 pages
Print Icon
To Next Page IconTo Next Page
To Next Page IconTo Next Page
To Previous Page IconTo Previous Page
To Previous Page IconTo Previous Page
Loading...
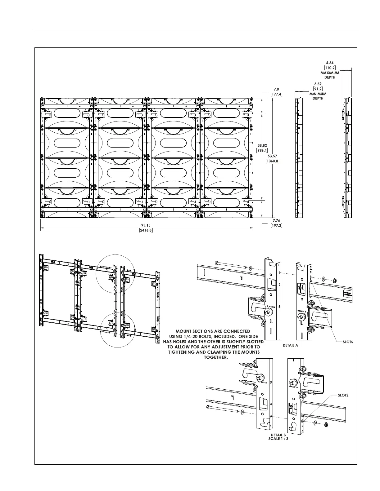
Installation Instructions TIL1X2PT / TIL1X3PT / TIL1X4PT / TILVABPT
24
DIMENSIONS...cont’d
A
SCALE 1 : 3
TiLED 4X4 CONFIGURATION...cont’d
DIMENSIONS: INCHES
[MILLIMETERS]

Related product manuals