EasyManua.ls Logo

CIAC Outdoor Series - Dimension

CIAC Outdoor Series
43 pages
Print Icon
To Next Page IconTo Next Page
To Next Page IconTo Next Page
To Previous Page IconTo Previous Page
To Previous Page IconTo Previous Page
Loading...
5
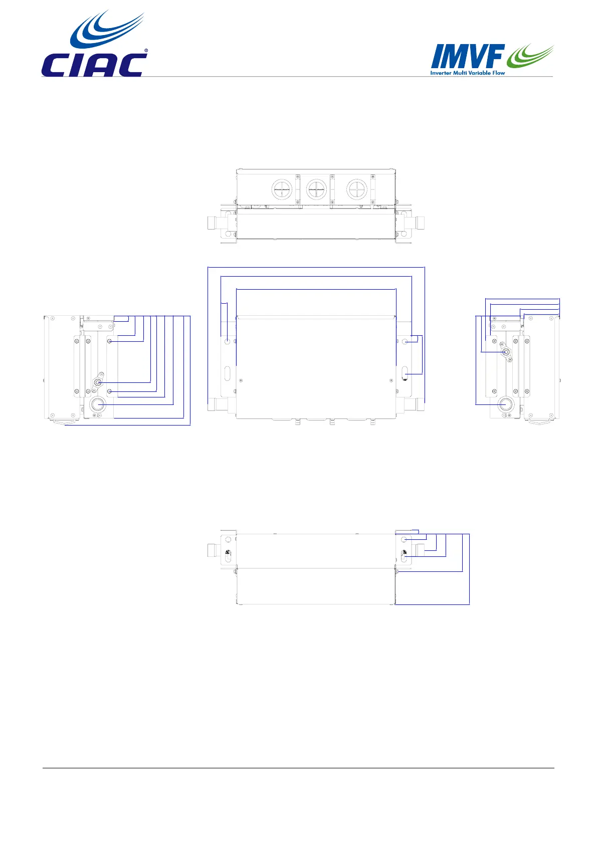
3. Dimension
AH1-280A
240
226
179
166
56
44
13
195
147
12
36
49
82
9
155
476
419
350
15
14
84
86
152
80
195
163
78

Related product manuals