EasyManua.ls Logo

Clint CHA/K/FC/SP 131 - Operating Principle and Advantages; Summer Operation; Winter Operation; Intermediate Seasons Operation

Clint CHA/K/FC/SP 131
28 pages
Print Icon
To Next Page IconTo Next Page
To Next Page IconTo Next Page
To Previous Page IconTo Previous Page
To Previous Page IconTo Previous Page
Loading...
8
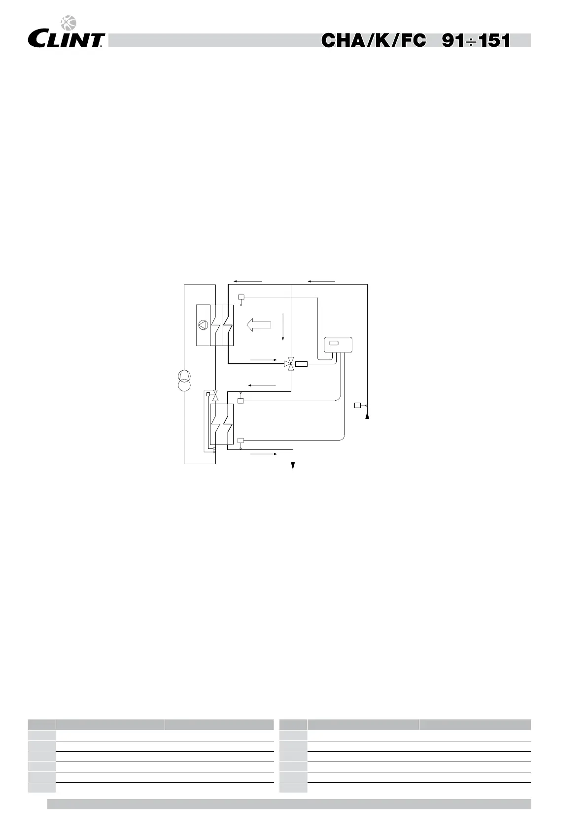
PRINCIPIO DI FUNZIONAMENTO
Le unità refrigeranti della serie Free-Cooling sono progettate per raf-
freddare una miscela di acqua glicolata.
Sono composte, oltre che dai componenti principali di un normale chil-
ler quali: i compressori, i condensatori, l’evaporatore, le valvole termo-
statiche, anche da una batteria free-cooling ad acqua. Un sistema di
regolazione costituito da una valvola a tre vie modulante e da un insie-
me di sonde attiva il funzionamento della batteria ad acqua e quindi la
funzione “free-cooling”.
In un normale chiller la miscela di acqua e glicole di ritorno dall’impianto
utilizzatore viene raffreddata dal fluido refrigerante attraverso l’evapora-
tore a fascio tubiero; nelle unità refrigeranti Free-Cooling funzionanti in
free-cooling, la miscela viene deviata in una batteria ad acqua (CAF) ed
attraversata da un flusso di aria esterna così da permettere un raffred-
damento gratuito dell’acqua di utilizzo.
Il sistema di regolazione è costituito da un microprocessore, da una
sonda di temperatura acqua ingresso macchina, da una sonda di tem-
peratura aria esterna, da una sonda di lavoro e da una sonda antigelo.
FUNZIONAMENTO ESTIVO
Quando la temperatura dell’aria esterna è superiore alla temperatura
della soluzione di acqua e glicole di ritorno dall’ impianto, l’unità re-
frigerante si comporta come un chiller
tradizionale e la produzione di acqua re-
frigerata è garantita dal lavoro dei com-
pressori; la valvola a tre vie indirizza tutta
la soluzione da refrigerare nell’evapora-
tore e la batteria di free-cooling resta
inattiva. L’assorbimento totale è quello
di un normale chiller di tipo aria-acqua.
FUNZIONAMENTO
INVERNALE
Quando la temperatura dell’aria ester-
na scende mediamente sotto i 0÷-4°C,
l’unità refrigerante funziona esclusiva-
mente in modali free-cooling. La val-
vola a tre vie, comandata dalle sonde
di temperatura (ST3) e (ST4), alimenta
la batteria free-cooling consentendo il
raffreddamento dell’acqua di utilizzo a
mezzo del flusso di aria esterna che in-
veste dapprima la batteria free-cooling
e quindi la batteria condensante. Me-
diante la sonda di lavoro posta a monte
dell’evaporatore, il microprocessore spegne i compressori. I ventilatori
restano in funzione per garantire il flusso d’aria esterna attraverso la
batteria free-cooling. All’ulteriore diminuzione della temperatura di aria
esterna il microprocessore risponde rallentando la velocidi rotazio-
ne dei ventilatori. Per temperature ancora piu’ rigide, la costanza del-
la temperatura dell’acqua in uscita viene garantita da una particolare
funzione del microprocessore che attiva, mediante la valvola a tre vie,
la miscelazione dell’acqua di free-cooling con l’acqua di ritorno dal-
l’impianto.
FUNZIONAMENTO NELLE STAGIONI INTERMEDIE
Si ottiene combinando i sistemi di raffreddamento in free-cooling: totale
e meccanico. Il funzionamento della macchina in modalità free-cooling
è attivato quando la temperatura dell’aria esterna è di almeno un grado
inferiore alla temperatura della soluzione di acqua e glicole di ritorno
dall’ impianto. Normalmente quindi attorno ai 15÷10 °C.
La soluzione viene raffreddata nella batteria free-cooling.L’ulteriore raf-
freddamento viene eseguito con il metodo tradizionale mentre la sonda
di temperatura acqua ingresso regola il lavoro dei compressori parzia-
lizzandone la potenza resa.
VANTAGGI
- Minori spese di gestione durante le stagioni intermedie.
- Produzione gratuita di acqua refrigerata nella stagione invernale.
- Maggiore durata dei compressori grazie ad una riduzione delle ore
di funzionamento
- Minori spese di manutenzione.
OPERATING PRINCIPLE
The Free-Cooling series of refrigerating units are designed to cool a gly-
col/water solution.
Besides the main components used on ordinary chillers, such as: com-
pressors, condensers, evaporator, expansion valves, these units also
include a free-cooling water coil. A control system consisting of a 3-way
modulating valve and a set of probes, start the water coil working and
then the “free-cooling” function.
In a standard chiller the water and glycol solution returning from the us-
er system is chilled by the refrigerant through the shell and tube evap-
orator. In the free-cooling Free-Cooling chillers the solution is deviated
in a water coil and an outdoor ow of air passes through it, chilling the
water at no cost.
The control system consists of a microprocessor, a machine inlet wa-
ter temperature probe, an outdoor air temperature probe, a work probe
and an antifreeze probe.
SUMMER FUNCTIONING
When the temperature of the outdoor air is higher than the tempera-
ture of the water and glycol solution returning from the system, the chill-
er acts like a standard chiller and chilled
water is guaranteed by the compressors;
the 3-way valve sends all the solution to
chill to the evaporator and the free-cool-
ing coil is idle. Total absorption is that of
a standard air-water chiller.
WINTER FUNCTIONING
When the temperature of the outdoor air
drops below 0 to -4°C, the chiller works only
in the free-cooling mode. The 3-way valve,
controlled by the temperature probes (ST3)
and (ST4), feeds the free-cooling coil thus
cooling the water used by means of a ow
of outdoor air that rst comes into contact
with the free-cooling coil and then the con-
denser coil. By means of the work probe,
upstream from the evaporator, the micro-
processor turns the compressors off. The
fans keep on working to guarantee the
ow of outdoor air through the free-cooling coil. As the temperature of
the water coming back from the plant drops still further, the microproc-
essor responds reducing the rotation speed of the fans rotation speed.
For more severe temperatures, the constancy of water temperature in
outlet is guaranteed by a particular function of the microprocessor that
activates, by means of the 3-way valve, the mixing of free-cooling water
with the water returning from the system.
FUNCTIONING IN THE INTERMEDIATE SEASONS
This is achieved by combining the free-cooling systems: total free-cool-
ing and mechanical. Operation of the chiller in the free-cooling mode is
activated when the outdoor air temperature is at least o two degree low-
er than the temperature of the water and glycol solution that returns from
the system. It is therefore normally around 15÷10 °C.
The solution is cooled in the coil Free-Cooling. Additional cooling is done
with the traditional method while the water temperature inlet probe reg-
ulates compressor work, stepping down the power.
ADVANTAGES
- Reduced running costs during the intermediate seasons.
- Free production of chilled water in winter.
- Longer compressor life thanks to fewer operating hours.
- Reduced maintenance costs.
DENOMINAZIONE DESIGNATION DENOMINAZIONE DESIGNATION
CA
Condensatore
Condenser
SB
Microprocessore
Microprocessor
CAF
Condensatore con Free-Cooling
Free-Cooling
condenser
ST1 Sonda di lavoro
Sensor for unit operation
EW Evaporatore
Evaporator
ST2 Sonda antigelo
Antifreeze sensor
MC Compressore
Compressor
ST3 Sonda ingresso acqua
Water inlet probe
MV Ventilatori assiali
Axial fans
ST4 Sonda aria esterna
Outside air probe
RCF
Valvola a 3 vie
3-way valve
VT
Valvola termostatica
Expansion valve
ST2
ST1
VT
MC
MV
CA
CAF
ST3
CIRCUITO FRIGO
REFRIGERATION CIRCUIT
CIRCUITO IDRAULICO
WATER CIRCUIT
RCF
EW
OUT
SB
ST4
IN
EXT. AIR

Table of Contents

Related product manuals