EasyManua.ls Logo

Clint R410A - Page 25

Clint R410A
36 pages
Print Icon
To Next Page IconTo Next Page
To Next Page IconTo Next Page
To Previous Page IconTo Previous Page
To Previous Page IconTo Previous Page
Loading...
25
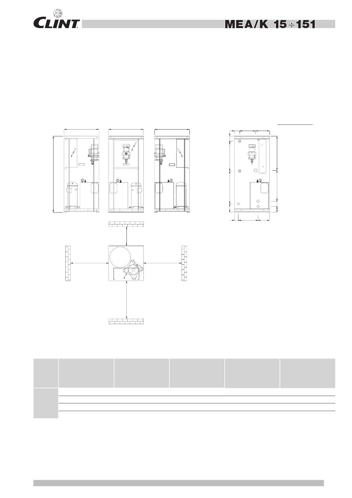
DIMENSIONI DI INGOMBRO, PESI, SPAZI DI RISPETTO
E COLLEGAMENTI IDRAULICI E FRIGORIFERI
MODELLI: 51÷81
VERSIONI: MEA/K-MEA/K/WP/SP
AUSSENMAßE, GEWICHTE, RAUMBEDARF UND
HYDRAULISCHE ANSCHLÜßE UND KÄLTESCHEMA
MODELL 51÷81
BAUVARIANTEN: MEA/K-MEA/K/WP/SP
DIMENSIONS, WEIGHTS, CLEARANCES AND
HYDRAULIC CONNECTIONS / REFRIGERANT
MODELL 51÷81
VERSIONS: MEA/K-MEA/K/WP/SP
ENCOMBREMENTS, POIDS, ESPACES POUR ENTRETIEN
ET RACCORDEMENTS HYDRAULIQUES ET FRIGORIFIQUE
MODÈLE 51÷81
VERSIONS: MEA/K-MEA/K/WP/SP
Per l'unità a pompa di calore maggiorare il peso del 10%.
Für die Wärmepumpeausführungeinheit muß das Gewicht
um 10% erhöht werden.
For the unit in heat pump version increase the weight by 10%.
Pour les groupes à pompes à chaleur majorer le poids de 10%.
MOD.
Peso in funzione
Operating weight
Betriebsgewicht
Poids en fonction
Entrata acqua
Water inlet
Wassereintritt
Entrée eau
Uscita acqua
Water outlet
Wasseraustritt
Sortie eau
Linea di mandata
Suction Line
Saugleitung
Ligne d'aspiration
Linea liquido
Liquid line
Flussigkeisleitung
Ligne de liquide
(kg) Ø Ø
Ø (mm) Ø (mm)
51 SP
161 1" M 1" M
16 12
61 SP
162 1" M 1" M 16 12
71 SP
165 1" M 1" M 16 12
81 SP
167 1" M 1" M 16 12
K
J
X
Y
EW
60
135
93 80
80
80515 470
180310
540487
250 220
550
800
550
1200
800 *
550
800 *
500
LATO UTENZA
COTEE UTILISATEURS
USER SIDE
VERBRAUCHERSEITE
X - Ingresso acqua.
Y - Uscita acqua.
J - Linea del liquido.
K - Linea di mandata.
X - Water Inlet.
Y - Outlet water.
J - Liquid line.
K - Suction line.
X - Wassereintritt.
Y - Wasseraustritt.
J - Flüssigkeitslinie.
K - Sauglinie.
X - Entrée eau.
Y - Sortie eau.
J - Ligne du liquide.
K - Ligne d’aspiration.
* Spazio di rispetto consigliato per eventuale accesso laterale.
*
Clearance area for side access.
* Geratener Service Freiraum für eventuelle seitliche Eingang.
* Dégagements à respecter pour un accès latéral.
LATO UTENZA
USER SIDE
VERBRAUCHERSEITE
COTEE UTILISATEURS

Related product manuals