EasyManua.ls Logo

Clint R410A - Page 26

Clint R410A
36 pages
Print Icon
To Next Page IconTo Next Page
To Next Page IconTo Next Page
To Previous Page IconTo Previous Page
To Previous Page IconTo Previous Page
Loading...
26
Per l'unità a pompa di calore maggiorare il peso del 10%.
Für die Wärmepumpeausführungeinheit muß das Gewicht
um 10% erhöht werden.
For the unit in heat pump version increase the weight by 10%.
Pour les groupes à pompes à chaleur majorer le poids de 10%.
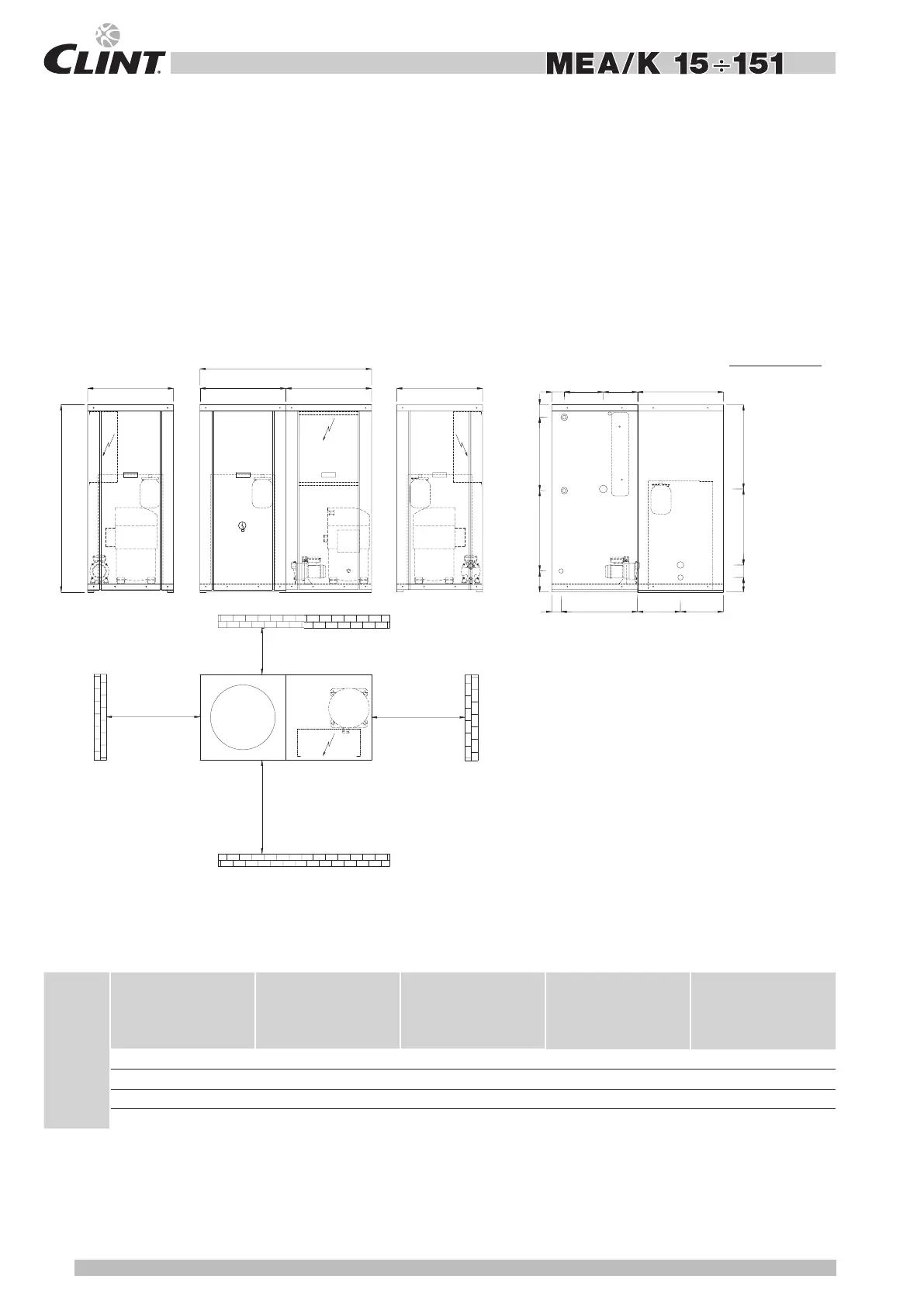
DIMENSIONI DI INGOMBRO, PESI, SPAZI DI RISPETTO
E COLLEGAMENTI IDRAULICI E FRIGORIFERI
MODELLI: 91÷151
VERSIONI: MEA/K/SP-MEA/K/WP/SP
AUSSENMAßE, GEWICHTE, RAUMBEDARF UND
HYDRAULISCHE ANSCHLÜßE UND KÄLTESCHEMA
MODELL: 91÷151
BAUVARIANTEN: MEA/K/SP-MEA/K/WP/SP
DIMENSIONS, WEIGHTS, CLEARANCES AND
HYDRAULIC CONNECTIONS / REFRIGERANT
MODELL: 91÷151
VERSIONS: MEA/K/SP-MEA/K/WP/SP
ENCOMBREMENTS, POIDS, ESPACES POUR ENTRETIEN
ET RACCORDEMENTS HYDRAULIQUES ET FRIGORIFIQUE
MODÈLE: 91÷151
VERSIONS: MEA/K/SP-MEA/K/WP/SP
MOD.
Peso in funzione
Operating weight
Betriebsgewicht
Poids en fonction
Entrata acqua
Water inlet
Wassereintritt
Entrée eau
Uscita acqua
Water outlet
Wasseraustritt
Sortie eau
Linea di mandata
Suction Line
Saugleitung
Ligne d'aspiration
Linea liquido
Liquid line
Flussigkeisleitung
Ligne de liquide
(kg) Ø Ø
Ø (mm) Ø (mm)
91 SP
415 1" M 1" M
22 12
101 SP
421 1" M 1" M 22 12
131 SP
427 1" M 1" M 22 12
151 SP
438 1" M 1" M 22 16
Z
Y
J
K
EW
60
135
80
80515 470
250 220
490 275 275
93 80 487 540
550
1100
800
550
1200
800 *
550
800 *
500
550550
LATO UTENZA
COTEE UTILISATEURS
USER SIDE
VERBRAUCHERSEITE
X - Ingresso acqua.
Y - Uscita acqua.
J - Linea del liquido.
K - Linea di mandata.
X - Water Inlet.
Y - Outlet water.
J - Liquid line.
K - Suction line.
X - Wassereintritt.
Y - Wasseraustritt.
J - Flüssigkeitslinie.
K - Sauglinie.
X - Entrée eau.
Y - Sortie eau.
J - Ligne du liquide.
K - Ligne d’aspiration.
* Spazio di rispetto consigliato per eventuale accesso laterale.
*
Clearance area for side access.
* Geratener Service Freiraum für eventuelle seitliche Eingang.
* Dégagements à respecter pour un accès latéral.
LATO UTENZA
USER SIDE
VERBRAUCHERSEITE
COTEE UTILISATEURS

Related product manuals