EasyManua.ls Logo

CLIVET CAS-41 - DIMENSIONS 182-222

CLIVET CAS-41
40 pages
Print Icon
To Next Page IconTo Next Page
To Next Page IconTo Next Page
To Previous Page IconTo Previous Page
To Previous Page IconTo Previous Page
Loading...
35
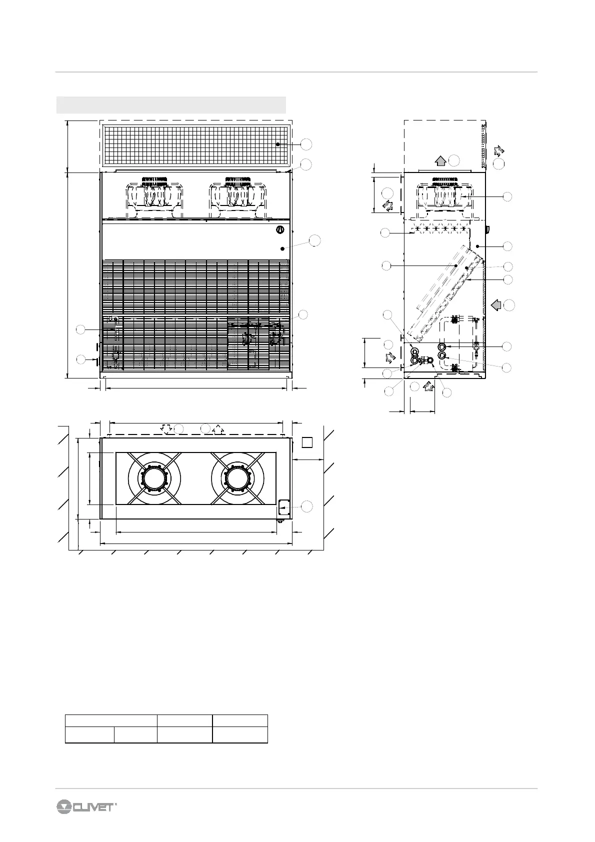
11 - TECHNICAL INFORMATION
95 1660
95
3
11
400 **
17
1980
1850
106
282
44
340
R
M
Rp
Mp
Ri
4
7
16
9
10
15
14
2
5
8
Mf
54
238
500
19
18
11
12
13
780
400 **
15 4
1542
154
Rp
Mp
138
504
138
6
1
54
1742
54
1000**
(1) COMPRESSOR
(2) ELECTRICAL PANEL
(3) ACCESS TO THE ELECTRICAL PANEL
(4) SUPPLY FAN
(5) DIRECT EXPANSION COIL
(6) PLATE EXCHANGER
(7) G4 AIR FILTERS
(8) WATER COIL (OPTIONAL) - RE-HEATING COIL (OPTIONAL)
(9) 3 WAYS-VALVE (OPTIONAL)
(10) ELECTRIC HEATERS (OPTIONAL)
(11) POWER INPUT
(12) HOT WATER HEAT EXCHANGER WATER OUTLET Ø 3 / 4 "
(13) HOT WATER HEAT EXCHANGER WATER INLET Ø 3 / 4 "
(14) EXCHANGER WATER OUTLET Ø1" 1/2 GAS
(15) EXCHANGER WATER INLET Ø1" 1/2 GAS
(16) CONDENSATE DISCHARGE
(17) FUNCTIONAL CLEARANCES
(18) WATER CONNECTION SIDE
(19) FRONT OUTLET PLENUM (OPTIONAL)
(R ) AMBIENT AIR INTAKE STANDARD
(M ) AIR SUPPLY STANDARD
(MP ) REAR AIR OUTLET (OPTIONAL)
(MF) FRONT AIR OUTLET (OPTIONAL)
(RP ) REAR AIR INLET (OPTIONAL)
(RI ) FLOOR AIR INLET (OPTIONAL)
(**) CLEARANCE ACCESS RECOMMENDED
11.5 DIMENSIONS 182 - 222
SIZE 182
Weight kg 490
222
500

Related product manuals