EasyManua.ls Logo

ComCo Systems 521 Series - Page 16

ComCo Systems 521 Series
54 pages
Print Icon
To Next Page IconTo Next Page
To Next Page IconTo Next Page
To Previous Page IconTo Previous Page
To Previous Page IconTo Previous Page
Loading...
15 pg. ComCo Systems Inc. | 800.533.3794 | www.comcosystems.com 500169 Rev. 18.0
521
Series
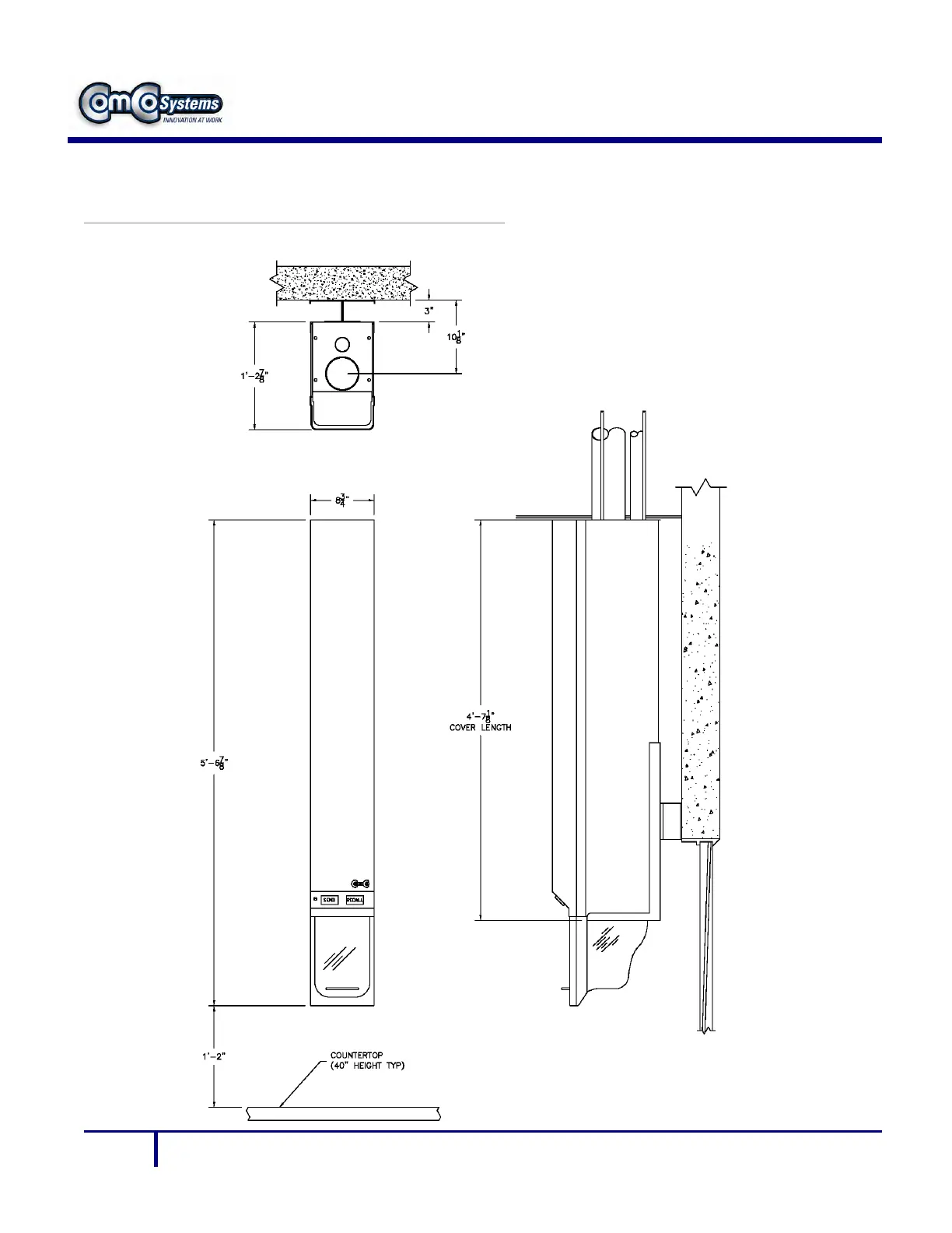
521 Teller Unit (TU) (P/N: 200501/200502)
Dimensional & Electrical Specifications
Specification