EasyManua.ls Logo

COMENDA RC07 - Overall Dimensions

COMENDA RC07
98 pages
Go to English
To Next Page IconTo Next Page
To Next Page IconTo Next Page
To Previous Page IconTo Previous Page
To Previous Page IconTo Previous Page
Loading...
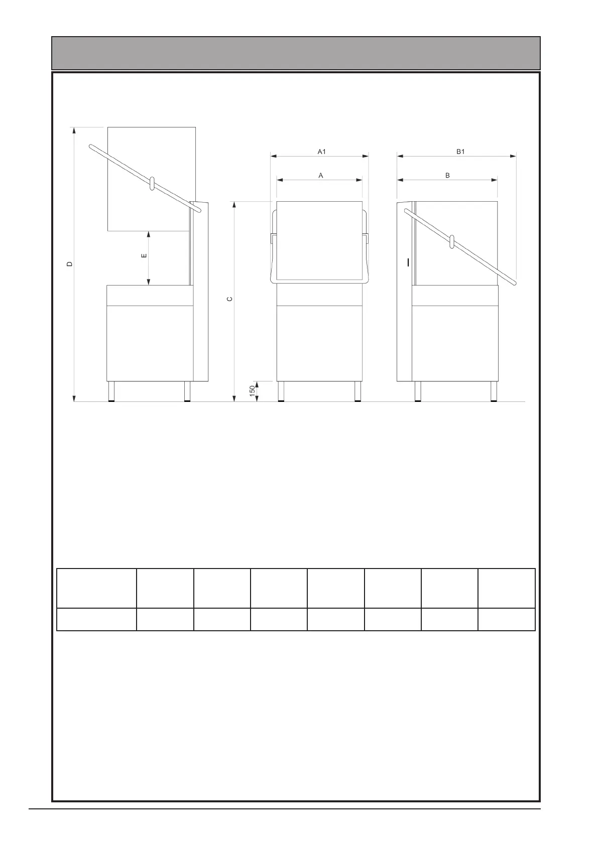
DIMENSIONI DI INGOMBRO - OVERALL DIMENSIONS - DIMENSIONS D'ENCOMBREMENT
ABMESSUNGEN - DIMENSIONES TOTALES - DIMENSIONI DI INGOMBRO
Model Modèle
Modell Modelo
Modello
A
(mm)
A1
(mm)
B
(mm)
B1
(mm)
C
(mm)
D
(mm)
E
(mm)
RC07
625 717 740 830 1460 1960 440
6

Related product manuals