EasyManua.ls Logo

Compaq MV-920 - Page 11

Compaq MV-920
97 pages
Print Icon
To Next Page IconTo Next Page
To Next Page IconTo Next Page
To Previous Page IconTo Previous Page
To Previous Page IconTo Previous Page
Loading...
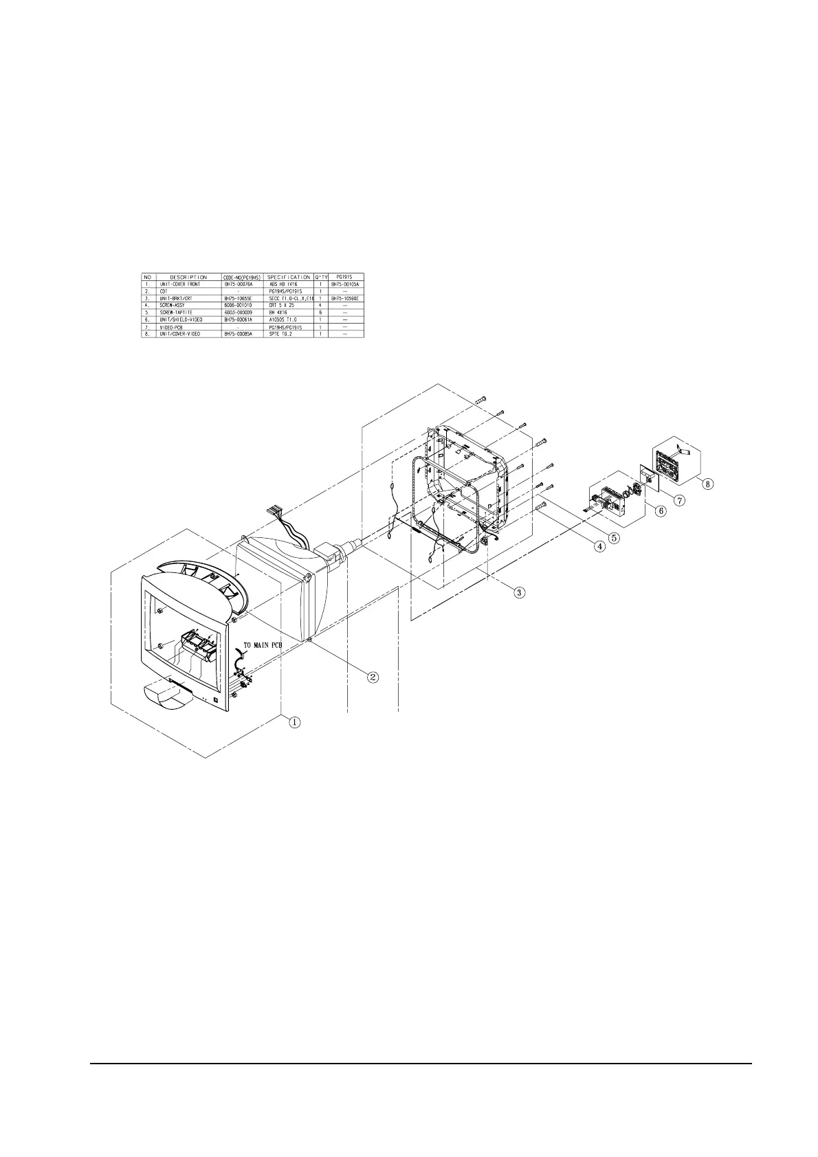
6 Exploded View & Parts List
6-8 PG17**/PG19**/PG21**
6-4 Front Cover & CRT Ass’y (PG19**)

Related product manuals