EasyManua.ls Logo

CORBERO CCIG3BL723FLEX - Page 49

CORBERO CCIG3BL723FLEX
Print Icon
To Next Page IconTo Next Page
To Next Page IconTo Next Page
To Previous Page IconTo Previous Page
To Previous Page IconTo Previous Page
Loading...
23
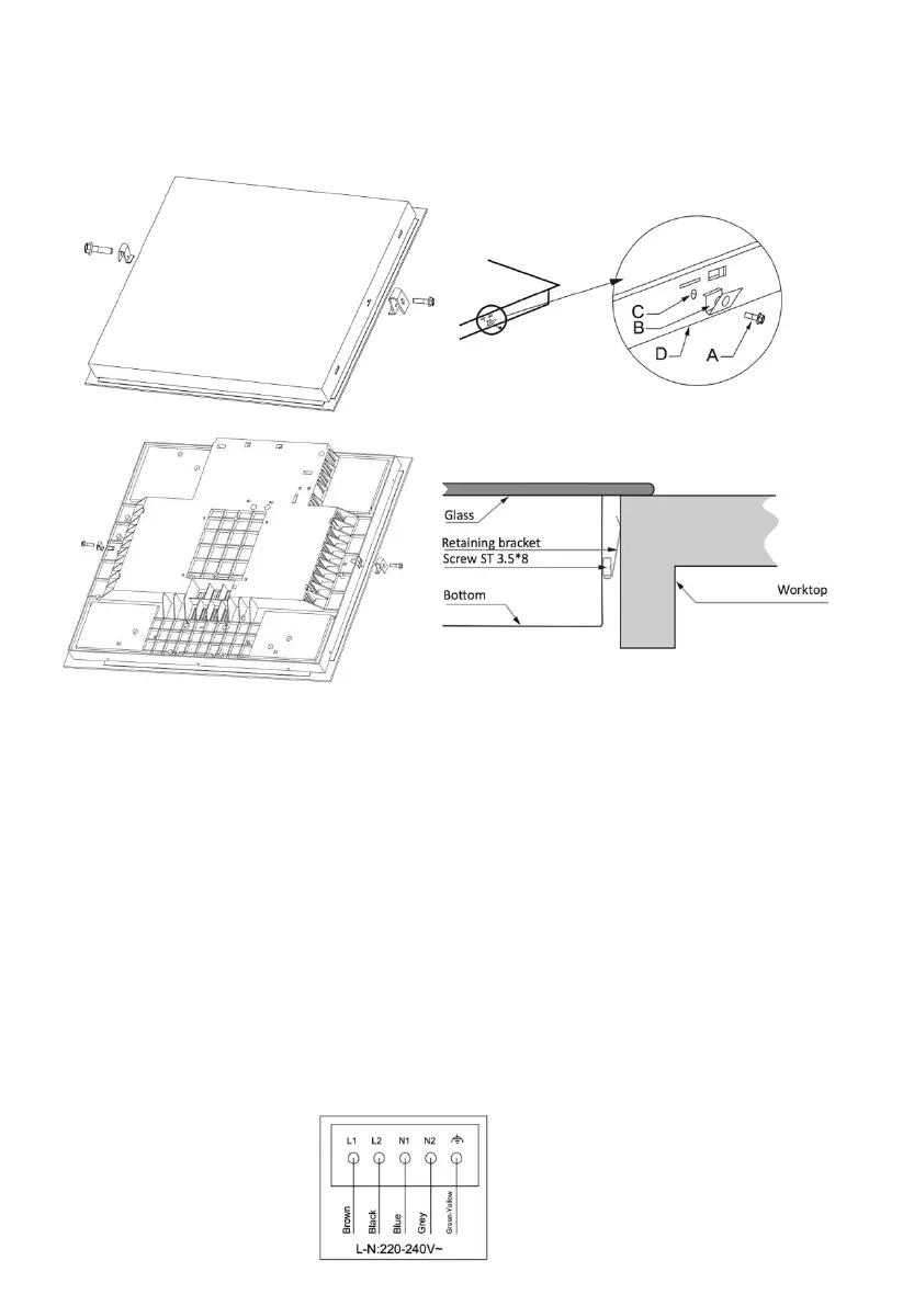
9.5 Ajuste dos suportes de fixação
Fixar a placa à superfície de trabalho, aparafusando 2 suportes na parte inferior da placa (ver
imagem). Ajustar a posição do suporte de acordo com as diferentes espessuras da superfície de
trabalho.
9.6 Precauções
1. A placa deve ser instalada por um técnico ou profissional qualificado. Temos profissionais
à sua disposição. O utilizador nunca o deve fazer sozinho.
2. A placa não deve ser instalada sobre máquinas de lavar louça, equipamento de
refrigeração ou máquinas de lavar e secar roupa, uma vez que a humidade pode danificar
a placa eletrónica.
3. A placa de cozedura deve ser instalada de tal forma que a dissipação de calor seja ótima
para assegurar uma melhor fiabilidade.
4. A parede e a zona de aquecimento por indão acima da superfície de trabalho devem resistir ao
calor.
5. Para evitar danos, a camada intermédia e o adesivo devem ser resistentes ao calor.
6. o utilizar produtos de limpeza a vapor.
9.7 Ligar a placa à rede elétrica
A fonte de alimentação deve ser ligada de acordo com a norma relevante, ou um disjuntor de
um pólo. O método de ligação é mostrado como o diagrama.
H07RN-F5G1,5*

Related product manuals