EasyManua.ls Logo

COZY VC501C - Page 11

Default Icon
32 pages
Print Icon
To Next Page IconTo Next Page
To Next Page IconTo Next Page
To Previous Page IconTo Previous Page
To Previous Page IconTo Previous Page
Loading...
VENTED ROOM HEATERS 11
WARNING: Danger of property damage, bodily
injury or loss of life. The adjoining unconfined space
must have adequate air infiltration as defined in
example 1.
FOR EXAMPLE: Your furnace is rated at 50,000 BTU/hr.
The water heater is rated at 30,000 Btu/hr. The total is
80,000 BTU/hr. You need two grilles, each with 100 square
inches of free opening. Metal grilles have about 60% free
area, so you need two metal grilles each with 160 square
inches of louvered area.
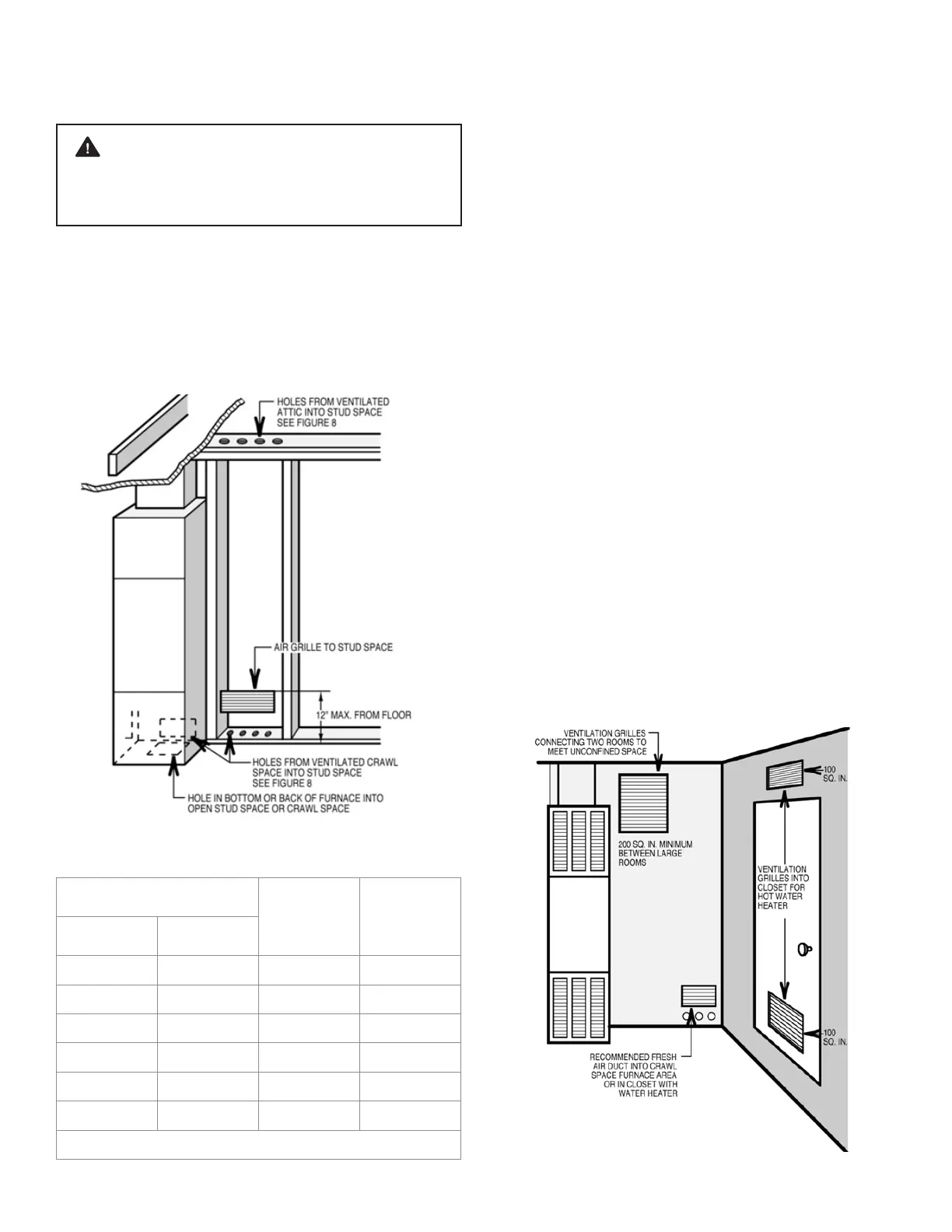
FIGURE 7  FRESH AIR DUCT
FIGURE 8  MINIMUM AREA IN SQUARE FEET
Refer to figure as shown on page 11, Figure. 9, which shows
grille installation. Using the previous example, the two
connecting rooms plus the closet must equal at least 500
sq. feet to handle the combined input 50,000 plus 30,000.
B. ALL AIR FROM OUTDOORS:
If confined space doesn’t adjoin an unconfined space then
air must be provided from outdoors or spaces open to
outdoors such as attic or crawl space.
Provide two permanent openings, one within 12 inches of
top, one within 12 inches of bottom of room connecting
directly, or by using ducts, with the outdoors or areas open
to outdoors.
If opening connects directly to, or within vertical ducts, the
free area of each opening must be at least 1 square inch
per 4,000 BTU/hr. combined input of appliances in area.
If horizontal ducts are used, the free area of each opening
must be at least 1 square inch per 2,000 BTU/hr. combined
input of appliances in area.
FOR EXAMPLE: Your furnace is rated at 50000 BTU/hr. The
water heater is rated at 30,000 BTU/hr. The total is 80,000
BTU/hr. You need two grilles, each with 20-square inches
of free opening, unless connected by horizontal ducts
which would require each grille or opening to have a free
area of 40 square inches.
Openings for inlet or outlet air should not be made into
attic area if attic is equipped with a thermostat controlled
power vent.
4,000 BTU/hr. PER SQUARE
INCH OPENING
MAX
BTU/hr.
INPUT
*UNCONFINED
SPACE MIN.
AREA IN SQ.
FT. 8’ CEILING
HEIGHT
ROUND
DUCT
RECTANGULAR
DUCT
4" DIA 3" X 3" SQ. 30,000 188
4” DIA 3 X 3 SQ. 35,000 219
4” DIA 3 X 4 SQ. 40,000 250
4” DIA 3 X 4 SQ. 45,000 281
4” DIA 3 X 5 SQ. 50,000 312
4 1/2" DIA 3 X 5 SQ. 60,000 375
* CAN BE TWO OR MORE ROOMS JOINED BY VENTILATION GRILLES.
FIGURE 9  GRILLES CONNETING ROOMS TO MAKE
UNCONFINED SPACE