EasyManua.ls Logo

COZY VC501C - Page 7

Default Icon
32 pages
Print Icon
To Next Page IconTo Next Page
To Next Page IconTo Next Page
To Previous Page IconTo Previous Page
To Previous Page IconTo Previous Page
Loading...
VENTED ROOM HEATERS 7
b. Arrangement of the rooms or area to be heated.
c. Probable location of the furniture.
d. General appearance.
e. Safe clearance from anything that could catch fire.
f. Ability to properly vent the heater.
2. Locate the heater centrally in the area which it is to
heat. The ideal location is at the source of cold air,
which is an outside wall. If the heater is on an outside
wall, the cold air will be warmed before it moves
through the room.
3. Place the heater where the air will circulate freely
throughout the area to be heated. If one heater is
intended to heat the entire house, it is advisable to
consider the installation of grilles immediately below
the ceilings to permit circulation of hot air from room
to room. Return air grilles are also desirable.
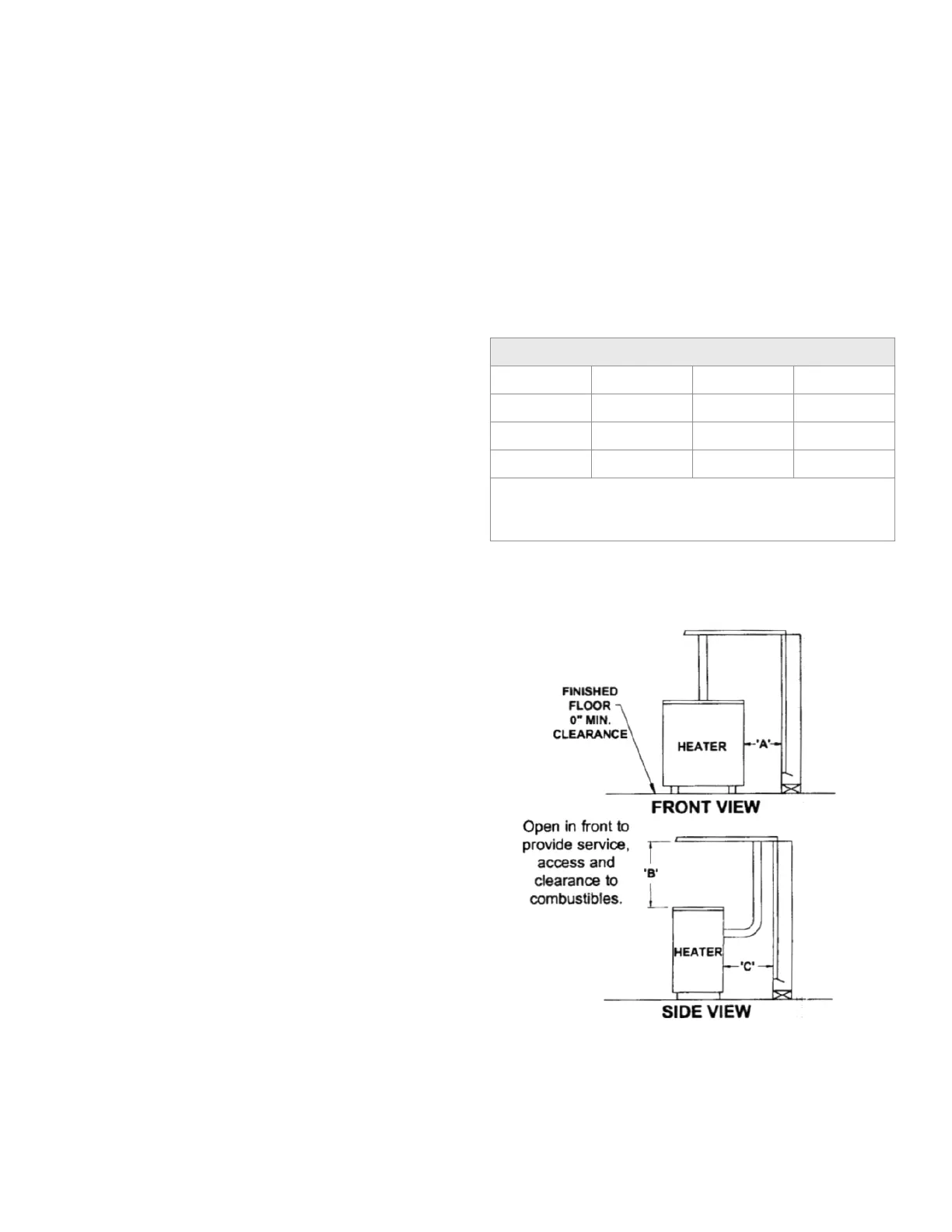
4. Be certain the heater is placed where the air is free to
circulate around it. Never install the heater in a wall
recess. The minimum clearance required to any wall
or object can be found on the rating plate located
inside the heater control door on the base plate. We
recommend a 24-inch min. clearance from the burner
access door for the ease of lighting and for observation
of pilot and burner flames.
5. The heater must be installed so that the draft hood is
in the same pressure zone as the combustion air.
6. The heater may be placed directly on wood floors.
Heavy pile or shag rugs may restrict normal air flow.
Some floor coverings discolor easily from even low
heat. To assure safe operation, a metal or wood panel,
extending the full depth and width of the appliance
must be placed under the heater. Optional floor boards
are available from Cozy.
7. Do not place the heater where curtains, draperies, or
any other material may come into contact with
any part of the heater.
GAS CONTROLS
1. All models are regulated on natural or propane gases.
The regulator is built into the gas control valve.
2. All models are equipped with a 100% pilot safety
shutoff and vent safety shutoff system.
3. CAUTION: Do not connect 115V electrical service line to
gas control valve or wall thermostat.
GAS SUPPLY
For natural gas, the minimum inlet gas supply pressure for
the purpose of input adjustment is 5” water column. The
Maximum inlet gas supply pressure is 7” water column.
For propane. gas, the minimum inlet gas supply pressure
for the purpose of input adjustment is 11” water column.
The maximum inlet gas supply pressure is 13” water
column.
The gas pressure and input to the burners must not
exceed the rated input and pressure shown on the rating
plate. On natural gas, the manifold pressure should be 4
inches water column. The manifold pressure should be 10
inches water column for propane gas.
Orifice changes may be required to suit the gas supplied.
For heaters located at elevations between sea level and
2,000 feet, the measured input must not be greater than
the input shown on the rating plate of the heater. For
elevations above 2,000 feet, the measured input must not
exceed the input of the rating plate reduced by 4 percent
for each 1,000 feet that the heater is above sea level.
MINIMUM REQUIRED CLEARNACES
MODEL A” SIDE “B” CEILING “C” REAR
VC20XD 2" 36" 3"
VC35XD 6" 57" 6"
VC50XD 6" 57" 6"
24" MIN. CLEARANCE IS RECOMMENDED ON SIDE WITH
BURNER ACCESS DOOR OR EASE OF LIGHTING AND FOR
OBSERVATION OF PILOT AND BURNER FLAMES.
FIGURE 1 - MINIMUM REQUIRED CLEARNACES

Other manuals for COZY VC501C

Related product manuals