EasyManua.ls Logo

Crestron Green Light 277 Volt - Physical Description; Architectural Dimming

Crestron Green Light 277 Volt
16 pages
Print Icon
To Next Page IconTo Next Page
To Next Page IconTo Next Page
To Previous Page IconTo Previous Page
To Previous Page IconTo Previous Page
Loading...
Architectural Dimming CRESTRON GREEN LIGHT™
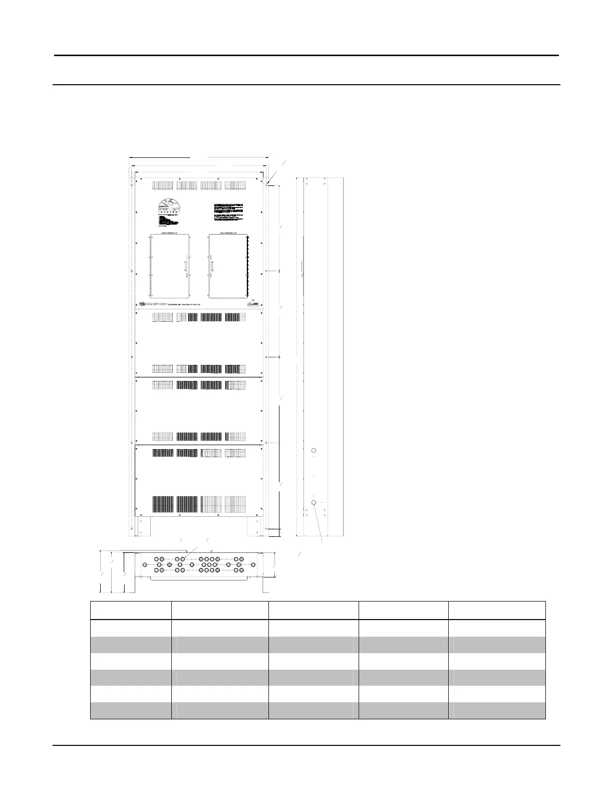
Physical Description
This section shows the exterior and interior dimensions of the CRESTRON GREEN LIGHT Architectural Dimming
cabinet.
External Dimensions of CRESTRON GREEN LIGHT Architectural Dimming Cabinets
W1
W2
Ø
7
16
" (11 mm) MOUNTING
HOLES
H1
6
1
16
"
(154 mm)
CONCENTRIC TECHNICAL KNOCKOUTS,
31 TOTAL (FOR
3
4
" (19 mm) &
1
2
" (13 mm) CONDUIT)
TYPICAL TOP AND BOTTOM
10
5
8
"
(270 mm)
10
3
16
"
(259 mm)
10
1
16
"
(256 mm)
W3
H2
KNOCKOUTS, 4 TOTAL,
(FOR
3
4
" (19 mm)CONDUIT) TYPICAL BOTH SIDES
21
1
2
"
(547 mm)
21
1
2
"
(547 mm)
21
1
2
"
(547 mm)
21
1
2
"
(547 mm)
DIMENSION GLE-*-2X2 GLE-*-3X2 GLE-*-2X4 GLE-*-3X4
Module Spaces
4 6 8 12
W1
22 7/8” (582 mm) 22 7/8” (582 mm) 35 1/16” (891 mm) 35 1/16” (891 mm)
W2
21 5/8” (550 mm) 21 5/8” (550 mm) 33 3/4” (858 mm) 33 3/4” (858 mm)
W3
20 1/16” (510 mm) 20 1/16” (510 mm) 32 3/16” (818 mm) 32 3/16” (818 mm)
H1
1 7/16” (37 mm) 5” (27 mm) 1 7/16” (37 mm) 1 15/16” (50 mm)
H2
67 13/16 (1723 mm) 96” (2439 mm) 67 7/8” (1725 mm) 89 13/16 (2282 mm)
2 CRESTRON GREEN LIGHT Architectural Dimming Installation Guide – DOC. 6688A