EasyManua.ls Logo

Cypress Semiconductor CY7C68013A - Page 56

Cypress Semiconductor CY7C68013A
62 pages
Print Icon
To Next Page IconTo Next Page
To Next Page IconTo Next Page
To Previous Page IconTo Previous Page
To Previous Page IconTo Previous Page
Loading...
CY7C68013A, CY7C68014A
CY7C68015A, CY7C68016A
Document #: 38-08032 Rev. *L Page 56 of 62
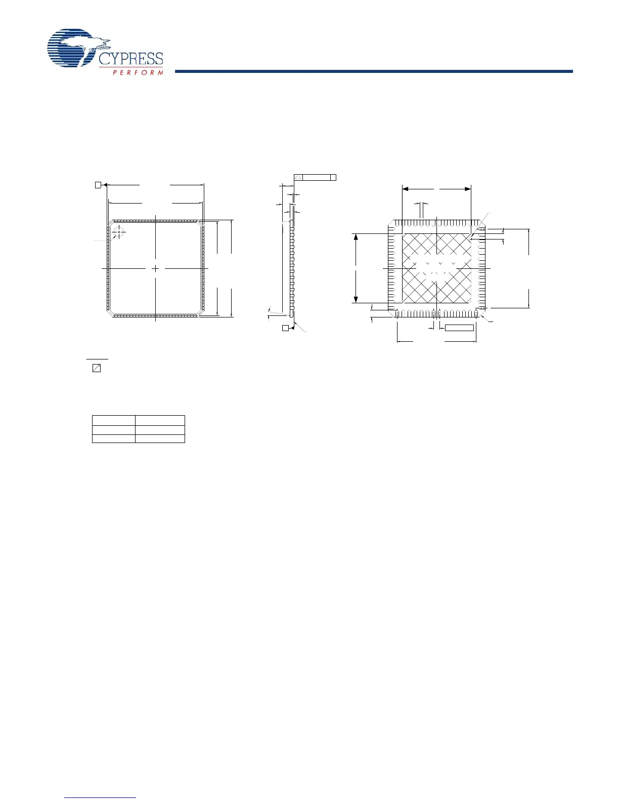
Package Diagrams (continued)
51-85144-*D
Figure 36. 56-Lead QFN 8 x 8 mm LF56A (51-85144)
TOP VIEW
0.80[0.031]
7.70[0.303]
7.90[0.311]
A
C
1.00[0.039] MAX.
N
BOTTOM VIEW
SEATING PLANE
N
2
0.18[0.007]
0.50[0.020]
1
1
0.08[0.003]
0.50[0.020]
0.05[0.002] MAX.
2
SIDE VIEW
(4X)
C
0.24[0.009]
0.20[0.008] REF.
0.80[0.031] MAX.
PIN1 ID
0°-12°
6.45[0.254]
8.10[0.319]
7.80[0.307]
6.55[0.258]
0.45[0.018]
0.20[0.008] R.
8.10[0.319]
7.90[0.311]
7.80[0.307]
7.70[0.303]
DIA.
0.28[0.011]
0.30[0.012]
6.55[0.258]
6.45[0.254]
0.60[0.024]
1. HATCH AREA IS SOLDERABLE EXPOSED METAL.
2. REFERENCE JEDEC#: MO-220
4. ALL DIMENSIONS ARE IN MM [MIN/MAX]
NOTES
:
PART #
PB-FREE
STANDARD
LY56
5. PACKAGE CODE
DESCRIPTION
3. PACKAGE WEIGHT: 0.162g
LF56
SOLDERABLE
EXPOSED
PAD
(SUBCON PUNCH TYPE PKG with 6.1 x 6.1 EPAD)
6.1
6.1
51-85144-*G
[+] Feedback [+] Feedback