EasyManua.ls Logo

Cypress Semiconductor CY7C68013A - PCB Layout Recommendations

Cypress Semiconductor CY7C68013A
62 pages
Print Icon
To Next Page IconTo Next Page
To Next Page IconTo Next Page
To Previous Page IconTo Previous Page
To Previous Page IconTo Previous Page
Loading...
CY7C68013A, CY7C68014A
CY7C68015A, CY7C68016A
Document #: 38-08032 Rev. *L Page 59 of 62
13. PCB Layout Recommendations
Follow these recommendations to ensure reliable high perfor-
mance operation:
[24]
Four layer impedance controlled boards are required to
maintain signal quality.
Specify impedance targets (ask your board vendor what they
can achieve).
To control impedance, maintain trace widths and trace spacing.
Minimize stubs to minimize reflected signals.
Connections between the USB connector shell and signal
ground must be near the USB connector.
Bypass and flyback caps on VBus, near connector, are recom-
mended.
DPLUS and DMINUS trace lengths should be kept to within 2
mm of each other in length, with preferred length of 20 to
30 mm.
Maintain a solid ground plane under the DPLUS and DMINUS
traces. Do not allow the plane to split under these traces.
Do not place vias on the DPLUS or DMINUS trace routing.
Isolate the DPLUS and DMINUS traces from all other signal
traces by no less than 10 mm.
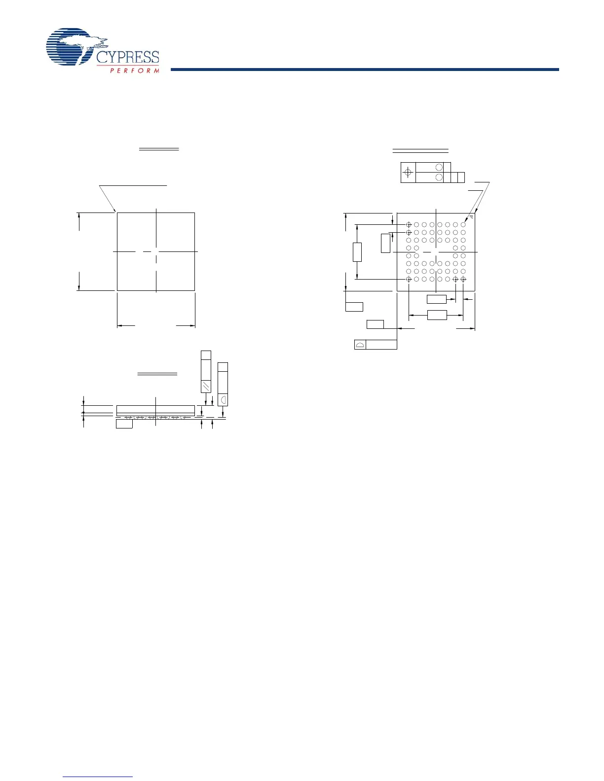
Package Diagrams (continued)
TOP VIEW
PIN A1 CORNER
0.50
3.50
5.00±0.10
BOTTOM VIEW
0.10(4X)
3.50
5.00±0.10
0.50
Ø0.15 M C A B
Ø0.05 M C
Ø0.30±0.05(56X)
A1 CORNER
-B-
-A-
1.0 max
0.160 ~0.260
0.080 C
0.45
SEATING PLANE
0.21
0.10 C
-C-
SIDE VIEW
5.00±0.10
5.00±0.10
REFERENCE JEDEC: MO-195C
PACKAGE WEIGHT: 0.02 grams
E
G
H
F
D
C
B
A
13265486
7856 2341
E
G
H
F
D
C
B
A
001-03901-*B
Figure 39. 56 VFBGA (5 x 5 x 1.0 mm) 0.50 Pitch, 0.30 Ball BZ56 (001-03901)
Note
24. Source for recommendations: EZ-USB FX2™PCB Design Recommendations, http://www.cypress.com/cfuploads/support/app_notes/FX2_PCB.pdf and
High-Speed USB Platform Design Guidelines, http://www.usb.org/developers/docs/hs_usb_pdg_r1_0.pdf.
[+] Feedback [+] Feedback