EasyManua.ls Logo

D-Box 4250i - Arm Rest Mounting Hole Dimensions; Setting Up Actuators in Seat

D-Box 4250i
18 pages
Print Icon
To Next Page IconTo Next Page
To Next Page IconTo Next Page
To Previous Page IconTo Previous Page
To Previous Page IconTo Previous Page
Loading...
9 of 18
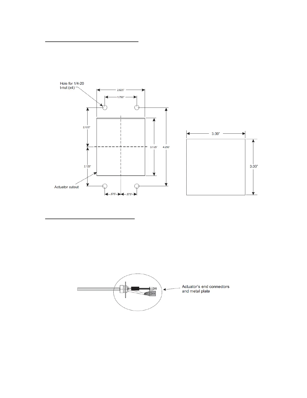
In the drawings below you will find the dimensions of the hole needed to mount the actuators and
be able to screw it in place using four (4) 1/4-20 screws. You will also find the dimensions of the
cutout hole for the actuator’s cable harness.
5- Arm Rest mounting hole dimensions
Actuator cutout hole Actuator cable harness hole
Before making the connections between each ACM units and its associated pair of actuators, you
should insert and screw down both actuators in each armrest and run the cable through the
actuator cable harness access hole in the front of the actuator (if the ACM is mounted on the
back panel). When the actuators are properly secured using four (4) 1/4-20 screws and a lock
washer, you can connect the cable into the ACM unit.
6- Setting up the actuators in the seat
Note: be careful not to damage the connectors or the aluminum plate at the end of the actuator’s
cable.

Related product manuals