EasyManua.ls Logo

Daikin DPS006 - Page 81

Daikin DPS006
122 pages
Print Icon
To Next Page IconTo Next Page
To Next Page IconTo Next Page
To Previous Page IconTo Previous Page
To Previous Page IconTo Previous Page
Loading...
WIrIng dIagraMs
www.DaikinApplied.com 81 IM 1125-7 • REBEL ROOFTOPS
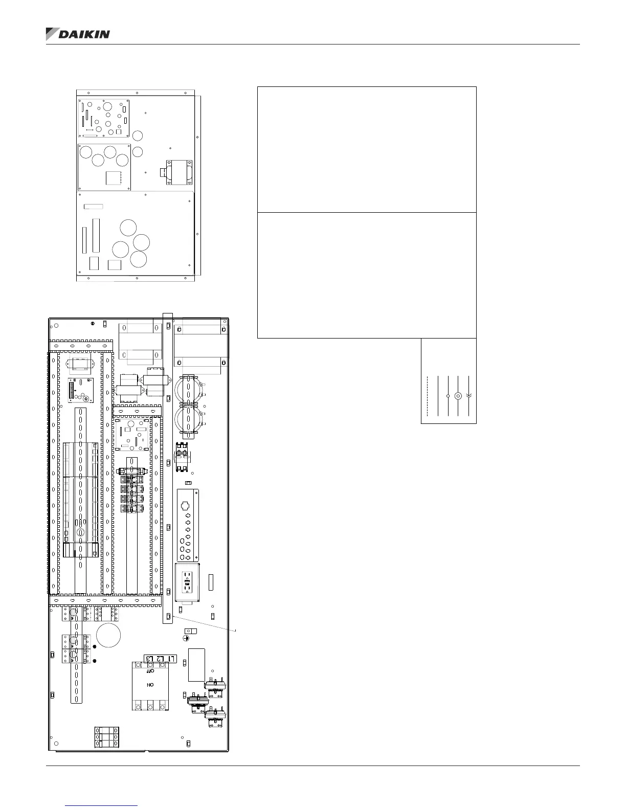
Figure 72 continued: Typical CAV_VAV 208-230 VAC Wiring (4 of 4) — DPS 003–006 shown
Plug Connection
Factory Terminal
Field Terminal
Factory Wiring
Field Wiring
ID:
OAE
OAER
OAT
OF1F
OF2F
ORT
PB1
PB1F
PC5
PC7
PTD
PTS
PVM1
R60
R63
RAE
RAT
R-CCH1
REC1
RES3,4
RHB1
R-HP1
RHV1
SD1/SD2
SHS1
SPS1
SPS2
SRT
SVB
SVR
T1
T12
T1F
T2A,B
T4
T6
T7
TB1
TB2
TB8
VFD60
Description:
Four Way Valve
Compressor 1 Inverter
Compressor 1 Inverter Electrical Noise Filter
Outdoor Fan 1 Inverter
Outdoor Fan 2 Inverter
Outdoor Fan Electrical Noise Filter
Actuator Motor, Economizer
Auxiliary High Limit
Crankcase Heater
Valve, Condenser Coil
Communication Module (BACnet, Lonworks, ...)
DIII-NET Communication Gateway
Temperature Sensor, Discharge Air
Defrost Temperature Sensor
Duct Hi-limit, Switch
Discharge Refrigerant Temperature Sensor
Disconnect Switch, Unit Power
Disconnect Switch, Powered GFCI Receptacle
Expansion Valve Board
Expansion Valve Board Electrical Noise Filter
Indoor Expansion Valve
Outdoor Expansion Valve
Expansion Control Board
Fuse, Control Circuit Transformer (T1), Primary
Fuse, Control Circuit Transformer (T1), Secondary
Fuse, 460V 3-Phase Transformer (T4), Primary
Fuse, Powered GFCI Transformer (T6), Secondary
Heater Module
Hi-Limit Switch, Gas Heat
Hi-Pressure Switch, Refrigeration Circuits 1, 3
Interface Board
Interface Board Electrical Noise Filter
Indoor Refrigerant Temperature Sensor
Temperature Sensor, Leaving Coil
Compressor Line Reactor
Compressor 1 Electrical Noise Filter
Contactor, Compressor 3
Main Control Board
Mechanical Jumper
Manual Motor Protector, A4P Board
Manual Motor Protector, Supply Fan
Manual Motor Protector, Compressor 3
Manual Motor Protector, Exhaust Fan
Manual Motor Protector, Energy Recovery Wheel
Description:
Enthalpy Sensor, Outside Air
Relay, Outside Air Enthalpy
Temperature Sensor, Outside Air
Outdoor Fan Electrical Noise Filter 1
Outdoor Fan Electrical Noise Filter 2
Outdoor Refrigerant Temperature Sensor
Power Block, Power Distribution
Power Block Electrical Noise Filter
Pressure Control, Dirty Filter Switch
Pressure Control, Proof Airflow Switch
Discharge Refrigerant Pressure Sensor
Suction Refrigerant Pressure Sensor
Phase Voltage Monitor
Energy Recovery Face and Bypass Damper Relay
Relay, Duct High Limit Switch
Enthalpy Sensor, Return Air
Temperature Sensor, Return Air
Crankcase Heater Relay
Receptacle, GFCI
Resistor
Reheat Board, Hot Gas
High Pressure Compressor 1 Relay
Valve, Reheat Coil
Smoke Detector, Supply Air/Return Air
Space Humidity Sensor
Static Pressure Sensor, Duct
Static Pressure Sensor, Building
Suction Refrigerant Temperature Sensor
Refrigerant Bypass Solenoid Valve
Refrigerant Receiver Solenoid Valve
Transformer, Main Control
575/460V Primary Power Transformer
Main Transformer Electrical Noise Filter
Transformer, Control Input (115/24VAC)
Transformer, 230V Single Phase (460/397VAC)
Transformer, Powered GFCI Receptacle (Line/115VAC)
Transformer, Reheat Control Board (115/24VAC)
Terminal Block, Internal Power Distribution
Terminal Block, Field -24V
Terminal Block, Internal Signal Distribution
Variable Frequency Drive, Energy Recovery Wheel
ID:
4WV
A4P
A4PF
A5P
A5P+
A5PF
ACT12
ACT3
AHL
CCH
CHV1
Comm Mod.
D3
DAT
DFT
DHL
DRT1,3
DS1
DS6
EVB
EVBF
EVI
EVO
EXPB,D
F1A,B
F1C,D
F4A,B,C
F6C
HEAT1
HL
HP1,3
IFB
IFBF
IRT
LCT
LR1
M1F
M3
MCB
MJ
MMP1
MMP10
MMP3
MMP51
MMP60
FOR HIGH VOLTAGE WIRING
DO NOT RUN HIGH VOLTAGE WIRES INSIDE WIRE TRACK
BNMS
DHL
DS1
DS6
EXPD
F6C
GND2
EVI-I - 74"
SD2 (Return Air Smoke Detector) - NA
PL7 (ACT3) - 107"
ACT12-I - 128"
ACT-3-I - 111"
Red - Air Pressure Tube - 105"
Blue - Air Pressure Tube - 100"
EXH-PI - 155"
EXH-CI - 155"
IFN-PI - 3"
IFN-CI - 3"
Short Red - Air
Pressure Tube - 10"
OAT-I - 62"
A4/4-I - 59"
PL17 (A4P-X6A) - 0"
EVB/88-I - 59"
A4P-PI - 59"
EVB-230-I - 59"
EVB-208-I - 59"
DRT1-I - 24"
DRT3-I - 30"
SRT-I - 21"
ORT-I - 39"
DFT-I - 47"
PTS-I - 30"
PTD-I - 10"
EVO-I - 36"
4WV-I - 3"
RHV1-I - 3"
CHV1-I - 6"
DAT-I - 45"
PATCH PLATE:
RAT (PL1)
LCT (PL2)
HP3 (PL3)
HP1 (PL4)
SVR (PL6)
SVB (PL8)
OAE (PL9)
CCH1 (PL10)
CCH3 (PL11)
HEAT1-I (PL15)
IFB
A4P
A5P
EVB
LR1
208/230V INVERTER PANEL
MCB
MMP10
GND10
MMP3
M3
MMP51
GND51
OAER
PB1
PC5
PC7
R63
REC1
RHB1
T7
R-CCH1
R-HP1
SPS1
Dwyer
Magnesense
Dwyer
SPS2
Magnesense
X
F1A F1B F1C
T1
H
T2A
T2B
T6
H
F1A F1B F1C
X

Table of Contents

Related product manuals