EasyManua.ls Logo

Daikin DPS006 - Page 89

Daikin DPS006
122 pages
Print Icon
To Next Page IconTo Next Page
To Next Page IconTo Next Page
To Previous Page IconTo Previous Page
To Previous Page IconTo Previous Page
Loading...
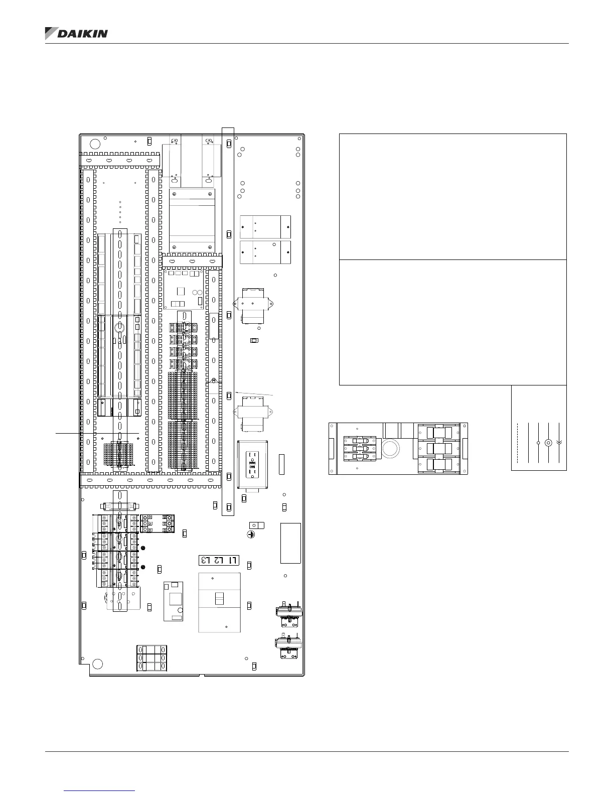
WIrIng dIagraMs
www.DaikinApplied.com 89 IM 1125-7 • REBEL ROOFTOPS
Figure 74 continued: Typical 575 Volt Wiring (4 of 4) — DPS 007–015 shown with 460 to 575 Transformer
575V Transformer Fuse Panel
A B C
A B C
F13
F12
Plug Connection
Factory Terminal
Field Terminal
Factory Wiring
Field Wiring
ID:
MMP3
MMP51
MMP60
MPB1
OAE
OAER
OAT
OF1F
OF2F
ORT
PB1
PB1F
PB2
PC5
PC7
PTD
PTS
PVM1
R63
RAE
RAT
R-CCH1
REC1
RES3,4
RHB1
R-HP1
RHV1
SD1/SD2
SHS1
SPD
SPS1
SPS2
SRT
SVB
SVR
T1
T12
T1F
T2A,B
T4
T6
T7
TB1
TB2
TB8
VFD60
Description:
Four Way Valve
Compressor 1 Inverter
Compressor 1 Inverter Electrical Noise Filter
Outdoor Fan 1 Inverter
Outdoor Fan 2 Inverter
Outdoor Fan Electrical Noise Filter
Actuator Motor, Revocery Wheel
Actuator Motor, Economizer
Auxiliary High Limit
Crankcase Heater
Valve, Condenser Coil
Communication Module (BACnet, Lonworks, ...)
DIII-NET Communication Gateway
Temperature Sensor, Discharge Air
Defrost Temperature Sensor
Duct Hi-limit, Switch
Discharge Refrigerant Temperature Sensor
Disconnect Switch, Unit Power
Disconnect Switch, Circuit 2 Dual Disconnect
Disconnect Switch, Powered GFCI Receptacle
Ebtron Control Board
Expansion Valve Board
Expansion Valve Board Electrical Noise Filter
Indoor Expansion Valve
Outdoor Expansion Valve
Expansion Control Board
Fuse, Control Circuit Transformer (T1), Primary
Fuse, Control Circuit Transformer (T1), Secondary
Fuse, 460V 3-Phase Transformer (T4), Primary
Fuse, Powered GFCI Transformer (T6), Secondary
Ground Fault Relay
Heater Module
Hi-Limit Switch, Gas Heat
Hi-Pressure Switch, Refrigeration Circuits 1, 3
Inverter Compressor Temperature
Interface Board
Interface Board Electrical Noise Filter
Indoor Refrigerant Temperature Sensor
Temperature Sensor, Leaving Coil
Compressor Line Reactor
Compressor 1 Electrical Noise Filter
Contactor, Compressor 3
Contactor, Constant Speed Recovery Wheel
Main Control Board
Mechanical Jumper
Manual Motor Protector, A4P Board
Manual Motor Protector, Supply Fan
Description:
Manual Motor Protector, Compressor 3
Manual Motor Protector, Exhaust Fan
Manual Motor Protector, Energy Recovery Wheel
Contactor, Dual Disconnect Circuit 1
Enthalpy Sensor, Outside Air
Relay, Outside Air Enthalpy
Temperature Sensor, Outside Air
Outdoor Fan Electrical Noise Filter 1
Outdoor Fan Electrical Noise Filter 2
Outdoor Refrigerant Temperature Sensor
Power Block, Power Distribution
Power Block Electrical Noise Filter
Power Block, Circuit 2 Dual Disconnect
Pressure Control, Dirty Filter Switch
Pressure Control, Proof Airflow Switch
Discharge Refrigerant Pressure Sensor
Suction Refrigerant Pressure Sensor
Phase Voltage Monitor
Relay, Duct High Limit Switch
Enthalpy Sensor, Return Air
Temperature Sensor, Return Air
Crankcase Heater Relay
Receptacle, GFCI
Resistor
Reheat Board, Hot Gas
High Pressure Compressor 1 Relay
Valve, Reheat Coil
Smoke Detector, Supply Air/Return Air
Space Humidity Sensor
Surge Protective Device
Static Pressure Sensor, Duct
Static Pressure Sensor, Building
Suction Refrigerant Temperature Sensor
Refrigerant Bypass Solenoid Valve
Refrigerant Receiver Solenoid Valve
Transformer, Main Control
575/460V Primary Power Transformer
Main Transformer Electrical Noise Filter
Transformer, Control Input (115/24VAC)
Transformer, 230V Single Phase (460/397VAC)
Transformer, Powered GFCI Receptacle (Line/115VAC)
Transformer, Reheat Control Board (115/24VAC)
Terminal Block, Internal Power Distribution
Terminal Block, Field -24V
Terminal Block, Internal Signal Distribution
Variable Frequency Drive, Energy Recovery Wheel
ID:
4WV
A4P
A4PF
A5P
A5P+
A5PF
ACT12
ACT3
AHL
CCH
CHV1
Comm Mod.
D3
DAT
DFT
DHL
DRT1,3
DS1
DS2
DS6
ECB1
EVB
EVBF
EVI
EVO
EXPB,D
F1A,B
F1C,D
F4A,B,C
F6C
GFR1
HEAT1
HL
HP1,3
ICT
IFB
IFBF
IRT
LCT
LR1
M1F
M3
M60
MCB
MJ
MMP1
MMP10
Customer Wiring Only
FOR HIGH VOLTAGE WIRING
DO NOT RUN HIGH VOLTAGE WIRES INSIDE WIRE TRACK
BNIP
Leave room for second comms card
DHL
DS1
ON
EXPD
CHK 1
24V
ACS1 ACS2 ACS3
Modbus
IFB
MCB
MMP1
MMP10
GND10
BUSBAR
M3
MMP3
MMP51
GND51
BUSBAR
OAER
PB2
PC5
PVM1
R63
REC1
R-CCH1
R-HP1
SPS1
SPS2
X H
F1C F1B F1A
T1
T2A
T2B
F4
T4
N
T3
T2
T1
L3
L2
L1
TB8
TB2 TB1
GFR1
SPD1

Table of Contents

Related product manuals