EasyManua.ls Logo

Daikin EWAQ-E Series - Operating Limits

Daikin EWAQ-E Series
44 pages
Print Icon
To Next Page IconTo Next Page
To Next Page IconTo Next Page
To Previous Page IconTo Previous Page
To Previous Page IconTo Previous Page
Loading...
D-EIMAC00801-17EN-AR - 6/44
Label Identification
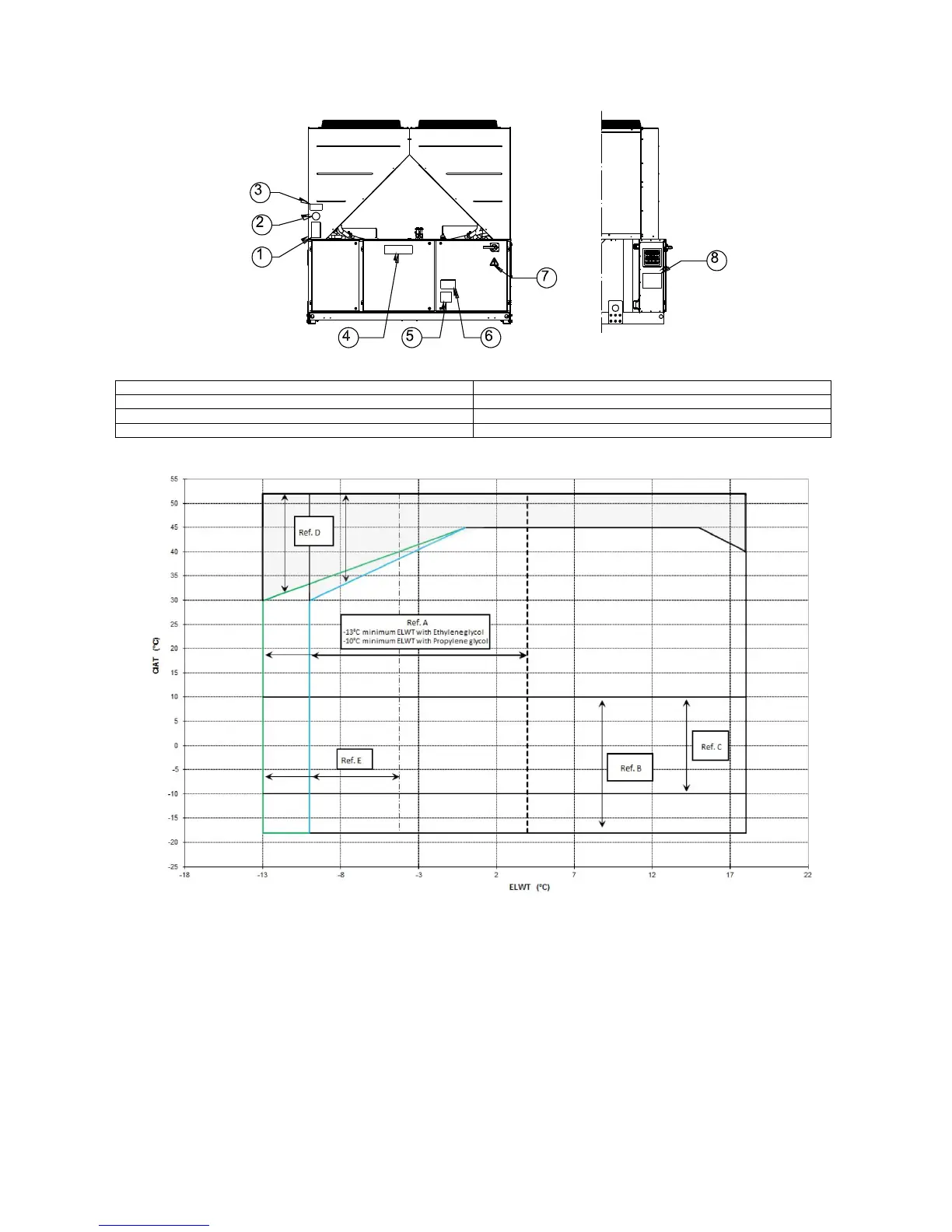
Figure 2 - Operating limits
Note
The above graphic represents a guidelines about the operating limits of the range. Please refer to Chiller Selection Software
(CSS) for real operating limits working conditions for each size.
Legend
CIAT = Condenser Inlet Air Temperature (°C)
ELWT = Evaporator Leaving Water Temperature (°C)
A = Operation with Glycol (below 4°C Evap LWT)
B = Fan speed modulation or Speedtroll required (below 10°C Condens. Air Temp.)
C = Fan speed modulation or Speedtroll required (below 10°C and up to -10°C Condens. Air Temp.)*
*Only referred to units with 4-5-6 fans
D = In this area units can work at partial load
E = In this area the unit minimum capacity might be higher than value shown in Technical Specification table
F = Standard Efficiency (standard sound)
G = High Efficiency (standard sound)
1 Non flammable gas symbol
5 Cable tightening warning
2 Gas type
6 Hazardous Voltage warning
3 Unit nameplate data
7 Electrical hazard symbol
4 Manufacturer’s logo
8 Lifting instructions

Related product manuals