EasyManua.ls Logo

Daikin EWAQ-E - Page 10

Daikin EWAQ-E
209 pages
Print Icon
To Next Page IconTo Next Page
To Next Page IconTo Next Page
To Previous Page IconTo Previous Page
To Previous Page IconTo Previous Page
Loading...
D-EIMAC00804-14EU - 10/209
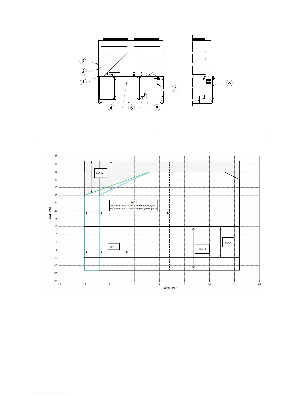
Label Identification
Figure 2 - Operating limits
Note
The above graphic represents a guidelines about the operating limits of the range. Please refer to Chiller Selection Software
(CSS) for real operating limits working conditions for each size.
Legend
CIAT = Condenser Inlet Air Temperature (°C)
ELWT = Evaporator Leaving Water Temperature (°C)
A = Operation with Glycol (below 4°C Evap LWT)
B = Fan speed modulation or Speedtroll required (below 10°C Condens. Air Temp.)
C = Fan speed modulation or Speedtroll required (below 10°C and up to -10°C Condens. Air Temp.)*
*Only referred to units with 4-5-6 fans
D = In this area units can work at partial load
E = In this area the unit minimum capacity might be higher than value shown in Technical Specification table
F = Standard Efficiency (standard sound)
G = High Efficiency (standard sound)
1
– Non flammable gas symbol
5
– Cable tightening warning
2
– Gas type
6
– Hazardous Voltage warning
3
– Unit nameplate data
7
– Electrical hazard symbol
4
– Manufacturer’s logo
8
– Lifting instructions

Related product manuals