EasyManua.ls Logo

Daikin EWAQ-E - Page 140

Daikin EWAQ-E
209 pages
Print Icon
To Next Page IconTo Next Page
To Next Page IconTo Next Page
To Previous Page IconTo Previous Page
To Previous Page IconTo Previous Page
Loading...
D-EIMAC00804-14EU – 140/209
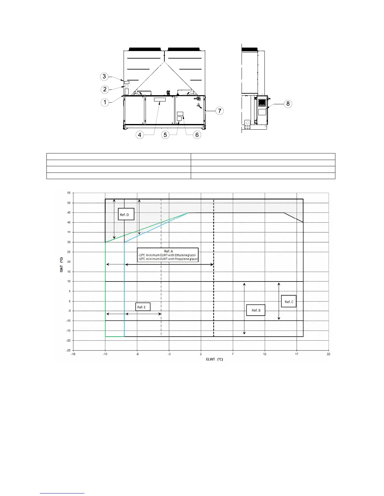
Identifikace štítku
Obrázek 2 - Provozní limity
Poznámka
Graf nahoru uvádí přibližný údaj o provozním omezení rozsahu. Konzultujte software příslušného chilleru (CSS) vztahující se k
provozním limitům v reálných pracovních podmínkách pro každou dimenzi zařízení.
Vysvětlivky
CIAT = Teplota vzduchu na vstupu kondenzátoru (°C)
ELWT = Teplota vody na výstupu výparníku (°C)
A = Fungování s glykolem (tepl. vody na výstupu výparníku nižší než 4°C)
B = nastavení potřebné rychlosti ventilátoru nebo speedtroll (tepl. vzduchu kondenzace nižší než 10°C )
C = nastavení potřebné rychlosti ventilátoru nebo speedtroll (tepl. vzduchu kondenzace mezi 10°C a -10°C)
*
*pouze v případě jednotek vybavených 4-5-6 ventilátory
D = v této zóně mohou jednotky pracovat při částečm zatížení
E = v této zóně minimální kapacita jednotky může být větší, než je uvedeno v tabulce technických specifikací
F = standardní výkonnost (standardní zvuková emise)
G = vysoká výkonnost (standardní zvuková emise)
1
– Symbol nehořlavého plynu
5
– Upozornění o utažení kabelů
2
– Typ plynu
6
– Upozornění o nebezpečném napě
3
– Údaje identifikačního štítku zařízení
7
– Symbol elektrického nebezpečí
4
– Logo výrobce
8
– Pokyny ke zvedání

Related product manuals