EasyManua.ls Logo

Daikin EWAQ-E - Page 150

Daikin EWAQ-E
209 pages
Print Icon
To Next Page IconTo Next Page
To Next Page IconTo Next Page
To Previous Page IconTo Previous Page
To Previous Page IconTo Previous Page
Loading...
D-EIMAC00804 -14EU – 150/209
Identifikacija naljepnica
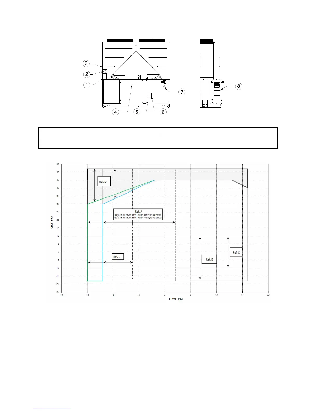
Slika 2 - Radna ograničenja
Napomena
Gore prikazani grafikon predstavlja vodič o operativnim ograničenjima. Molimo Vas konzultirajte Software za izbor Rashladnog
Uređaja (CSS) da biste vidjeli koja su ograničenja za svaku veličinu.
Tumač
CIAT = Kondenzator Ulazna Temperatura Zraka (°C)
ELWT = Isparivač Izlazna Temperatura Vode (°C)
A = Operacije s Glikolom (ispod 4°C Ispar LWT)
B = Brzina ventilacije moduliranja ili potrebni Speedtroll (ispod 10°C Kondenz. Temp.Zraka)
C = Brzina ventilacije moduliranja ili potrebni Speedtroll (ispod 10°C Kondenz. Temp.Zraka)*
*Odnosi se samo na uređaje s 4-5-6 ventilatora
D = U ovom području uređaj može raditi pod djelimičnim opterećenjem
E = U ovom području minimalni kapacitet uređaja može biti viši od vrijednosti prikazane na tablici sa Tehničkim Specifikacijama
F = Standardna Učinkovitost (standardni zvuk)
G = Visoka Učinkovitost (standardni zvuk)
1
– Simbol nezapaljivog plina
5
– Upozorenje o zategnutosti kablova
2
– Vrsta plina
6
– Upozorenja o opasnom naponu
3
– Podaci na natpisnoj pločici uređaja
7
– Simbol električne opasnosti
4
– Oznaka proizvođača
8
– Upute o podizanju

Related product manuals