EasyManua.ls Logo

Daikin EWAQ-E - Page 190

Daikin EWAQ-E
209 pages
Print Icon
To Next Page IconTo Next Page
To Next Page IconTo Next Page
To Previous Page IconTo Previous Page
To Previous Page IconTo Previous Page
Loading...
D-EIMAC00804-14EU – 190/209
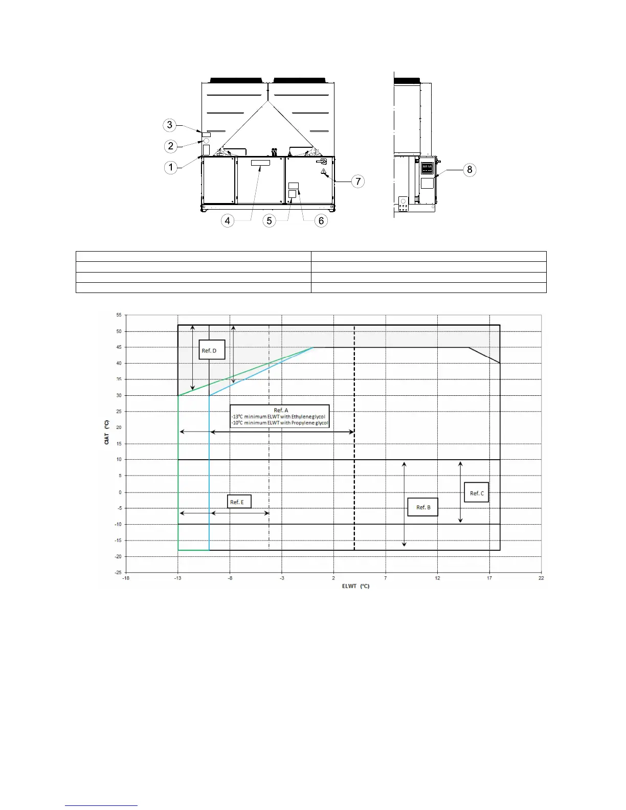
Обозначения на етикета
Схема 2 - Работни ограничения
Бележка
Графиката по-горе, показва насоки за работните ограничения на обхвата. Моля направете справка със Софтуера за
Избор на Охладителя (CSS) за реалните работни ограничения на работните условия за всеки вид.
Легенда
CIAT = Кондензатор Температура на Въздуха (°C)
ELWT = Изпарител Температура на Изпаряване на Водата (°C)
A = Работа с Гликол (под 4°C Изпар. Ниска Темп.на Водата)
B = Модулатор на скоростта на вентилатора, който може да е и непрекъснат (под 10°C Конденз Темп.на Въздуха)
C = Модулатор на скоростта на вентилатора, който може да е и непрекъснат (под 10°C и до -10°C Конденз Темп.на Въздуха)
* Само при системи с 4-5-6 вентилатора
D = В тази зона системата може да работи с частично натоварване
E = В тази зона, минималният капацитет на системата трябва да бъде по-висока от стойността показана в таблицата с
Техническа Спецификация
F = Стандартна Ефективност (стандартен звук)
G = Висока Ефективност (стандартен звук)
1
Символ за незапалим газ
5
Указание за затягане на кабелите
2
Вид на газа
6
Указания за опасно напрежение
3
Обозначителни данни на табелката на уреда
7
Символ за електрическа опасност
4
Лого на производителя
8
Инструкции за повдигане

Related product manuals