EasyManua.ls Logo

Daikin EWAQ-E - Page 20

Daikin EWAQ-E
209 pages
Print Icon
To Next Page IconTo Next Page
To Next Page IconTo Next Page
To Previous Page IconTo Previous Page
To Previous Page IconTo Previous Page
Loading...
D-EIMAC00804-14EU – 20/209
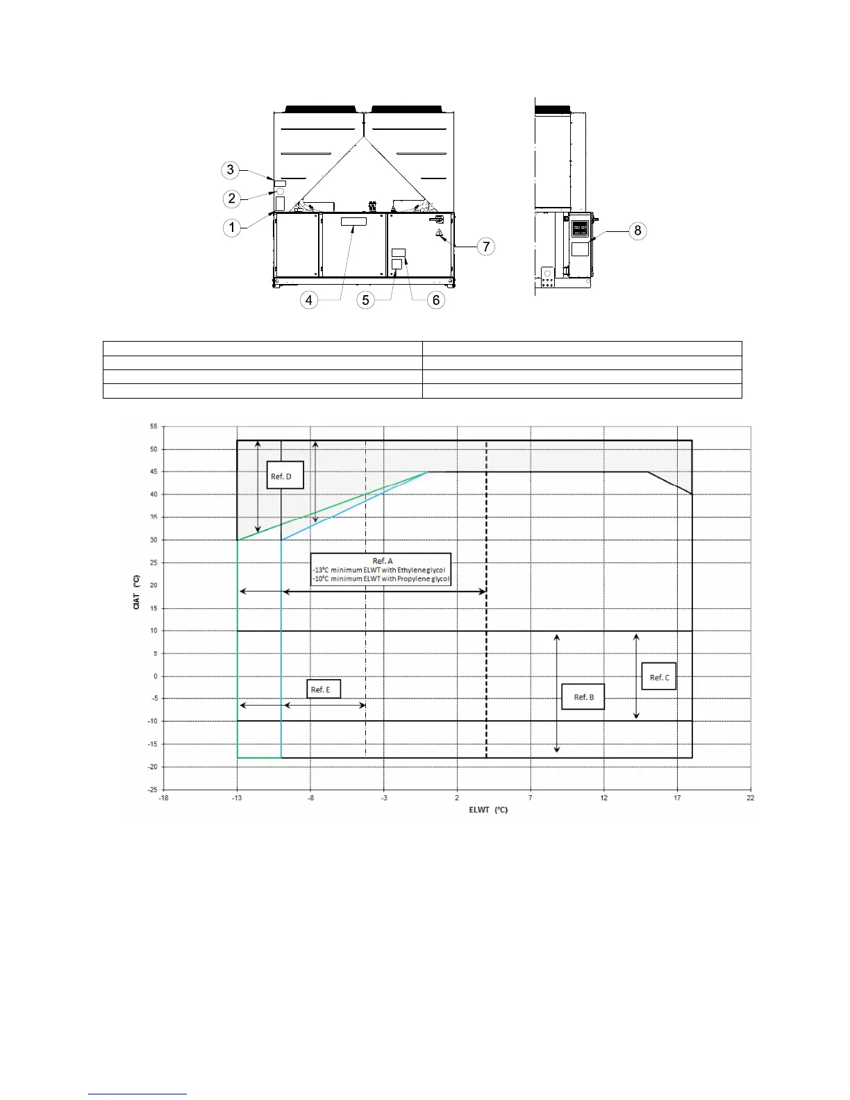
Schilder-Anordnung
Ab bildung 2 - Einsatzgrenzen
Anmerkung
The obere Graphik zeigt die Grenzlinien des Einsatzbereichs. Bitte in der Kaltwassersatz Auswahlsoftware (CSS) für die reellen
Betriebsgrenzen der Arbeitsbedingungen für jede Größe nach.
Zeichenerklärung
CIAT = Condenser Inlet Air Temperature (°C) (Verflüssiger Luftzuströmtemperatur (°C))
ELWT = Evaporator Leaving Water Temperature (°C) (Verdampfer-Auslass-Wassertemperatur (°C))
A = Betrieb mit Glykol (unter 4°C Verdampfer-AWT)
B = Einstellung der Gebläsegeschwindigkeit oder Geschwindigkeitskontrolle erforderlich (unter 10°C Kondens. Lufttemp.)
C = Einstellung der Gebläsegeschwindigkeit oder Geschwindigkeitskontrolle erforderlich (unter 10°C und bis tu -10 °C Kondens. Lufttemp.)*
*Nur für Einheiten mit 4-5-6 Gebläsen
D = In diesem Bereich können Einheiten mit Teillast arbeiten
E = In diesem Bereich sollte die Mindestleistung der Einheit höher als der in der Tabelle mit den Technischen Spezifikationen
F = Standardeffizienz (Standardgeräusch)
G = Hocheffizienz (Standardgeräusch)
1
– Symbol für nicht entflammbare Gase
5
– Warnhinweis zur Kabelbefestigung
2
– Gasart
6
– Warnhinweis vor gefährlicher Spannung
3
– Typenschild der Einheit
7
– Warnzeichen vor elektrischen Gefahren
4
– Herstellerlogo
8
– Hebeanweisungen

Related product manuals