EasyManua.ls Logo

Daikin EWAQ-E - Page 200

Daikin EWAQ-E
209 pages
Print Icon
To Next Page IconTo Next Page
To Next Page IconTo Next Page
To Previous Page IconTo Previous Page
To Previous Page IconTo Previous Page
Loading...
D-EIMAC00804-14EU – 200/209
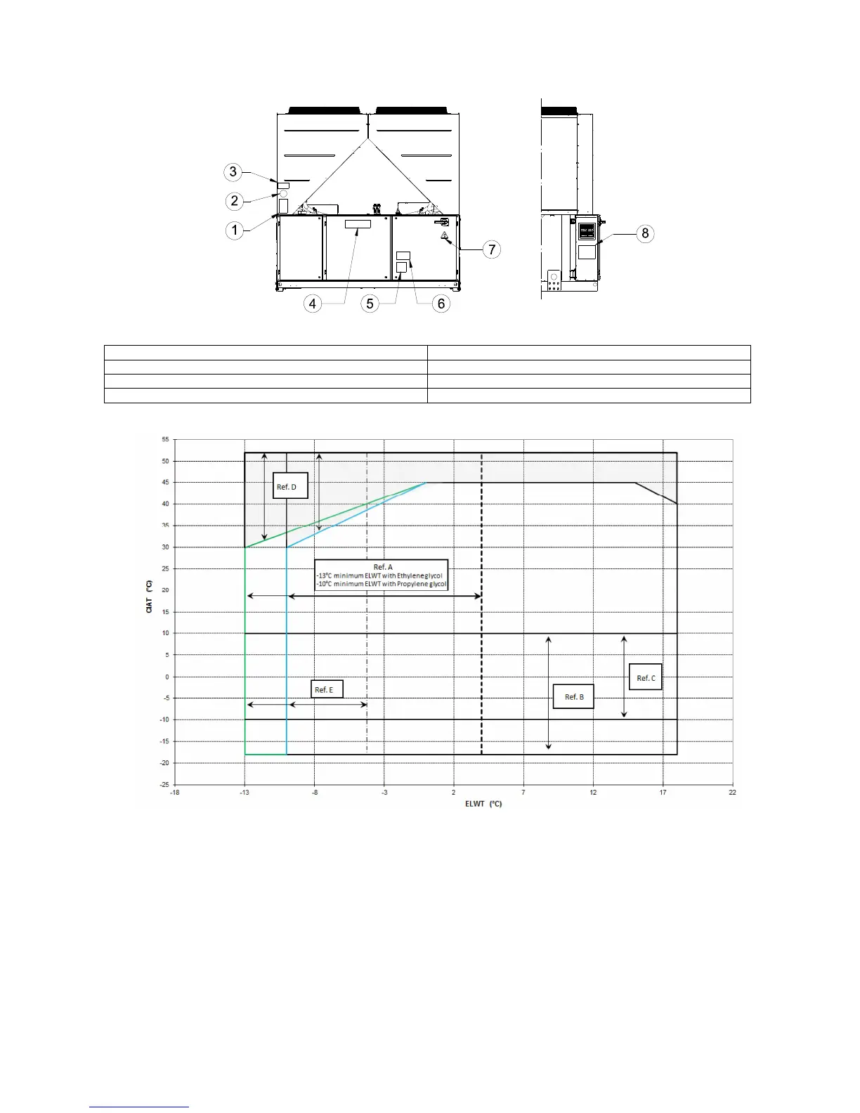
Opis oznak
Slika 2 – Meje delovanja
Opomba
Zgornja slika predstavlja smernice glede meja delovanja območja. Delovne pogoje pri pravih mejah delovanja za vsako od
velikosti poiščite v programski opremi Chiller Selection Software (CSS).
Legenda
CIAT = temperatura zraka, ki vstopa v kondenzator (°C)
ELWT = temperatura vode, ki izstopa iz uparjalnika (°C)
A = delovanje z glikolom (ko ima voda, ki izstopa iz uparjalnika, manj kot 4 °C)
B = potrebno je prilagajanje hitrosti ventilatorja ali spreminjanje hitrosti (ko ima zrak, ki vstopa v kondenzator, manj kot 10 °C)
C = potrebno je prilagajanje hitrosti ventilatorja ali spreminjanje hitrosti (ko ima zrak, ki vstopa v kondenzator, manj kot 10 °C in več kot –1C)
*Velja le za enote s 4, 5 ali 6 ventilatorji
D = v tem območju lahko enote delujejo pri delni obremenitvi
E = v tem območju je minimalna zmogljivost enote lahko večja od vrednosti, zapisane v tabeli s tehničnimi specifikacijami
F = standardna učinkovitost (standardni zvok)
G = visoka učinkovitost (standardni zvok)
1
– znak za nevnetljivi plin
5
– opozorilo glede zatezovanja kablov
2
– vrsta plina
6
– opozorilo za nevarno napetost
3
– podatki na napisni ploščici
7
– znak za nevarnost električnega udara
4
– logotip proizvajalca
8
– navodila za dvigovanje

Related product manuals