EasyManua.ls Logo

Daikin EWAQ-E - Page 90

Daikin EWAQ-E
209 pages
Print Icon
To Next Page IconTo Next Page
To Next Page IconTo Next Page
To Previous Page IconTo Previous Page
To Previous Page IconTo Previous Page
Loading...
D-EIMAC00804-14EU – 90/209
Определение ярлыков
Рису
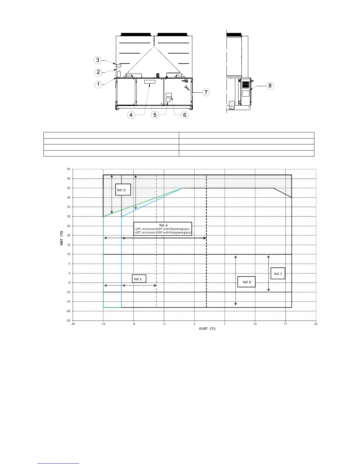
Замечание
Вышеприведённый график даёт ориентировочные пределы рабочих условий. Реальные эксплуатационные пределы в определённых рабочих
условиях для агрегатов разных размеров приведены в программном обеспечении выбора чиллера (CSS).
Условные обозначения
CIAT
= Температура воздуха на входе в конденсатор (°C)
ELWT
= Температура воздуха на выходе из испарителя (°C)
A
= Работа с гликолем (темп. воды на выходе из испарителя ниже 4°C)
B
= регулировка скорости вентилятора или необходимый speedtroll (температура конденсирующего воздуха ниже 10°C )
С
= регулировка скорости вентилятора или необходимый speedtroll (температура конденсирующего воздуха между 1C и -1C)*
*
только для агрегатов с 4, 5, 6 вентиляторями
D
= в данной зоне агрегат может функционировать частично
E
= в данной зоне минимальная мощность агрегата может превышать значение, указанное в таблице технических данных
F
= стандартная эффективность (стандартный уровень шума)
G
= высокая эффективность (стандартный уровень шума)
1
Обозначение невоспламеняющегося газа
5
Предупреждение замыкание проводов
2
Тип газа
6
Предупреждение опасное напряжение
3
Данные опознавательной таблички агрегата
7
Обозначение электрической опасности
4
Логотип изготовителя
8
Инструкции по подъёму

Related product manuals