EasyManua.ls Logo

Daikin FBQ35B8V1 - Filter Installation Method

Daikin FBQ35B8V1
25 pages
To Next Page IconTo Next Page
To Next Page IconTo Next Page
To Previous Page IconTo Previous Page
To Previous Page IconTo Previous Page
Loading...
Indoor Units • R-410A • FBQ-B8V1_FBQ-B8V3B
1
11
Split Sky Air • Indoor Units
23
11 Installation
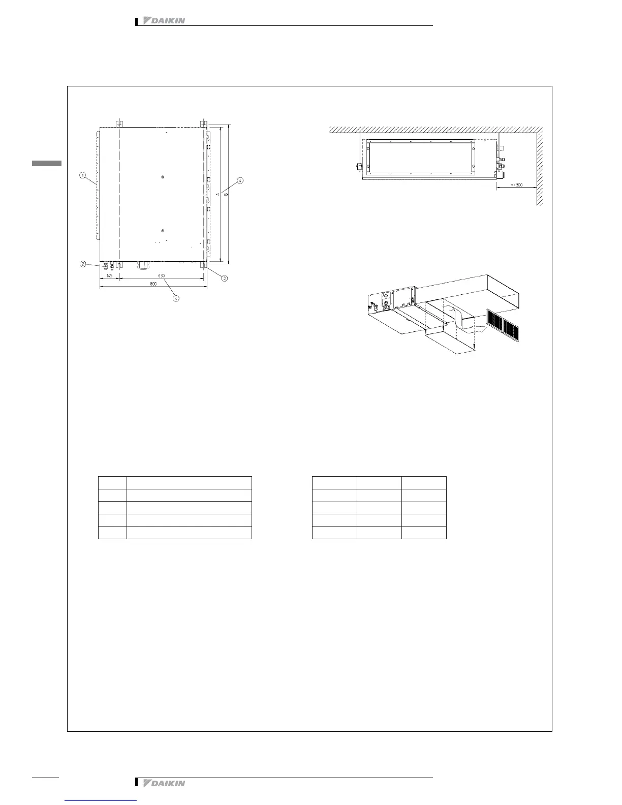
11 - 2 Filter installation method
Number Description
1 Indoor unit
2 Pipe connections
3 Suspension bolt pitch (4x)
4 Suspension bolt pitch distance
Unit A B
FBQ35,50 700 750
FBQ60 1000 1050
FBQ71 1000 1050
FBQ100,125,140 1400 1450
3TW22043-6D
Suspension bolt pitch
Service space
FBQ-B

Related product manuals