EasyManua.ls Logo

Daikin FBQ60D2VEB - Maintenance Inspection

Daikin FBQ60D2VEB
215 pages
Print Icon
To Next Page IconTo Next Page
To Next Page IconTo Next Page
To Previous Page IconTo Previous Page
To Previous Page IconTo Previous Page
Loading...
ESIE15-13B Field Setting from Outdoor Unit PCB
Field Setting 83
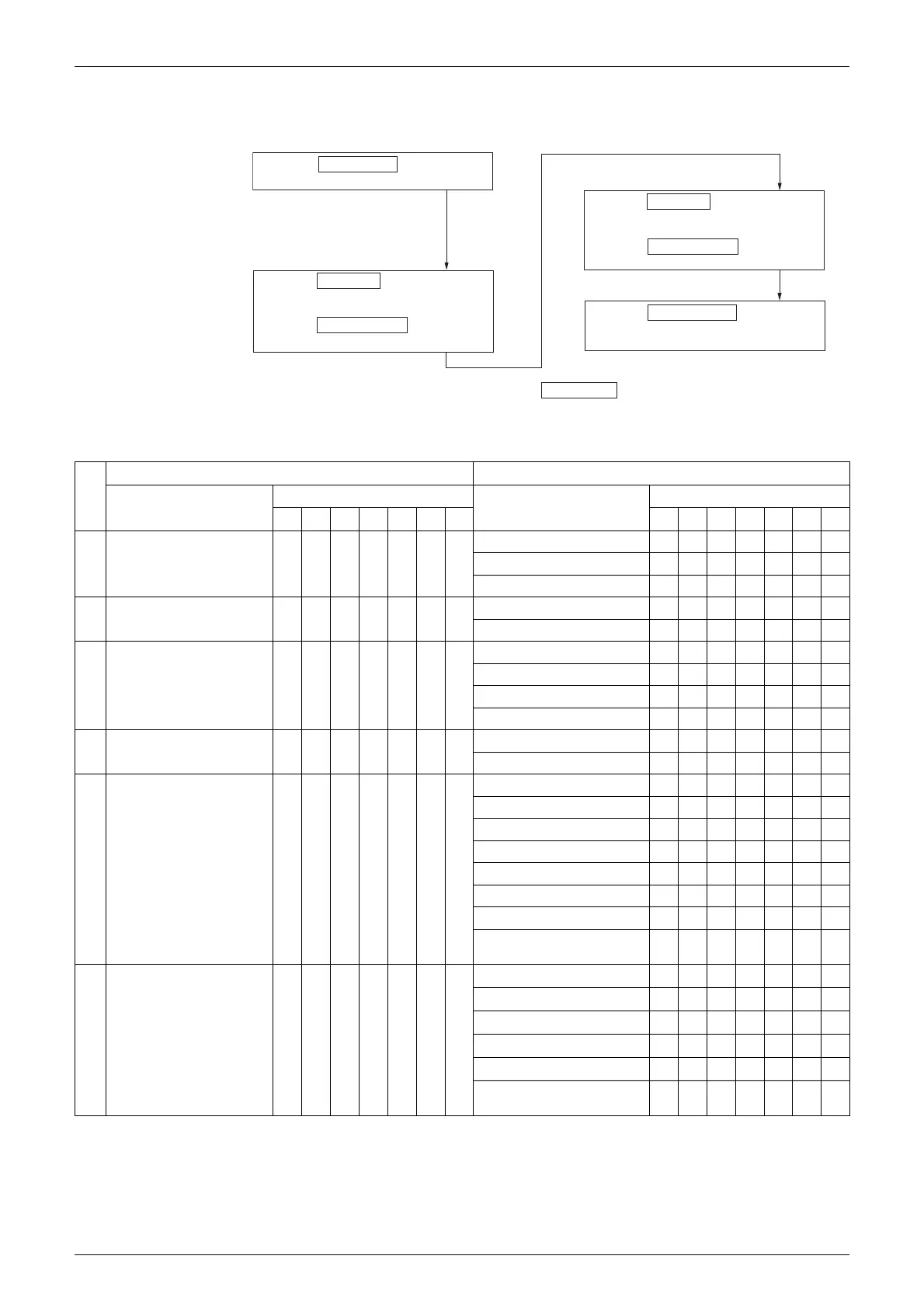
3.2.3 Setting Mode 2
In this mode, settings for the following items can be made.
Press the MODE (BS1) button for 5
seconds and set to “Setting mode 2”.
Press the SET (BS2) button and set the
LED display to a setting item (1).
Press the RETURN (BS3) button and
decide the item.
<Selection of setting items>
<Selection of setting conditions>
Press the SET (BS2) button and set to
the setting condition you want.
Press the RETURN (BS3) button and
decide the condition.
Press the RETURN (BS3) button and
set to the initial status of “Setting mode
2”.
If you become unsure of how to proceed, push the MODE (BS1) button and return to setting mode 1.
h: OFF k: ON
No.
Display of setting items Display of setting conditions
Setting items
LED display
Setting condition
LED Display
H1P H2P H3P H4P H5P H6P H7P H1P H2P H3P H4P H5P H6P H7P
3 Demand 2 operation bck h h h h bck bck
30% Demand khhhkhh
40% Demand (factory set) khhhhkh
50% Demand khhhhhk
7
Reduced airflow (set to
low noise level 1)
bck h h h bck bck bck
OFF khhhhhh
ON khhhhhk
11 TeS Lower limit value bck h h bck h bck bck
0°C khhhhhk
2°C (factory set) khhhhkh
4°C khhhhkk
6°C khhhkhh
28
Refrigerant recovery
mode
khkkkhh
OFF (factory setting) khhhhhk
ON khhhhkh
33 TeS Lower limit value kkhhhhk
0°C (factory set) khhhhhk
6°C khhhhkh
9°C khhhhkk
11°C khhhkhh
13°C khhhkhk
15°C khhhkkh
17°C khhhkkk
Weather depending control
in cooling
khhkhhh
34 TcS Upper limit value kkhhhkh
60°C khhhhhk
50°C khhhhkh
47°C khhhhkk
45°C khhhkhh
43°C khhhkhk
Weather depending control
in heating
khhhkkh

Table of Contents

Other manuals for Daikin FBQ60D2VEB

Related product manuals