EasyManua.ls Logo

Daikin FFN15CV1 - Pre Start Up Maintenance

Daikin FFN15CV1
51 pages
Print Icon
To Next Page IconTo Next Page
To Next Page IconTo Next Page
To Previous Page IconTo Previous Page
To Previous Page IconTo Previous Page
Loading...
42
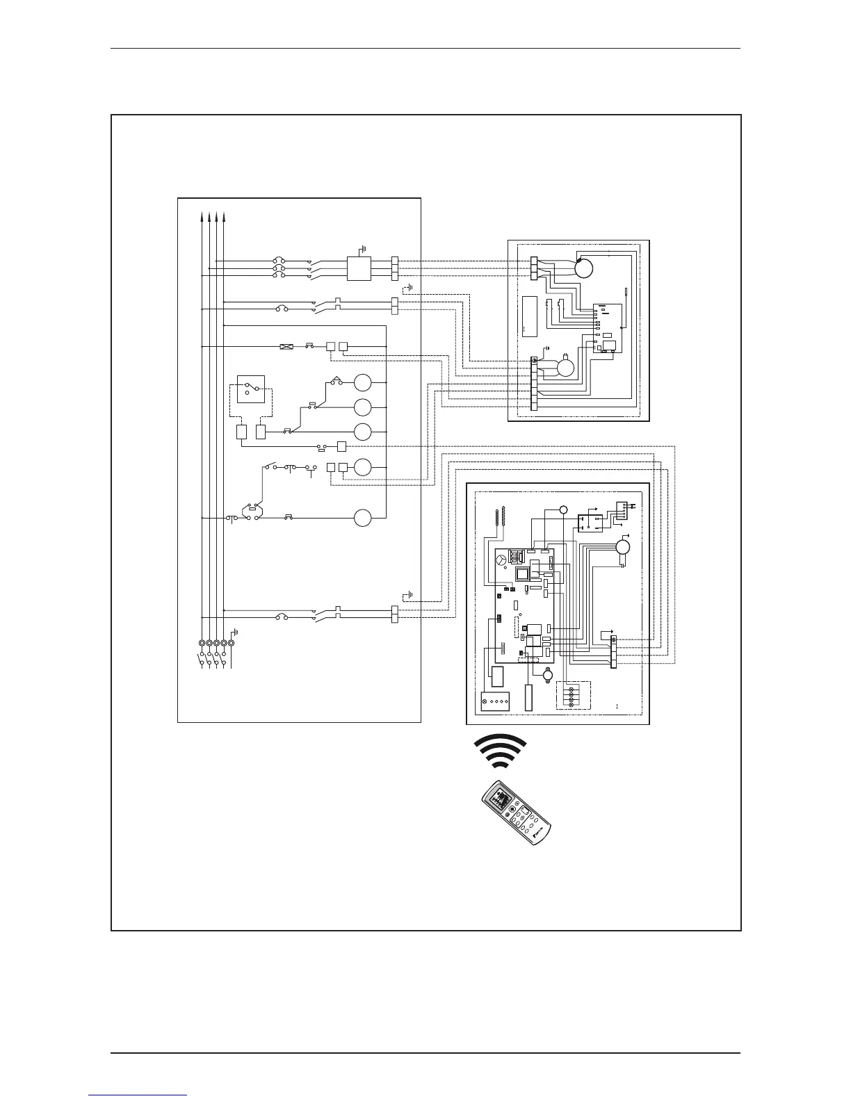
Wiring Diagram
Indoor Unit
Model: FCN40/50FV1
Outdoor Unit
Model: RN40/50DY1
KEY :
FIELD SUPPLY WIRING
AS :
AIR SWING MOTOR
D
P :
DRAIN PUMP
FM :
FAN MOTOR
G/Y
G/Y
G/Y
FM
G/Y
BLUE
BLUE
BLUE
R
L
L N
N R S T
A/T
STARTER
52C1
MCB3
52C1
3.15AFUSE
51F2
51F2
SW2
52F2
52F2
52F1
1T2F251F25
A1
A2
52C1
51F1
STOP
STOP
START
R
SW1
S
T
N
E
380-415V
3N~
50Hz
POWER SUPPLY
MCB1
51F1
52F1
START
A3
A4
COMP
X1
X1
TH
EXTERNAL STARTER BOARD
(FIELD SUPPLY WIRING)
TH
TH
T1
3 MIN
MCB2
S T
HP
LP
BLUE
BLACK
BLACK
BROWN
BLUE
PURPLE
RED
RED
U
V
W
WHITE
RED
WHITE
BLACK
RED
TDVSP
OD
BLUE
BLACK
COMPRESSOR
CRANKCASE
HEATER
RED
V01
F01
T01
(HP) (HP) (LP)
FO3
FO2
S
LP
R T
L1
COM
RL_COM
L2(N)
NC(LC)
CAPACITOR
FAN
MOTOR
BLACK
WHITE
G/Y
G/Y
N
L
A3 A4A2A1
INDOOR COIL SENSOR
INDOOR AIR SENSOR
DISPLAY BOARD
WIRED
CONTROLLER
FLOAT SWITCH
RED
PLASMA
RED
BLACK
L-OUT
L-I
N N-IN
N-OUT
PURPLE
PURPLE
RED
BLUE
BLUE
PINK
BROWN
ORANGE
PURPLE
L
COM
P.
N
DP
BLACK
AS
BLACK
LED LIGHTING
QUITE (CKE)
HIGH
T FULL
CN DISPLAY
CN1
CN3
CN2 CN6
CN8
ID ROOM
EO8
REG1
LIGHT
N2
N1
LIVE
COMP.
L
RED
RY WTP
WTP
EO2
EO1
CN_PGRM
TRANSFOMER
LOW
MED
FIELD SUPPLY WIRING
PSV :
PHASE SEQUENTIAL
HP
:
AUTO RESET HP SWITCH
LP :
AUTO RESET LP SWITCH
DT
:
DISCHARGE THERMOSTAT
TURBO
Q
UIET
SLEEP
MODE
TIMER
CANCEL
ON
OFF
SWING
FAN
CANCEL
CLOCK
(BCFL2B5)

Related product manuals