1 2 3 4 5
10 118 976
12 13 14 15 16
ENGLISH ENGLISH ENGLISH ENGLISH ENGLISH
ENGLISH ENGLISH ENGLISH ENGLISH ENGLISHENGLISH
ENGLISH ENGLISH ENGLISH ENGLISH ENGLISHENGLISH
SAFETY PRECAUTIONS
MODELS
FTXC20DV1B RXC20DV1B
FTXC25DV1B RXC25DV1B
FTXC35DV1B RXC35DV1B
FTXC50DV1B RXC50DV1B
FTXC60DV1B RXC60DV1B
FTXC71DV1B RXC71DV1B
English
Installation Manual
R32 Split Series
INSTALLATION MANUAL
3P621327-2 E
DAIKIN ROOM AIR CONDITIONER
INSTALLATION MANUAL
R32 SPLIT SERIES
Read the precautions in this manual
carefully before operating the unit.
This appliance is filled with R32.
• The precautions described herein are classified as WARNING and CAUTION.
They both contain important information regarding safety. Be sure to observe all precautions without fail.
• Meaning of WARNING and CAUTION notices.
WARNING
Failure to follow these instructions properly may result in personal injury or loss of life.
CAUTION
Failure to observe these instructions properly may result in property damage or personal injury, which
may be serious depending on the circumstances.
• The safety marks shown in this manual have the following meanings:
Be sure to follow the instructions. Be sure to establish a ground connection. Never attempt.
• After completing installation, conduct a trial operation to check for faults and explain to the customer how to operate
the air conditioner and take care of it with the aid of operation manual.
WARNING
• Ask your dealer or qualifi ed person to carry out installation work.
Do not attempt to install the air conditioner yourself. Improper installation may result in water leakage, electric shocks or fi re.
• This appliance is not intended for use by persons, including children, with reduced physical, sensory or mental capabilities, or lack of
experience and knowledge, unless they have been given supervision or instruction concerning use of the appliance by a person responsible
for their safety.
• Children should be supervised to ensure that they do not play with the appliance.
• Install the air conditioner according to the instructions given in this manual.
Incomplete installation may cause water leakage, electrical shock, or fi re.
• Be sure to use only the specifi ed accessories and parts for installation work.
Failure to use the specifi ed parts may result in the unit falling, water leakage, electric shocks or fi re.
• Install the air conditioner on a foundation strong enough to withstand the weight of the unit.
A foundation of insuffi cient strength may result in the equipment falling and causing injury.
• Electrical work must be performed in accordance with relevant local and national regulations and with instructions in this installation manual.
Be sure to use a dedicated power supply circuit only. Insuffi ciency of power circuit capacity and improper workmanship may result in electric shocks or fi re.
• Be sure to use a dedicated power circuit. Never use a power supply shared by another appliance.
• Use a cable of suitable length.
Do not use tapped wires or an extension lead, as this may cause overheating, electric shocks or fi re.
• Make sure that all wiring is secured, the specifi ed wires are used, and that there is no strain on the terminal connections or wires.
Improper connections or securing of wires may result in abnormal heat build-up or fi re.
• When wiring the power supply and connecting the wiring between the indoor and outdoor units, position the wires so that the control box lid
can be securely fastened.
Improper positioning of the control box lid may result in electric shocks, fi re or overheating terminals.
• After connecting interconnecting and supply wiring, be sure to shape the cables so that they do not put undue force on the electrical covers
or panels. Install covers over the wires.
Incomplete cover installation may cause terminal overheating, electrical shocks, or fi re.
• When installing or relocating the air conditioner, be sure to bleed the refrigerant circuit to ensure it is free of air, and use only the specifi ed
refrigerant (R32).
The presence of air or other foreign matter in the refrigerant circuit cause abnormal pressure rise, which may result equipment damage and even injury.
• The installation height from the fl oor must be over 1.8m.
• If refrigerant gas leaks during installation, ventilate the area immediately.
Toxic gas may be produced if the refrigerant comes into contact with fi re.
• After completing installation, check for refrigerant gas leakage.
Toxic gas may be produced if the refrigerant gas leaks into the room and comes into contact with a source of fi re, such as a fan heater, stove or cooker.
• During pump-down, stop the compressor before removing the refrigerant piping.
If the compressor is still running and the stop valve is open during pump-down, air will be sucked in when the refrigerant piping is removed, causing abnormal pressure in
refrigeration cycle, which may result equipment damage and even injury.
• During installation, attach the refrigerant piping securely before running the compressor.
If the refrigerant pipes are not attached and the stop valve is open when the compressor is run, air will be sucked in, causing abnormal pressure in the refrigeration cycle,
which may result equipment damage and even injury.
• Be sure to earth the air conditioner.
Do not earth the unit to a utility pipe, lightning conductor or telephone earth lead. Imperfect earthing may result in electric shocks.
• Be sure to install an earth leakage breaker. Failure to install an earth leakage breaker may result in electrical shocks, or fi re.
NOTICE
Disposal requirement
Your air conditioning product is marked with this symbol. This means that electrical and electronic products shall not be mixed with unsorted household waste.
Do not try to dismantle the system yourself: the dismantling of the air conditioning system, treatment of the refrigerant, of oil and of other parts must be done by a qualified
installer in accordance with relevant local and national legislation. Air conditioners must be treated at a specialized treatment facility for re-use, recycling and recovery.
By ensuring this product is disposed of correctly, you will help to prevent potential negative consequences for the environment and human health. Please contact the installer or
local authority for more information. Batteries must be removed from the remote controller and disposed of separately in accordance with relevant local and national legislation.
CHOOSING AN INSTALLATION SITE
• Before choosing the installation site, obtain user approval.
Indoor Unit Outdoor Unit
The indoor unit should be sited in a place where:
• The restrictions on installation specified in the indoor unit
installation drawing are met.
• Both air intake and exhaust have clear paths met.
• The unit is not in the path of direct sunlight.
• The unit is away from the sources of heat or steam.
• There is no source of machine oil vapour (this may
shorten indoor unit life).
• Cool air is circulated throughout the room.
• The unit is away from electronic ignition type fluorescent
lamps (inverter or rapid start type). As these may shorten
the remote controller range.
• The unit is at least 1 metre away from any television or
radio set (unit may cause interference with the picture or
sound).
• Install at the recommended height (more than 1.8m).
• Do not install the units at or near doorway.
• Do not operate any heating apparatus too close to the
air conditioner unit or use in room where mineral oil, oil
vapour or oil steam exist, this may cause plastic part to
melt or deform as a result of excessive heat or chemical
reaction.
• When the unit is used in kitchen, keep flour away from
going into suction of the unit.
• This unit is not suitable for factory used where cutting oil,
mist or iron powder exist or voltage fluctuates greatly.
• Do not install the units at area like hot spring or oil
refinery plant where sulphide gas exists.
• Ensure the color of wires of the outdoor unit and the
terminal markings are same to the indoors respectively.
• IMPORTANT : DO NOT INSTALL OR USE THE AIR
CONDITIONER UNIT IN A LAUNDRY ROOM.
Do not use joined and twisted wires for incoming power
supply. The equipment is not intended for use in a
potentially explosive atmosphere
The outdoor unit should be sited in a place where:
• The restrictions on installation specified in the outdoor unit
installation drawing are met.
• Drain water causes no trouble or problem in particular.
• Both air intake and exhaust have clear paths of air.
• The unit is in a clear path of air but not directly exposed to
rain, strong winds, or direct sunlight.
• There is not fear of inflammable gas leakage.
• The unit is not directly exposed to salt, sulfidized gases, or
machine oil vapour (they may shorten outdoor unit life).
• Operation noise or hot (cold) air flow does not cause trouble
to neighbours.
• The unit is at least 3 metres away from any television or
radio antenna.
• Condensation dripping from the stop valve cannot damage
anything during operation.
CAUTION
When operating the air conditioner in a low outdoor ambient
temperature, be sure to follow the instructions described
below.
• To prevent exposure to wind, install the outdoor unit with its
suction side facing the wall.
• Never install the outdoor unit at a site where the suction
side may be exposed directly to wind.
• To prevent exposure to wind, it is recommended to install a
baffle plate on the air discharge side of the outdoor unit.
• In heavy snow areas, select an
installation site where the snow
will not affect the unit.
• If there is a likelihood of snow
accumulating on the outdoor
unit, attach a snow protection
hood.
• In high humidity areas or heavy
snow areas, it is recommended
to attach a drain pan heater to
prevent ice build-up from the
bottom frame.
• Construct a large canopy.
• Construct a pedestal.
Install the unit high enough off the
ground to prevent burying in snow
Wireless Remote Controller
• Do not expose the remote controller to direct sunlight (this
will hinder receiving signals from the indoor unit).
• Turn on all the fluorescent lamps in the room, if any, and
find the site where remote controller signals are properly
received by the indoor unit (within 7 metres).
CAUTION
Do not install the unit at altitude over 2000m for both
indoor and outdoor.
A
Mounting plate
1
B
Remote controller holder
1
C
AAA dry-cell batteries
2
D
Wireless remote controller
1
E
Fixing screws for remote controller
holder M3 × 16L
2
F
Titanium apatite deodorizing filter
2
G
Drain socket
1
H
Drain cap
1
I
Installation manual
1
*
Only for heat pump models.
J
Operation manual
1
ACCESSORIES
Important information regarding the refrigerant used
This product contains fuorinated greenhouse gases.
Do not vent gases into the atmosphere.
Refrigerant type: R32
GWP
(1)
value: 675
(1)
GWP = Global Warming Potential
1 Please fi ll in with indelible ink,
1
the factory refrigerant charge of the product,
2
the additional refrigerant amount charged in the field and
1
+
2
the total refrigerant charge
on the refrigerant charge label supplied with the product.
The filled out label must be adhered in the proximity of the product charging
port (e.g. onto the inside of the service cover).
Contains fluorinated greenhouse gases
2
1
1
1
2
2
kg
tCO
2
eq
GWP × kg
1000
=
=
+
kg
=
kg
=
GWP: 675
R32
a Factory refrigerant charge: see unit name plate
b Additional refrigerant amount charged
c Total refrigerant charge
d Quantity of fluorinated greenhouse gases of the total refrigerant
charge expressed as tonnes CO
2
equivalent.
e GWP = Global warming potential
NOTICE
Applicable legislation on uorinated greenhouse gases requires that the refrigerant charge of the unit is indicated both in weight and CO
2
equivalent.
Formula to calculate the quantity in CO
2
equivalent tonnes: GWP value of the refrigerant × total refrigerant charge [in kg] / 1000
2 Fix the label on the inside of the outdoor unit. There is a dedicated place for it on the wiring diagram label.
WARNING
• All electrical wiring must not touch the water piping or any moving parts of the fan motors.
• Confirm that the unit has been switched OFF before installing or servicing the unit.
• Disconnect from the main power supply before servicing the air conditioner unit.
• DO NOT pull out the power cord when the power is ON.
This may cause serious electrical shocks which may result in fire hazards.
• Keep the indoor and outdoor units, power cable and transmission wiring, at least 1m from TVs and radios, to prevent distorted pictures and static.
Depending on the type and source of the electrical waves, static may be heard even when more than 1m away.
• Do not use means to accelerate the defrosting process (if applicable) or to clean, other than those recommended by the manufacturer.
• The appliance must be stored in a room without continuously operating ignition sources (for example: open flames, an operating gas appliance or an operating electric heater).
• Do not pierce or burn.
• Be aware that refrigerants may not contain an odour.
• The appliance must be installed, operated and stored in a room with a floor area larger than Xm
2
(refer to Section “Special Precautions When Dealing With R32 Unit”).
In case it does not satisfy minimum floor area, it requires to install at good ventilation room.
• NOTE: The manufacturer may provide other suitable examples or may provide additional information about the refrigerant odour.
CAUTION
• Do not install the air conditioner at any place where there is danger of flammable gas leakage.
In the event of a gas leakage, build-up of gas near the air conditioner may cause a fire to break out.
• While following the instructions in this installation manual, install drain piping to ensure proper drainage and insulate piping to prevent condensation.
Improper drain piping may result in indoor water leakage and property damage.
• Tighten the flare nut according to specified method such as with a torque wrench.
If the flare nut is too tight, it may crack after prolonged use, causing refrigerant leakage.
• Do not overcharge the unit.
This unit is factory pre-charged. Overcharge will cause over-current or damage to the compressor.
• Ensure that the unit’s panel is closed after service or installation.
Unsecured panels will cause the unit to operate noisily.
• Sharp edges and coil surfaces are potential locations which may cause injury hazards.
Avoid from being in contact with these places.
• Before turning off the power supply set the remote controller’s ON/OFF switch to the “OFF” position to prevent the nuisance tripping of the unit.
If this is not done, the unit’s fans will start turning automatically when power resumes, posing a hazard to service personnel or the user.
• Make sure to provide for adequate measure in order prevent that the outdoor unit be used as a shelter by small animals. Small animal making contact with electrical parts can cause malfunctions, smoke or fire.
Please instruct the customer to keep the area around the unit clean.
• The temperature of refrigerant circuit will be high, please keep the inter-unit wiring away from copper pipes that are not thermally insulated.
• Only qualified personnel can handle, fill, purge and dispose of the refrigerant.
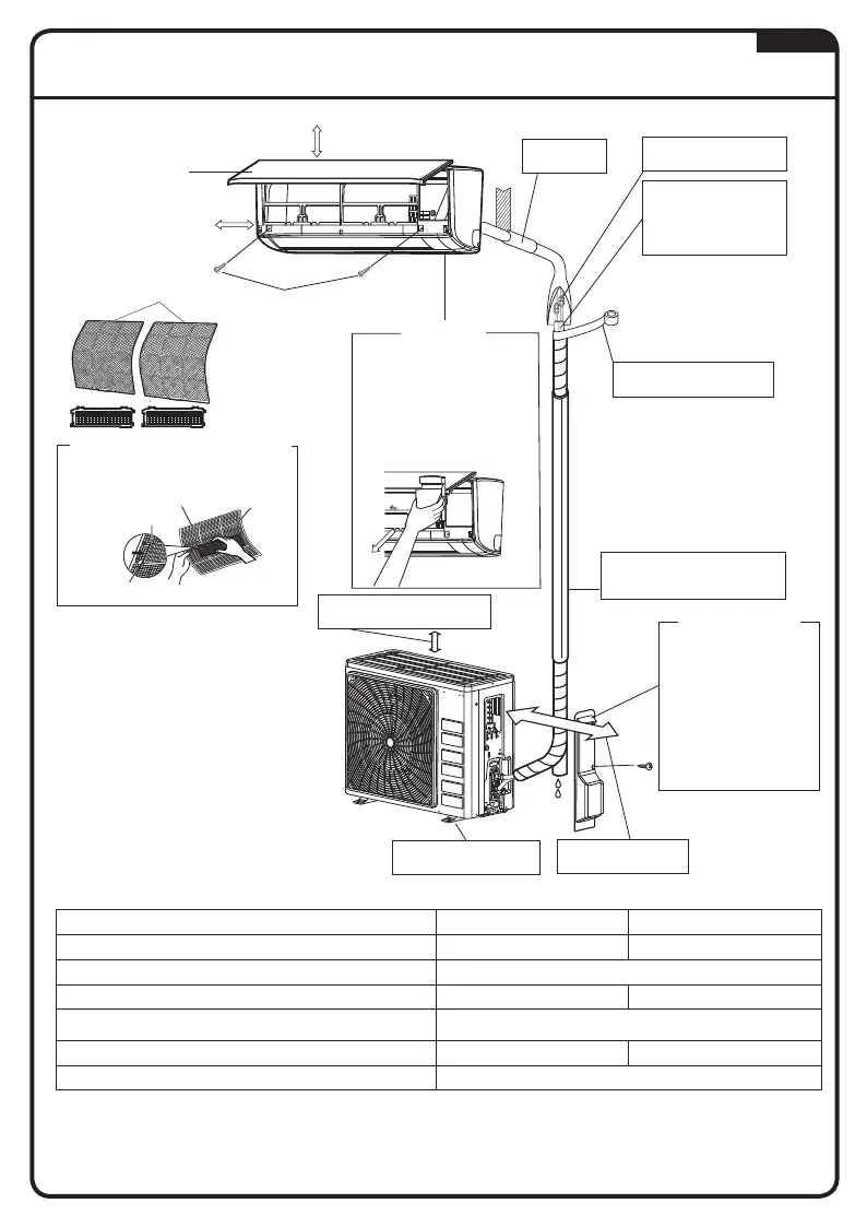
INDOOR/OUTDOOR UNIT INSTALLATION DRAWINGS
Air filters
Air filter
Screws
(M4 x 12L)
Front panel
55mm or more from ceiling
50mm or more from walls
(on both sides)
Service lid
Cut thermal insulation pipe
to an appropriate length and
wrap it with tape, making
sure that no gap is left in the
insulation pipe’s cut line.
Caulk pipe hole
gap with putty.
Refrigerant piping must be protected
from physical damage. Install a plastic
cover or equivalent.
Allow 300mm of work space below
the ceiling surface.
Tab
Where there is a danger of
the unit falling, use foot bolts.
Allow space for piping and
electrical servicing.
The flare connection should
be installed outdoors.
How to remove the stop
valve cover.
• Remove the screw on the
stop valve cover.
• Slide the lid downward to
remove it.
How to attach the stop
valve cover.
• Insert the upper part of the
stop valve cover into the
outdoor unit to install.
• Tighten the screws.
Stop valve cover
Wrap the insulation pipe with the
finishing tape from bottom to top.
The service lid is removable.
Opening method
1) Remove the service lid
screws.
2) Pull out the service lid
diagonally down in the
direction of the arrow.
3) Pull down.
Titanium apatite
deodorizing filter
Filter frame
Titanium apatite deodorizing filter (2)
500mm from wall
RXC20/25/35 RXC50/60/71
Max. allowable piping length 20m 30m
Min. allowable piping length
**
3m
Max. allowable piping height 15m 20m
Additional refrigerant required for refrigerant pipe
exceeding 7.5m in length
*
17g/m
Gas pipe 3/8 inch (9.5mm) 1/2 inch (12.7mm)
Liquid pipe 1/4 inch (6.4mm)
*
Be sure to add the proper amount of additional refrigerant.
Failure to do so may result in reduced performance.
**
The suggested shortest pipe length is 10ft (3m), in order to avoid noise from the outdoor unit and vibration.
(Mechanical noise and vibration may occur depending on how the unit is installed and the environment in which it is used.)
INDOOR INSTALLATION GUIDELINE
INSTALLING THE MOUNTING PLATE
• The mounting plate should be installed on
a wall which can support the weight of the
indoor unit.
1) Temporarily secure the mounting plate to the
wall, make sure that the panel is completely
level, and mark the drilling points on the wall.
2) Secure the mounting plate to the wall with
screws.
Recommended mounting plate retention spots and dimensions
Mounting plate fixing screw
The mounting plate should
be installed on a wall
which can support the
weight of the indoor unit.
Mounting plate
INDOOR UNIT FTXC20/25/35/50
Recommended mounting plate
retention spots (7 spots in all)
Place a leveler on these tabs.
Use a tape measure as shown.
Position the end of the tape
measure at
Through-the-wall
hole Ø 65mm
Drain hose position
unit : mm
50 170170
116.5117
241.6
241.6
46.4
770
Ø
65
Ø
65
46.4
49.549.5
All dimensions are in mm
INDOOR UNIT FTXC60/71
Recommended mounting plate
retention spots (7 spots in all)
Place a leveler on these tabs.
Use a tape measure as shown.
Position the end of the tape
measure at
Through-the-wall
hole Ø 65mm
Drain hose position
unit : mm
117
170 60
170
126.5
251.6
251.6
45.4
990
49.5
Ø
65
Ø
65
45.4
65.5
All dimensions are in mm
DRILLING A WALL HOLE AND INSTALLING WALL EMBEDDED PIPE
• For walls containing metal frame or metal board, be sure to use a wall embedded pipe and wall cover in the feed-through
hole to prevent possible heat, electrical shock, or fire.
• Be sure to caulk the gaps around the pipes with caulking material to
prevent water leakage.
1) Drill a feed-through hole of 65mm in the wall so it has a down slope
toward the outside.
2) Insert a wall pipe into the hole.
3) Insert a wall cover into wall pipe.
4) After completing refrigerant piping, wiring, and drain piping, caulk
pipe hole gap with putty.
Wall embedded pipe
(Field supply)
Caulking (Putty)
(Field supply)
Inside Outside
Wall embedded pipe
(Field supply)
Ø 65
Wall hole cover
(Field supply)
INSTALLING INDOOR UNIT
Right-side, right-back, or right-bottom piping.
Wire guide
Mounting plate
Hang indoor unit’s hook here.
mark
Remove pipe port cover here for
right-bottom piping
Bind refrigerant pipe and
drain hose together with
insulation tape.
Remove pipe port cover here
for right-side piping
Right-side piping
Right-back piping
Right-
bottom
piping
Mounting plate
When stripping the
ends of inter-unit wire
in advance, bundle
the wire lead ends
with insulation tape.
Inter-unit wire
1) Attach the drain hose to the underside of the refrigerant pipes with
adhesive vinyl tape.
2) Wrap the refrigerant pipes and drain hose together with insulation tape.
3) Pass the drain hose and refrigerant pipes through the wall hole, then set
the indoor unit on the mounting plate hooks by using the
markings at
the top of the indoor unit as a guide.
4) Open the front panel, then open the service lid.
(Refer to installation tips.)
5) Pass the inter-unit wire from the outdoor unit through the feed-through
wall hole and then through the back of the indoor unit.
Pull them through the front side. Bend the ends of tie wires upward for
easier work in advance. (If the inter-unit wire ends are to be stripped first,
bundle wire ends with adhesive tape.)
6) Press the bottom frame of the indoor unit with both hands to set it on the
mounting plate hooks. Make sure the wires leads do not catch on the
edge of the indoor unit.
Left-side, left-back, or left-bottom piping.
How to replace the drain plug and drain hose
• Removal method
1) Rotate to detach wire clip from hook on the right and remove
the drain hose.
2) Remove the drain plug on the left side and attach it to the
right side.
3) Insert the drain hose and tighten by rotating the wire clip to
hook.
Forgetting to tighten this may cause water leakages.
Drain hose attachment position
The drain hose is on the back of the unit.
Attachment on the left side Attachment on the right side
(factory default)
Back view of unit
Front side of unit
Left side
Right side
Wire clip
Wire clip
Drain hose
Drain hose
1) Attach the drain hose to the underside of the refrigerant pipes
with adhesive vinyl tape.
2) Be sure to connect the drain hose to the drain port in place of a
drain plug.
3) Shape the refrigerant pipe along the pipe path marking on the
mounting plate.
4) Pass drain hose and refrigerant pipes through the wall hole,
then set the indoor unit on mounting plate hooks, using the
markings at the top of indoor unit as a guide.
5) Pull in the inter-unit wiring.
6) Connect the inter-unit piping.
Do not apply lubricating oil (refrigerant
machine oil) when inserting.
Application causes deterioration and
drain leakage of the plug.
Left-side piping
Remove pipe port cover
here for left-side piping.
Remove pipe port cover
here for left-bottom piping.
Left-back piping
Left-bottom piping
How to set drain plug
Insert a hexagon wrench
(4mm)
No gap
Drain hose
Caulk this hole
with putty or
caulking material.
Bind with plastic tape.
Mounting plate
Wrap insulating tape around
the bent portion of refrigerant
pipe. Overlap at least half the
width of the tape with each turn.
WIRING
IMPORTANT :
*
The figures shown in the table are for information purpose only. They should be checked and selected
to comply with the local/national codes of regulations. This is also subject to the type of installation and
conductors used.
**
The appropriate voltage range should be checked with label data on the unit.
2
1
2
1
N
L
3
3
Outdoor Unit
Terminal Block
Indoor Unit
Terminal Block
N / L2
L / L1
Power
Supply
Main
Switch
Fuse /
Circuit
Breaker
Power Supply Cable
Interconnection
cable
There must be an all
pole disconnection in
the supply mains with
a contact separation of
at least 3mm.
Model
Indoor (FTXC) 20/25/35D 50/60/71D
Outdoor (RXC) 20/25/35D 50/60/71D
Voltage range
**
220-240V/~/50Hz +
Power supply cable size
*
mm
2
Number of conductors
1.5
3
2.5
3
Interconnection cable size
*
mm
2
Number of conductors
1.5
4
1.5
4
Recommended fuse /
circuit breaker rating
**
A
16 16
• All wires must be firmly connected.
• Make sure all the wire do not touch the refrigerant pipings, compressor or any moving parts.
• The connecting wire between the indoor unit and the outdoor unit must be clamped by using provided cord anchorage.
• The power supply cord must be equivalent to H07RN-F which is the minimum requirement.
• Make sure no external pressure is applied to the terminal connectors and wires.
• Make sure all the covers are properly fixed to avoid any gap.
• Use round crimp-style terminal for connecting wires to the power supply terminal block. Connect the wires by matching to
the indication on terminal block. (Refer to the wiring diagram attached on the unit).
Attach insulation sleeve
Round crimp-style terminal
Electric wire
• Used the correct screwdriver for terminal screws tightening. Unsuitable screwdrivers can damage the screw head.
• Over tightening can damage the terminal screws.
• Do not connect wire of different gauge to same terminal.
• Keep wiring in an orderly manner. Prevent the wiring from obstructing other parts and the terminal box cover.
Connect wires of the
same gauge to both sides.
Do not connect wires of the
same gauge to one side.
Do not connect wires
of different gauges.
OUTDOOR INSTALLATION GUIDELINE
INSTALLING OUTDOOR UNIT
• Where a wall or other obstacle is in the path of outdoor unit’s intake or exhaust airflow, follow the installation guidelines below.
• For any of the below installation patterns, the wall height on the exhaust side should be 1200mm or less.
Wall facing one side Walls facing two sides Walls facing three sides
Side view
Side view
Top view
Top view
Top view
Top view
1200
or less
Wall facing one side Walls facing two sides Walls facing three sides
More than 50
More than 100 More than 350
More
than 100
More than
350
More than 100
More than 350
More
than 50
More
than 50
More than
50
More than 100
More than
150
More than
100
More
than 50
More
than 50
More than 150
More than 300
More than
50
1200
or less
RXC20/25/35
RXC50/60/71
All dimensions are in mm
DRAIN WORK
1) Use drain socket for drainage and attach drain cap.
2) If the drain port is covered by a mounting base or floor surface,
place additional foot bases of at least 30mm (1-3/16") in height
under the outdoor unit’s feet.
3) In cold areas, do not use a drain socket, hose and caps with the
outdoor unit.
(Otherwise, drain water may freeze, impairing heating performance.)
Drain water hole
Bottom frame
Drain socket
Hose (available commercially, inner dia.
5/8" (16mm))
Bottom frame
Drain cap
Pinch the bottom
frame in.
CAUTION
If the unit is installed in a cold climate, take adequate
measures so that the evacuated condensate CANNOT freeze.
FLARING THE PIPE END
1) Cut the pipe end with a pipe cutter.
2) Remove burrs with the cut surface facing downward so that the
chips do not enter the pipe.
3) Put the flare nut on the pipe.
4) Flare the pipe.
5) Check that the flaring is properly made.
• Do not use mineral oil on flared part.
• Prevent mineral oil from getting into the system as this would
reduce the lifetime of the units.
• Never use piping which has been used for previous installations.
• Only use parts which are delivered with the unit.
• Do never install a drier to this unit in order to guarantee its lifetime.
• The drying material may dissolve and damage the system.
• Incomplete flaring may cause refrigerant gas leakage.
WARNING
Do not reuse joints which have been used once already.
CAUTION
Set exactly at the position shown below.
Pipe Size,
mm (in)
A (mm)
Flare Tool for
R32/R410A
Conventional flare tool
Clutch-type
Clutch-type
(Ridgid-type)
Wing-nut type
(Imperial-type)
6.4 (1/4") 0-0.5 1.0-1.5 1.5-2.0
9.5 (3/8") 0-0.5 1.0-1.5 1.5-2.0
12.7 (1/2") 0-0.5 1.0-1.5 2.0-2.5
15.9 (5/8") 0-0.5 1.0-1.5 2.0-2.5
19.1 (3/4") 0-0.5 1.0-1.5 2.0-2.5
Flaring
Die
A
Flare’s inner surface
must be flaw-free
The pipe end must be evenly
flared in a perfect circle.
Make sure that the flare nut is fitted.
Check
(Cut exactly at
right angles.)
Remove burrs.
REFRIGERANT PIPING
1) Use the flare nut fixed to the main unit. (To prevent cracking of the flare nut by aged deterioration.)
2) To prevent gas leakage, apply refrigeration oil only to the inner surface of the flare. (Use refrigeration oil for R32.)
3) Use torque wrenches when tightening the flare nuts to prevent damage to the flare nuts and gas leakage.
CAUTION
Align the centres of both flares and tighten the flare nuts 3 or 4 turns by hand. Then tighten them fully with the torque wrenches.
[Apply oil]
Apply refrigeration oil to the inner surface of the flare.
Do not apply refrigeration oil to the outer surface.
Do not apply refrigeration oil to the flare nut to
avoid tightening with excessive torque.
Flare nut
[Tighten]
Torque wrench
Spanner
Pipe union
Flare nut
Pipe Size, mm (in) Torque, Nm/(ft-lb)
6.4 (1/4") 18 (13.3)
9.5 (3/8") 42 (31.0)
12.7 (1/2") 55 (40.6)
15.9 (5/8") 65 (48.0)
19.1 (3/4") 78 (57.6)
Wall
Rain
Be sure to place
a cap.
If no flare cap is available,
cover the flare mouth
with tape to keep dirt or
water out.
1. Cautions on pipe handling
1) Protect the open end of the pipe against dust and moisture.
2) All pipe bends should be as gentle as possible.
Use a pipe bender for bending.
2. Selection of copper and heat insulation materials
When using commercial copper pipes and fittings, observe the following:
1) Insulation material: Polyethylene foam
Heat transfer rate: 0.041 to 0.052W/mK (0.035 to 0.045kcal/(mh •˚C)
Refrigerant gas pipe’s surface temperature reaches 110˚C max.
Choose heat insulation materials that will withstand this
temperature.
2) Be sure to insulate both the gas and liquid piping and to provide insulation dimensions as below.
Piping size, mm (in) Minimum bend radius Piping thickness Thermal insulation size Thermal insulation thickness
6.4 (1/4") 30mm or more
0.8mm
(C1220T-O)
I.D. 8-10mm
10mm Min.
9.5 (3/8") 30mm or more I.D. 12-15mm
12.7 (1/2") 40mm or more I.D. 14-16mm
15.9 (5/8") 50mm or more
1.0mm
(C1220T-O)
I.D. 16-20mm
19.1 (3/4") 50mm or more I.D. 20-24mm
Inter-unit wire
Drain hose
Liquid pipe insulation
Gas pipe insulation
Finishing tape
Gas pipe
Liquid pipe
NOTICE
Do NOT exceed the unit’s maximum working pressure (see “Max. Allowable Pressure” on the unit name plate).
PURGING AIR AND CHECKING GAS LEAKAGE
• When piping work is completed, it is necessary to purge the air and check for gas leakage
1) Do not mix any substance other than the specified refrigerant (R32) into the refrigeration cycle.
2) When refrigerant gas leaks occur, ventilate the room as soon and as much as possible.
3) R32, as well as other refrigerants, should always be recovered and never be released directly into the environment.
4) Use a vacuum pump for R32 exclusively. Using the same vacuum pump for different refrigerants may damage the vacuum
pump or the unit.
WARNING
• If using additional refrigerant, perform air purging from the refrigerant pipes and indoor
unit using a vacuum pump, then charge additional refrigerant.
• Use a hexagonal wrench (4mm) to operate the stop valve rod.
• All refrigerant pipe joints should be tightened with a torque wrench at the specified
tightening torque.
Pressure meter
Valve
caps
Liquid stop
valve
Gas stop valve
Vacuum pump Service port
High
pressure
valve
Low-pressure
valve
Charging hoses
Compound
pressure gauge
Gauge manifold
1) Connect projection side of charging hose (which comes from gauge manifold) to gas stop valve’s service port.
2) Fully open gauge manifold’s low-pressure valve (Lo) and completely close its high-pressure valve (Hi).
(High-pressure valve subsequently requires no operation.)
3) Do vacuum pumping and make sure that the compound pressure gauge reads - 0.1MPa (- 760mmHg)
*
1
.
4) Close gauge manifold’s low-pressure valve (Lo) and stop vacuum pump. (Keep this state for a few minutes to make sure that the compound
pressure gauge pointer does not swing back.)
*
2
.
5) Remove covers from liquid stop valve and gas stop valve.
6) Turn the liquid stop valve’s rod 90 degrees counterclockwise with a hexagonal wrench to open valve.
Close it after 5 seconds, and check for gas leakage. Using soapy water, check for gas leakage from indoor unit’s flare and outdoor unit’s flare and
valve rods. After the check is complete, wipe all soapy water off.
7) Disconnect charging hose from gas stop valve’s service port, then fully open liquid and gas stop valves.
(Do not attempt to turn valve rod beyond its stop.)
8) Tighten valve caps and service port caps for the liquid and gas stop valves with a torque wrench at the specified torques.
*
1. Pipe length vs. vacuum pump run time
Pipe length Up to 15 metres More than 15 metres
Run time Not less than 10 min. Not less than 15 min.
*
2. If the compound pressure gauge pointer swings back, refrigerant may have water content or a loose pipe joint may exists.
Check all pipe joints and retighten nuts as needed, then repeat steps 2) through 4).
PUMP DOWN OPERATION
In order to protect the environment, be sure to pump down when relocating or disposing
of the unit.
1) Remove the valve lids from liquid stop valve and gas stop valve.
2) Carry out forced cooling operation.
3) After five to ten minutes, close the liquid stop valve with a hexagonal wrench.
4) After two to three minutes, close the gas stop valve and stop forced cooling
Forced cooling operation
Using the indoor unit ON/OFF switch
Press the indoor unit ON/OFF switch for at least 5 seconds. (The operation will start.)
• Forced cooling operation will stop automatically after around 15 minutes.
To stop the operation, press the indoor unit ON/OFF switch.
Hexagonal
wrench
Close
Valve lid
Gas stop valve
Service port
Liquid stop valve
After closing the liquid stop valve, close the gas stop valve within 3 minutes, then stop the forced cooling operation.
CAUTION
To pump down
DANGER: RISK OF EXPLOSION
Pump down - Refrigerant leakage. If you want to pump down the system, and there is a leakage in the refrigerant circuit:
• Do NOT use the unit’s automatic pump down function, with which you can collect all refrigerant from the system into
the outdoor unit. Possible consequence: Self-combustion and explosion of the compressor because of air going into the
operating compressor.
• Use a separate recovery system so that the unit’s compressor does NOT have to operate.
NOTICE
During pump down operation, stop the compressor before removing the refrigerant piping. If the compressor is still running
and the stop valve is open during pump down, air will be sucked into the system. Compressor breakdown or damage to the
system can result due to abnormal pressure in the refrigerant cycle.
NOTICE
Do NOT try to dismantle the system yourself: the dismantling of the system, treatment of the
refrigerant, oil and other parts MUST comply with applicable legislation. Units MUST be treated at a
specialised treatment facility for reuse, recycling and recovery.
INDICATION LIGHTS
DISPOSAL
LED Indicator Lights : Normal Operation & Fault Conditions For Heatpump Unit
Operation
Green Cool mode
Red Heat mode
Green Auto mode in Cooling operation
Red Auto mode in Heating operation
Green Fan mode on
Green Dry mode on
Dimmed Green / Dimmed Red Sleep mode on
Orange Timer on
Red Defrost operation
Green Unit error
ON
Blinking
WARNING
Prior to installation, ensure risk of ignition is minimised and avoid working in confined space.
Ensure adequate ventilation is available by opening windows or doors.
• When flared joints are reused indoors,the flare part shall be re-fabricated.
• Avoid installation of the air conditioner in a place where there is danger of exposure to continuously operating open flames
(for example an operating electric heaters).
• Any person who is involved with working on or breaking into a refrigerant circuit should hold a current valid certificate from an
industry-accredited assessment authority, which authorises their competence to handle refrigerants safely in accordance with an
industry recognised assessment specification.
• Checking for presence of refrigerant
The area shall be checked with an appropriate refrigerant detector prior to and during work, to ensure the technician is aware of
potentially flammable atmospheres. Ensure that the leak detection equipment being used is suitable for use with flammable refrigerants,
i.e. nonsparking, adequately sealed or intrinsically safe.
• Presence of fire extinguisher
If any hot work is to be conducted on the refrigeration equipment or any associated parts, appropriate fire extinguishing equipment shall
be available to hand. Have a dry powder or CO
2
fire extinguisher adjacent to the charging area.
• No ignition sources
All possible ignition sources, including cigarette smoking, should be kept sufficiently far away from the site of installation, repairing,
removing and disposal, during which flammable refrigerant can possibly be released to the surrounding space. “No Smoking” signs
shall be displayed.
• The following checks shall be applied to installations:
– marking to the equipment continues to be visible and legible. Markings and signs that are illegible shall be corrected;
– refrigeration pipe or components are installed in a position where they are unlikely to be exposed to any substance which may
corrode refrigerant containing components, unless the components are constructed of materials which are inherently resistant to
being corroded or are suitably protected against being so corroded.
• Initial safety checks shall include:
– that capacitors are discharged, this shall be done in a safe manner to avoid possibility of sparking
– there shall be no live electrical components and wiring are exposed while charging, recovering or purging the system;
• Repair to intrinsically safe components
Do not apply any permanent inductive or capacitance loads to the circuit without ensuring that this will not exceed the permissible voltage
and current permitted for the equipment in use.
Replace components only with parts specified by the manufacturer.
• Leak detection methods
Ensure that the detector is not a potential source of ignition (for example a halide torch) and is suitable for the refrigerant used. Leak
detection equipment shall be set at a percentage of the LFL of the refrigerant (for R32, LFL is 13%) and shall be calibrated to the
refrigerant employed and the appropriate percentage of gas (25% maximum) is confirmed.
Leak detection fluids are suitable for use with most refrigerants but the use of detergents containing chlorine shall be avoided as the
chlorine may react with the refrigerant and corrode the copper pipework. If a leak is suspected, all naked flames shall be removed/
extinguished. If a leakage of refrigerant is found which requires brazing, all of the refrigerant shall be recovered from the system, or
isolated (by means of shut off valves) in a part of the system remote from the leak. Oxygen free nitrogen (OFN) shall then be purged
through the system both before and during the brazing process.
• Removal and evacuation
When breaking into the refrigerant circuit to make repairs – or for any other purpose – conventional procedures shall be used. However,
it is important that best practice is followed since flammability is a consideration. The following procedure shall be adhered to:
• remove refrigerant;
• purge the circuit with inert gas;
• evacuate;
• purge again with inert gas;
• open the circuit by cutting or brazing.
The refrigerant charge shall be recovered into the correct recovery cylinders. The system shall be “flushed” with OFN to render the unit
safe. This process may need to be repeated several times.
Compressed air or oxygen shall not be used for this task. Flushing shall be achieved by breaking the vacuum in the system with OFN
and continuing to fill until the working pressure is achieved, then venting to atmosphere, and finally pulling down to a vacuum.
Heat Pump Model
Model : FTXC 20/25/35 RXC 20/25/35
-15
-10
0
10
18
20
10 15 20 25 27 32
10
20
30
40
43
46
50
0
14 15 19 20 23 25
-20
OUTDOOR TEMP (°CDB)
OUTDOOR TEMP (°CWB)
INDOOR TEMP (°CWB) INDOOR TEMP (°CDB)
COOLING HEATING
DB: Dry bulb WB: Wet bulb
Model : FTXC 50/60/71 RXC 50/60/71
-20
10 14 15 19 20 23 25
-20
-15
-10
0
10
18
20
10 15 20 25 27 30
-10
0
10
20
30
40
43
46
50
OUTDOOR TEMP (°CDB)
OUTDOOR TEMP (°CWB)
INDOOR TEMP (°CWB) INDOOR TEMP (°CDB)
COOLING HEATING
DB: Dry bulb WB: Wet bulb
IR Signal Receiver
When an infrared remote control operating signal has
been transmitted, the signal receiver on the indoor unit
will respond as below to confirm acceptance of the signal
transmission.
LED INDICATOR
LIGHTS
ON to OFF
1 Long Beep
OFF to ON
Pump down/Cool force on
2 Short Beep
Others
1 Short Beep
Heatpump Unit
The table shows the LED indicator lights for the air
conditioner unit under normal operation and fault
conditions. The LED indicator lights are located at the
side of the air conditioner unit.
LED Indicator Lights for Heatpump Unit
ON/OFF DISPLAY
ON/OFF SWITCH
TIMER
IR RECEIVER
The heat pump units are equipped with an “auto”
mode sensor whereby it will provide reasonable room
temperature by switching automatically to either “cool” or
“heat” mode according to the temperature set by the user.
COMMISSIONING
1. CHECKLIST BEFORE COMMISSIONING
Do NOT operate the system before the following checks are OK:
The indoor unit is properly mounted.
The outdoor unit is properly mounted.
The system is properly earthed and the earth terminals are tightened.
The fuses or locally installed protection devices are installed according to this document, and have NOT been
bypassed.
The power supply voltage matches the voltage on the identification label of the unit.
There are NO loose connections or damaged electrical components in the switch box.
There are NO damaged components or squeezed pipes on the inside of the indoor and outdoor units.
There are NO refrigerant leaks.
The refrigerant pipes (gas and liquid) are thermally insulated.
The correct pipe size is installed and the pipes are properly insulated.
The stop valves (gas and liquid) on the outdoor unit are fully open.
The following field wiring has been carried out according to this document and the applicable legislation
between the outdoor unit and the indoor unit.
Drainage
Make sure drainage flows smoothly.
Possible consequence: Condensate water might drip.
The indoor unit receives the signals of the user interface.
The specified wires are used for the interconnection cable.
2. CHECKLIST DURING COMMISSIONING
To perform an air purge.
To perform a test run.
This process shall be repeated until no refrigerant is within the system. When the final OFN charge is used, the system shall be vented
down to atmospheric pressure to enable work to take place. This operation is absolutely vital if brazing operations on the pipe-work are
to take place. Ensure that the outlet for the vacuum pump is not close to any ignition sources and there is ventilation available.
• Labelling
This unit shall be labelled ‘de-commissioned and emptied of refrigerant’. This label shall be dated and signed. Ensure that there are
labels on the equipment stating the equipment contains flammable refrigerant.
• Charging procedures
In addition to conventional charging procedures, the following requirements shall be followed.
– Ensure that contamination of different refrigerants does not occur when using charging equipment. Hoses or lines shall be as
short as possible to minimise the amount of refrigerant contained in them.
– Cylinders shall be kept upright.
– Ensure that the refrigeration system is earthed prior to charging the system with refrigerant.
– Label the system when charging is complete (if not already).
– Extreme care shall be taken not to overfill the refrigeration system.
Prior to recharging the system it shall be pressure tested with OFN. The system shall be leak tested on completion of charging but prior
to commissioning. A follow up leak test shall be carried out prior to leaving the site.
Decommissioning
Before carrying out this procedure, it is essential that the technician is completely familiar with the equipment and all its detail. It is
recommended good practice that all refrigerants are recovered safely. Prior to the task being carried out, an oil and refrigerant sample
shall be taken in case analysis is required prior to re-use of reclaimed refrigerant. It is essential that electrical power is available before
the task is commenced.
a) Become familiar with the equipment and its operation.
b) Isolate system electrically.
c) Before attempting the procedure ensure that:
• mechanical handling equipment is available, if required, for handling refrigerant cylinders;
• all personal protective equipment is available and being used correctly;
• the recovery process is supervised at all times by a competent person;
• recovery equipment and cylinders conform to the appropriate standards.
d) Pump down refrigerant system, if possible.
e) If a vacuum is not possible, make a manifold so that refrigerant can be removed from various parts of the system.
f) Make sure that cylinder is situated on the scales before recovery takes place.
g) Start the recovery machine and operate in accordance with manufacturer’s instructions.
h) Do not overfill cylinders. (No more than 80% volume liquid charge).
i) Do not exceed the maximum working pressure of the cylinder, even temporarily.
j) When the cylinders have been filled correctly and the process completed, make sure that the cylinders and the equipment are
removed from site promptly and all isolation valves on the equipment are closed off.
k) Recovered refrigerant shall not be charged into another refrigeration system unless it has been cleaned and checked.
Recovery
When removing refrigerant from a system, either for servicing or decommissioning, it is recommended good practice that all refrigerants
are removed safely. When transferring refrigerant into cylinders, ensure that only appropriate refrigerant recovery cylinders are employed.
Ensure that the correct number of cylinders for holding the total system charge are available. All cylinders to be used are designated
for the recovered refrigerant and labelled for that refrigerant (i.e. special cylinders for the recovery of refrigerant). Cylinders shall be
complete with pressure relief valve and associated shut-off valves in good working order. Empty recovery cylinders are evacuated and,
if possible, cooled before recovery occurs.
The recovery equipment shall be in good working order with a set of instructions concerning the equipment that is at hand and shall
be suitable for the recovery of flammable refrigerants. In addition, a set of calibrated weighing scales shall be available and in good
working order. Hoses shall be complete with leak-free disconnect couplings and in good condition. Before using the recovery machine,
check that it is in satisfactory working order, has been properly maintained and that any associated electrical components are sealed
to prevent ignition in the event of a refrigerant release. Consult manufacturer if in doubt.
The recovered refrigerant shall be returned to the refrigerant supplier in the correct recovery cylinder, and the relevant Waste Transfer
Note arranged. Do not mix refrigerants in recovery units and especially not in cylinders.
If compressors or compressor oils are to be removed, ensure that they have been evacuated to an acceptable level to make certain that
flammable refrigerant does not remain within the lubricant. The evacuation process shall be carried out prior to returning the compressor
to the suppliers. Only electric heating to the compressor body shall be employed to accelerate this process. When oil is drained from a
system, it shall be carried out safely.
WIRING
WARNING
• Do not use tapped wires, extension cords, or starburst connections, as they may cause overheating, electric shock, or fire.
• Do not use locally purchased electrical parts inside the product. (Do not branch the power for the drain pump, etc., from the
terminal block.) Doing so may cause electric shock or fire.
• Be sure to install an earth leakage circuit breaker. (One that can handle higher harmonics.)
(This unit uses an inverter. Therefore, an earth leakage circuit breaker capable of handling higher harmonics must be used in
order to prevent the earth leakage circuit breaker malfunctioning.)
• Use an all-pole disconnection type circuit breaker with at least 3mm (1/8 inch) between the contact point gaps.
• When carrying out wiring, take care not to pull at the conduit.
• Do not connect the power wire to the indoor unit. Doing so may cause electric shock or fire.
• Do not turn on the circuit breaker until all work is completed.
1) Strip the insulation from the wire (20mm).
2) Connect the inter-unit wires between the indoor and outdoor units so that the terminal numbers match. Tighten the terminal
screws securely. It is recommended that a flathead screwdriver be used to tighten the screws.
The screws are packed with the terminal block.
1
2
3
123
L N
1
2
3
L
N
Firmly fix the wires with
the terminal screws.
Power supply
50Hz 220-240V
Earth leakage
circuit breaker
Circuit
breaker
Earth
Firmly fix the wires
with the terminal
screws.
Indoor
unit
Power supply
terminal block
Shape wires so
that the service
lid and stop valve
cover fit securely.
Power supply wire
3-core 60245 IEC 57
H07RN-F
Inter-unit wire 4-core 60245
IEC 57 H07RN-F
RXC20/25/35
*
16A
RXC50/60/71
*
16A
SPECIAL PRECAUTIONS WHEN DEALING WITH R32 UNIT
Models
R32 charge, kg
for 7.5m piping
Minimum floor area, Xm
2
(based on 7.5m piping)
R32 charge, kg for max
allowable pipe length
*
Minimum floor area, Xm
2
(based
on max allowable pipe length
*
)
FTXC20D - RXC20D
0.55 0.29 0.76 0.55
FTXC25D - RXC25D
0.55 0.29 0.76 0.55
FTXC35D - RXC35D
0.75 0.54 0.96 0.88
FTXC50D - RXC50D
1.00 0.95 1.38 1.82
FTXC60D - RXC60D
1.10 1.15 1.48 2.10
FTXC71D - RXC71D
1.15 1.26 1.53 2.24
*
Max. Allowable Length (L),m for:-
FTXC20/25/35D - RXC20/25/35D : 20
FTXC50/60/71D - RXC50/60/71D : 30
• Installation of pipe work shall be kept to a minimum and pipe work shall be protected from physical damage and shall not be
installed in an unventilated space.
• Reusable mechanical connectors and flare joints shall be accessible for maintenance purposes.
Zandvoordestraat 300, B-8400 Oostende,
Belgium
P.O.Box 18674, Jebel Ali Free Zone, Dubai-UAE
Email: info@daikinmea.com
Web: www.daikinmea.com
Importer for Turkey
Allianz Plaza-Kucukbakkalkoy Mah.Kayısdagi Cad.No:1 34750
Atasehir-ISTANBUL / TURKIYE
• In the event that there is any confl ict in the interpretation of this manual and any translation of the same in any
language, the English version of this manual shall prevail.
• The manufacturer reserves the right to revise any of the specifi cation and design contain herein at any time
without prior notifi cation.
Head offi ce:
Umeda Center Bldg., 2-4-12, Nakazaki-Nishi,
Kita-ku, Osaka, 530-8323 Japan
Tokyo offi ce:
JR Shinagawa East Bldg., 2-18-1, Konan,
Minato-ku, Tokyo, 108-0075 Japan
http://www.daikin.com/global/
Lot 60334, Persiaran Bukit Rahman Putra 3,
Taman Perindustrian Bukit Rahman Putra,
47000 Sungai Buloh, Selangor Darul Ehsan,
Malaysia.
MAINTENANCE AND SERVICE
NOTICE
Maintenance MUST be done by an authorized
installer or service agent.
We recommend performing maintenance at least
once a year. However, applicable legislation
might require shorter maintenance intervals.
WARNING
Before carrying out any maintenance
or repair activity, ALWAYS switch off
the circuit breaker on the supply panel,
remove the fuses or open the protection
devices of the unit.
Do NOT touch live parts for 10 minutes
after the power supply is turned off
because of high voltage risk.
Please note that some sections of the
electric component box are hot.
Make sure you do NOT touch a conductive
section.
Do NOT rinse the unit. This may cause
electric shocks or fire.
1. Overview: Maintenance and service
This chapter contains information about:
• The yearly maintenance of the outdoor unit
2. Maintenance safety precautions
DANGER: RISK OF ELECTROCUTION
3. Checklist for yearly maintenance of the
outdoor unit
DANGER: RISK OF BURNING
Check the following at least once a year:
• Outdoor unit heat exchanger.
The heat exchanger of the outdoor unit can get
blocked up due to dust, dirt, leaves, etc. It is
recommended to clean the heat exchanger yearly. A
blocked heat exchanger can lead to too low pressure
or too high pressure leading to worse performance.
NOTICE: Risk of electrostatic discharge
Before performing any maintenance or
service work, touch a metal part of the unit
in order to eliminate static electricity and to
protect the PCB.
IMPORTANT
OPERATING RANGE
Drain hose
Drain hose
Outer wall
50 mm
or more
Vinyl chloride drain pipe
(VP-30)
Inner wall
Insert drain hose to this
depth so it won’t be pulled
out of drain pipe.
Refrigerant
pipes
Mounting
plate
Bottom frame
7) Wrap the refrigerant pipes and drain hose together with
insulation tape as right figure.
Wall embedded piping.
Follow the instructions given
Left-side, left-back, or left-bottom piping
1) Insert the drain hose to this depth so it won’t be pulled out
of the drain pipe.
The indoor unit must be installed in such a way so as to prevent short circuit of the cool discharged air with the hot return air.
Please follow the installation clearance shown in the figure. Do not place the indoor unit where there could be direct sunlight
shining on it. Also, this location must be suitable for piping and drainage, and be away from doors or windows.
ReturnAir
Required space
min. 50min. 50
min. 55
(Space for
maintenance)
(Space for
maintenance)
(Space for
performance)
Air flow
(Indoor)
All dimensions are in mm
How to attach the indoor unit
Hook the claws of the bottom
frame to the mounting plate.
How to remove the indoor
unit.
Push up the marked area
(at the lower part of the front
grille) to release the claws.
Mounting
plate
Claw
Mark (rear side)
Bottom frame
Front grille
DRAIN PIPING
• Connect the drain hose, as described below.
The drain hose should
be inclined downward.
No trap is permitted.
Do not put the end of
the hose in water.
• Water Drainage
Water
leaking
Water
leaking
Water
leaking
Water
retention
Drain
WrongWrongWrongCorrect
End
dipped
into
water
• Remove the air filters and pour some water into the
drain pan to check the water flows smoothly.
• When drain hose requires extension, obtain an extension
hose commercially available. Be sure to thermally insulate the
indoor section of the extension hose.
Indoor unit
drain hose
Ø 16
Extension drain hose
Heat insulation tube
(Field supply)
• When connecting a rigid polyvinyl chloride pipe (inside
diameter 16mm) directly to the drain hose attached to
the indoor unit as with embedded piping work, use any
commercially available drain socket (inside diameter 16mm)
as a joint.
φ16
Drain hose supplied
with the indoor unit
socket (inside
diameter 16mm)
polyvinyl pipe
(diameter 16mm)
1-3P621327-2 E-IM-FTXC-RXC-R32 Split Series DENV-EN.indd 11-3P621327-2 E-IM-FTXC-RXC-R32 Split Series DENV-EN.indd 1 7/7/2022 10:25:28 AM7/7/2022 10:25:28 AM