EasyManua.ls Logo

Daikin FTXF35A - Piping Diagram: Outdoor Unit

Daikin FTXF35A
172 pages
Print Icon
To Next Page IconTo Next Page
To Next Page IconTo Next Page
To Previous Page IconTo Previous Page
To Previous Page IconTo Previous Page
Loading...
5 | Technical data
Service manual
155
FTXF20~71A + FTXF20~25B + FTXF20~42C + ATXF20~71A + ATXF20~42C
+ RXF20~71A + RXF20~60B + RXF20~42C + ARXF20~71A + ARXF20~42C
Split Sensira R32
ESIE18-12E – 2021.02
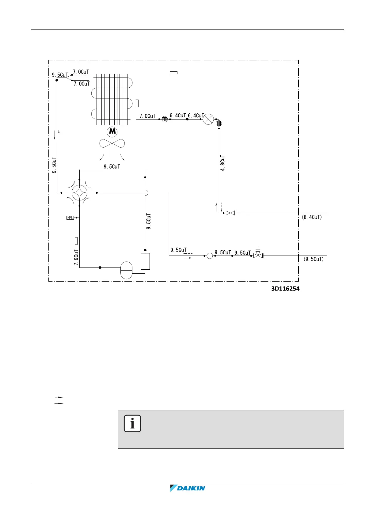
5.3.2 Piping diagram: Outdoor unit
RXF20+25A + RXF20+25B + RXF20~35C + ARXF20+25A + ARXF20~35C
a
b
c
d
e
f
g
h
M1C
R1T
R2T
R3T
Y1S
M1F
e
Y1E
S1PH
a Field piping (liquid: Ø6.4mm flare connection)
b Field piping (gas: Ø9.5mm flare connection)
c Stop valve (liquid)
d Stop valve with service port (gas)
e Muffler with filter
f Heat exchanger
g Accumulator
h Muffler
M1C Compressor
M1F Fan
R1T Thermistor (outdoor air)
R2T Thermistor (heat exchanger)
R3T Thermistor (compressor discharge)
Y1E Electronic expansion valve
Y1S Solenoid valve (4‑way valve)
S1PH High pressure switch
Cooling
Heating
INFORMATION
The diagrams shown in this manual may be incorrect due to changes/updates to the
unit. Correct diagrams are supplied with the unit and can also be found in the
technical data book.

Table of Contents

Related product manuals