EasyManua.ls Logo

Daikin Super Multi NX FHQ50BVV1B - Page 483

Daikin Super Multi NX FHQ50BVV1B
501 pages
Print Icon
To Next Page IconTo Next Page
To Next Page IconTo Next Page
To Previous Page IconTo Previous Page
To Previous Page IconTo Previous Page
Loading...
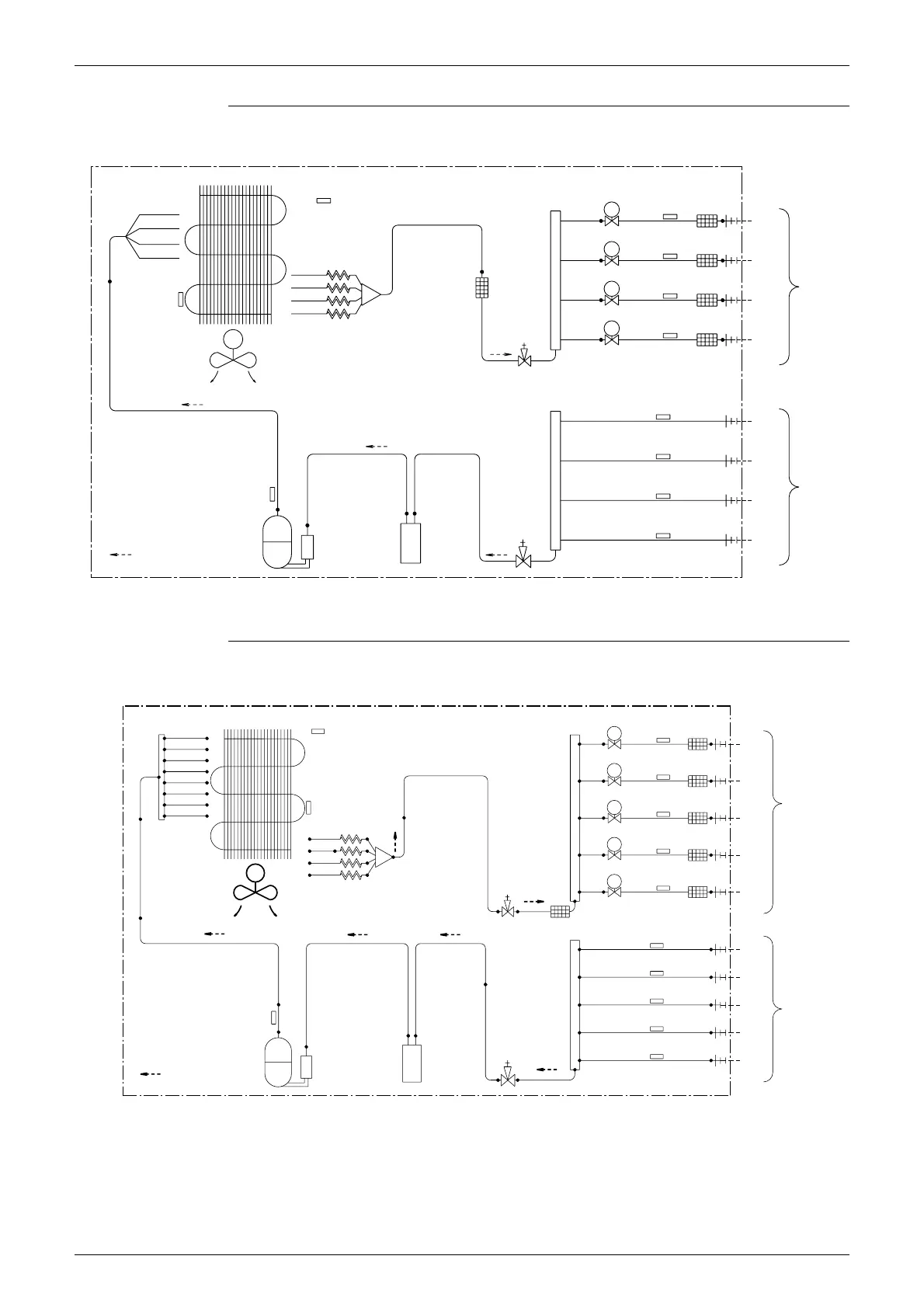
SiBE121021_C Piping Diagrams
Appendix 471
4MKS75F2V1B
5MKS90E2V3B
9.5CuT
7.9CuT
12.7CuT
9.5CuT
12.7CuT
6.4CuT
6.4CuT
6.4CuT
6.4CuT
12.7CuT
12.7CuT
12.7CuT
12.7CuT
LIQUID PIPE
THERMISTOR
(
DLA
)
LIQUID PIPE
THERMISTOR
(
DLB
)
LIQUID PIPE
THERMISTOR
(
DLC
)
LIQUID PIPE
THERMISTOR
(
DLD
)
FIELD
PIPING
LIQUID
FIELD
PIPING
GAS
GAS LINE
STOP VALVE
LIQUID LINE
STOP VALVE
DISCHARGE PIPE
THERMISTOR
(
DO
)
HEAT EXCHANGER
THERMISTOR
(
DE
)
OUTDOOR TEMPERATURE
THERMISTOR
(
DOA
)
ROOM A
(
6.4 CuT
)
ROOM B
(
6.4 CuT
)
ROOM C
(
6.4 CuT
)
ROOM D
(
6.4 CuT
)
ROOM A
(
9.5 CuT
)
ROOM B
(
9.5 CuT
)
ROOM C
(
12.7 CuT
)
ROOM D
(
15.9 CuT
)
HEAT EXCHANGER
DC FAN MOTOR
M
PROPELLER FAN
REFRIGERANT FLOW
COOLING
COMPRESSOR
ACCUMULATOR
ACCUMULATOR
HEADER
HEADER
FILTER
DISTRIBUTOR
CAPILLARY TUBE
MOTOR OPERATED VALVE
MOTOR OPERATED VALVE
MOTOR OPERATED VALVE
EV
A
EV
B
EV
C
EV
D
FILTER
FILTER
FILTER
FILTER
GAS PIPE THERMISTOR
(
DGA
)
GAS PIPE THERMISTOR
(
DGB
)
GAS PIPE THERMISTOR
(
DGC
)
GAS PIPE THERMISTOR
(
DGD
)
MOTOR OPERATED VALVE
3D034513H
OUTDOOR UNIT
12.7CuT 12.7CuT
7.9CuT
7.9CuT
7.9CuT
7.9CuT
7.9CuT
7.9CuT
7.9CuT
7.9CuT
7.9CuT
7.9CuT
7.9CuT
15.9CuT
9.5CuT
9.5CuT
15.9CuT
15.9CuT
9.5CuT
15.9CuT
7.9CuT
7.9CuT
7.9CuT
7.9CuT
7.9CuT
12.7CuT
12.7CuT
12.7CuT
12.7CuT
12.7CuT
OUTDOOR TEMPERATURE
THERMISTOR
DISCHARGE PIPE
THERMISTOR
GAS LINE
STOP VALVE
LIQUID LINE
STOP VALVE
LIQUID PIPE
THERMISTOR
(ROOM-A)
LIQUID PIPE
THERMISTOR
(ROOM-B)
LIQUID PIPE
THERMISTOR
(ROOM-C)
LIQUID PIPE
THERMISTOR
(ROOM-D)
LIQUID PIPE
THERMISTOR
(ROOM-E)
MOTOR OPERATED
VALVE (B)
MOTOR OPERATED
VALVE (C)
MOTOR OPERATED
VALVE (D)
MOTOR OPERATED
VALVE (E)
MOTOR OPERATED
VALVE (A)
FIELD
PIPING
LIQUID
FIELD
PIPING
GAS
ROOM A
(6.4 CuT)
ROOM B
(6.4 CuT)
ROOM C
(6.4 CuT)
ROOM D
(6.4 CuT)
ROOM E
(6.4 CuT)
ROOM A
(9.5 CuT)
ROOM B
(9.5 CuT)
ROOM C
(12.7 CuT)
ROOM D
(15.9 CuT)
ROOM E
(15.9 CuT)
HEAT EXCHANGER
(CONDENSER)
THERMISTOR
GAS PIPE THERMISTOR
(ROOM-A)
GAS PIPE THERMISTOR
(ROOM-B)
GAS PIPE THERMISTOR
(ROOM-C)
GAS PIPE THERMISTOR
(ROOM-D)
GAS PIPE THERMISTOR
(ROOM-E)
OUTDOOR UNIT
HEAT EXCHANGER
HEADER
DC FAN MOTOR
PROPELLER FAN
M
REFRIGERANT FLOW
COOLING
COMPRESSOR
ACCUMULATOR
CAPILLARY TUBE
DISTRIBUTOR
HEADER
HEADER
FILTER
ACCUMULATOR
ACCUMULATOR
EV
A
EV
B
EV
C
EV
D
EV
E
FILTER
FILTER
FILTER
FILTER
FILTER
3D051938

Table of Contents

Related product manuals