EasyManua.ls Logo

Danfoss VLT 3006-3032

Danfoss VLT 3006-3032
56 pages
To Next Page IconTo Next Page
To Next Page IconTo Next Page
To Previous Page IconTo Previous Page
To Previous Page IconTo Previous Page
Loading...
Appendix
7 - 4
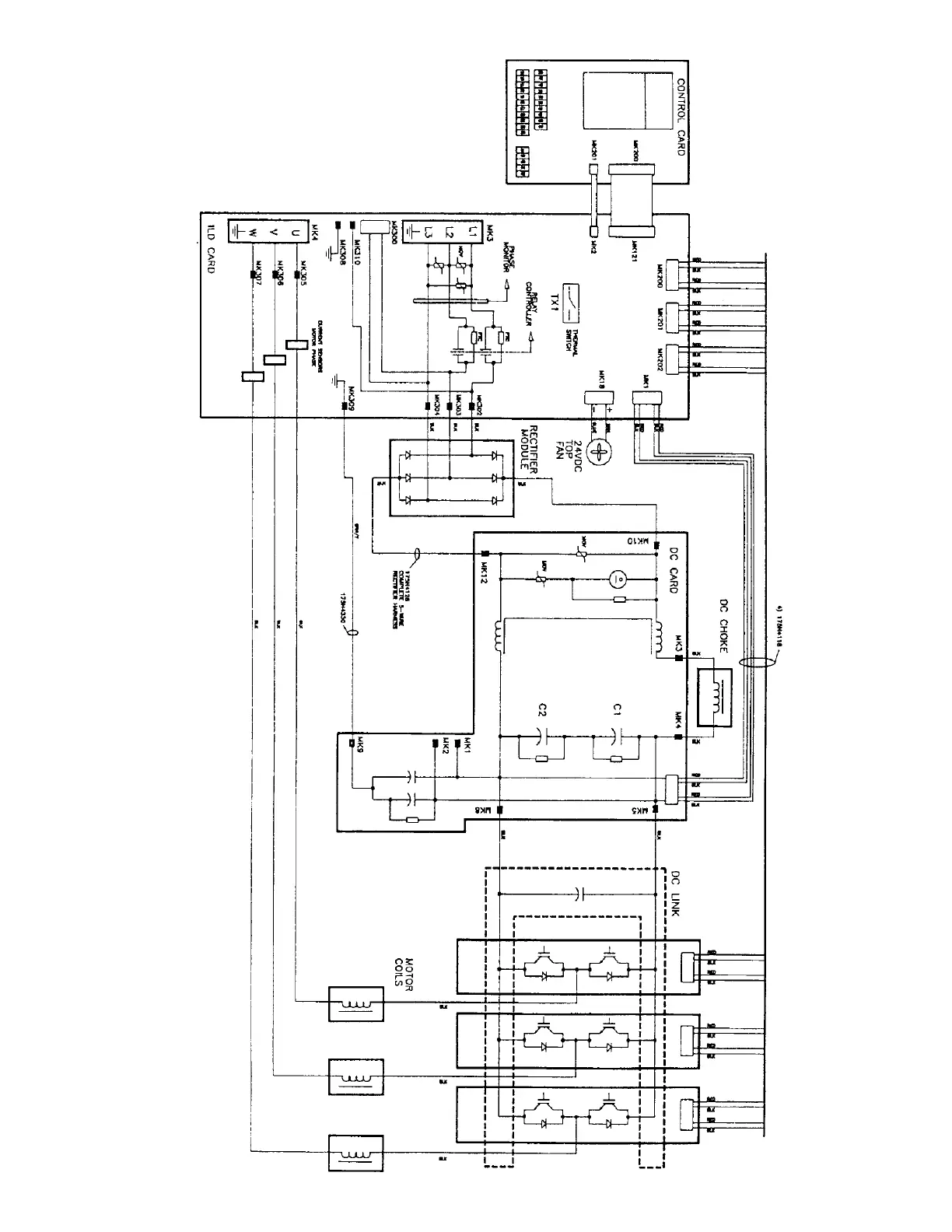
BLOCK DIAGRAM
(for reference only)
VLT 3511, 460V

Related product manuals