EasyManua.ls Logo

Danfoss VLT 5075 - Page 70

Danfoss VLT 5075
240 pages
Print Icon
To Next Page IconTo Next Page
To Next Page IconTo Next Page
To Previous Page IconTo Previous Page
To Previous Page IconTo Previous Page
Loading...
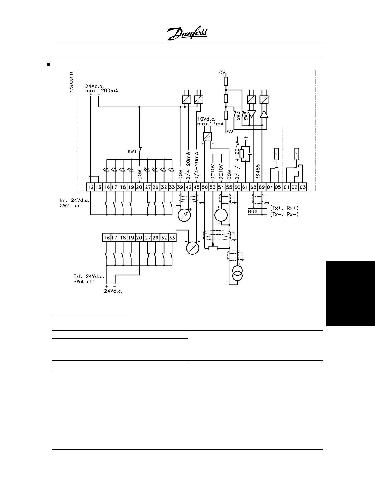
Electrical installation
Conversion of analogue inputs
Current input signal to voltage input
0-20 mA 0-10 V
Connect 510 ohms resistor between input terminal 53
and 55 and adjust minimum and maximum values in pa-
rameters 309, and 310 or 54 and 55 and adjust minimum
and maximum values in parameters 312 and 313.
4-20 mA 2-10 V
VLT
®
5000 Series
MG.51.C5.22 - VLT
p
is a registered Danfoss trademark. 67
Installation

Table of Contents

Related product manuals