EasyManua.ls Logo

Daniela DDW103CS - Page 24

Daniela DDW103CS
24 pages
Print Icon
To Previous Page IconTo Previous Page
To Previous Page IconTo Previous Page
Loading...
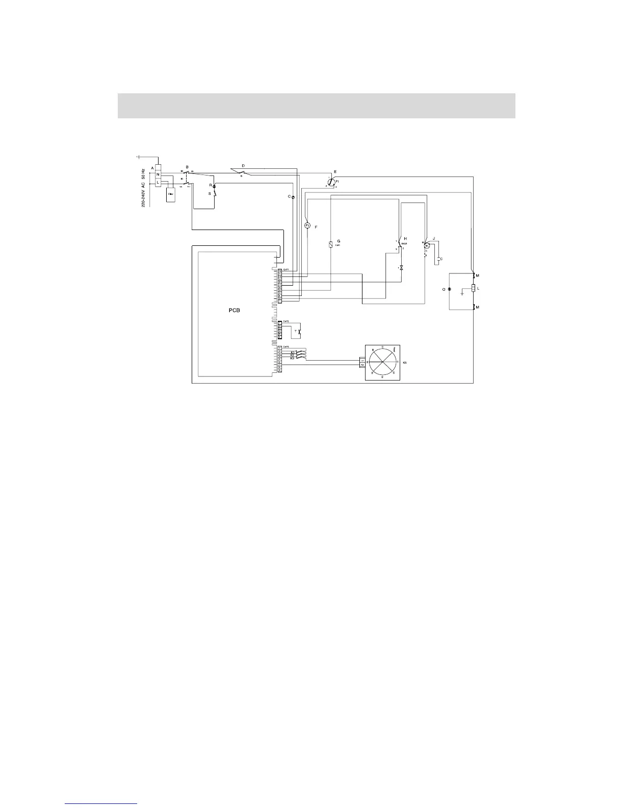
Diagram
A.Wiring box
B.Power switch
C.Power indicator
D.Door switch
E.Water lever switch
F.Drain pump
G.Dispenser
H.Overflow switch
I. Inlet valve
J.Washing pump
L.Heater
M.Temperature limiter
O.Heater indicator
R.Rinsing agent missing indicator
S.Rinsing agent missing switch
T.Temperature sensor
K1.Eco wash switch
K2.Dry switch
k3.3in1 wash switch
K5.Program switch