EasyManua.ls Logo

dB Technologies Flexsys F8 - Page 29

dB Technologies Flexsys F8
Print Icon
To Previous Page IconTo Previous Page
To Previous Page IconTo Previous Page
Loading...
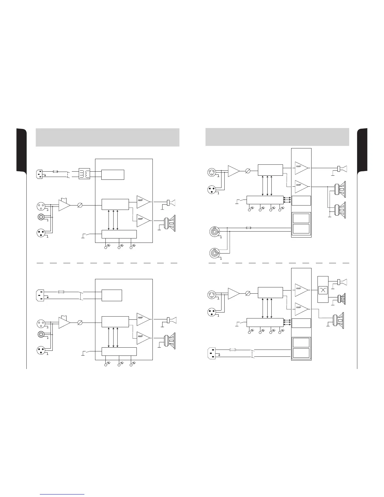
SCHEMA A BLOCCHI
BLOCK DIAGRAM
BLOCKSCHALTBILD
SCHEMAS FONCTIONNELS
WOOFER 12”
WOOFER 12”
READYLIMITER
BALANCED
MAIN INPUT
LINK
Switching Mode
Power Supply
PFC
Power Factor
Correction
SMPS
SIGNAL
SENSITIVITY
MICROPROCESSOR
Class D
®
DIGIPRO
1000W
DSP
Digital Signal Processing
MICROPROCESSOR
MUTE
PASSIVE
FILTER
MIDRANGE 6.5”
COMPRESSION
DRIVER 1”
Class D
WOOFER 15”
MODE
READYLIMITER
BALANCED
MAIN INPUT
LINK
L
N
FULL RANGE
MAINS INPUT
Switching Mode
Power Supply
PFC
Power Factor
Correction
SMPS
MAINS
FUSE
L
N
MAINS OUTPUT
LINK
SIGNAL
SENSITIVITY
MICROPROCESSOR
Class D
®
DIGIPRO
1000W
DSP
Digital Signal Processing
MICROPROCESSOR
MUTE
COMPRESSION
DRIVER 1”
Class D
MODE
FLEXSYS F315
FLEXSYS F212
L
N
MAINS
FUSE
POWER
SWITCH
56
55
SCHEMA A BLOCCHI
BLOCK DIAGRAM
BLOCKSCHALTBILD
SCHEMAS FONCTIONNELS
READYLIMITER
Switching Mode
Power Supply
SMPS
SIGNAL
SENSITIVITY
Class D
®
DIGIPRO
DSP
Digital Signal Processing
MICROPROCESSOR
Class D
MODE
WOOFER
DRIVER
BALANCED
INPUTS
LINK
L
N
MAINS
FUSE
POWER
SWITCH
TRANSFORMER
INPUT
SENS
L
N
MAINS
FUSE
POWER
SWITCH
READYLIMITER
SIGNAL
SENSITIVITY
Class D
®
DIGIPRO
DSP
Digital Signal Processing
MICROPROCESSOR
Class D
MODE
WOOFER
DRIVER
BALANCED
INPUTS
LINK
INPUT
SENS
INTERNAL
POWER
SUPPLY
200W
400W
600W
FLEXSYS F8
FLEXSYS F10
FLEXSYS F12
FLEXSYS F15

Related product manuals