EasyManua.ls Logo

Dea 212E - Page 51

Dea 212E
56 pages
Go to English
To Next Page IconTo Next Page
To Next Page IconTo Next Page
To Previous Page IconTo Previous Page
To Previous Page IconTo Previous Page
Loading...
49
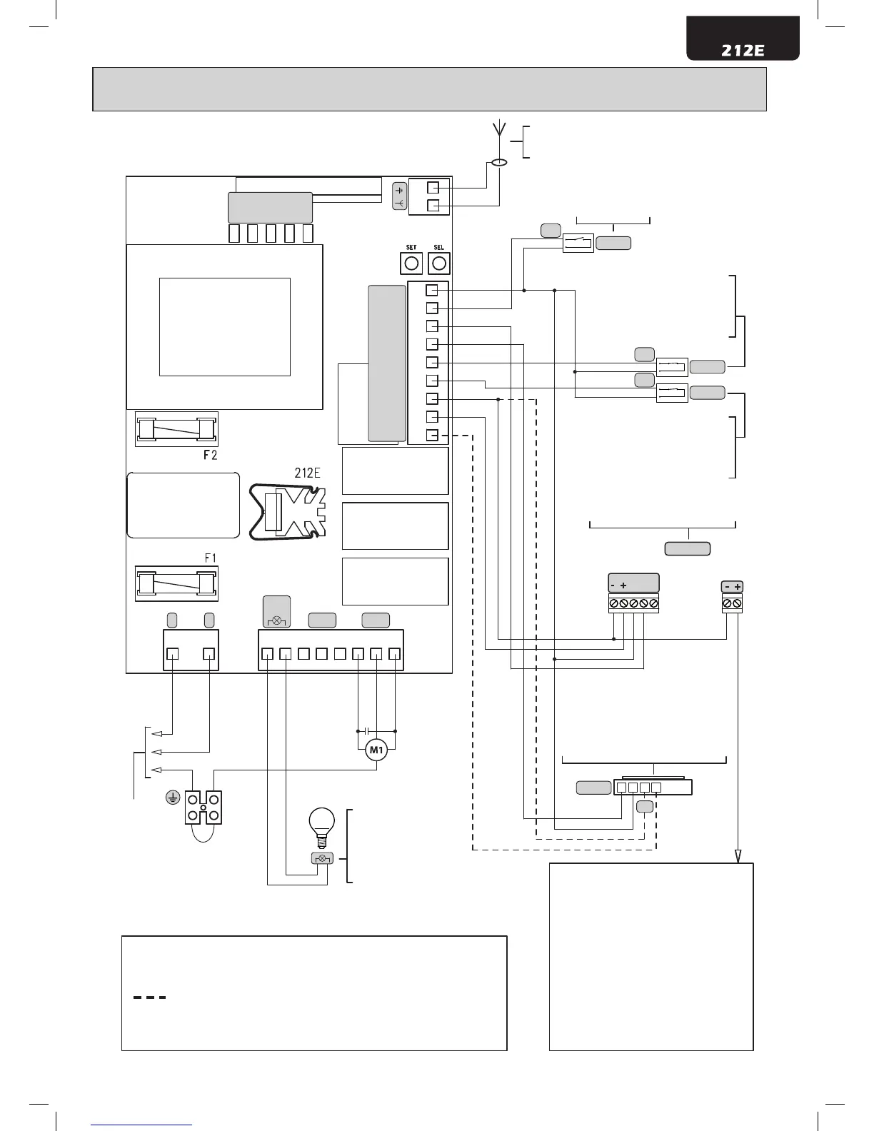
Schema elettrico con funzionamento ad 1 motore, 1 motor Electrical diagram, Schéma électrique avec fonctionnement à 1 moteur,
Anschlussplan für einen Motor, Esquema eléctrico con funcionamiento a 1 motor, Esquema eléctrico para funcionamento a 1 motor,
Schemat elektryczny 1 silnik, Электрическая схема для 1 двигателя
6 7 8 9 10
19
18
17
16
15
14
13
12
21
20
1 2 3 4 5
11
24VSIC
24VAUX
0V
FCC
FCA / SIC2
SIC1
FOTO
START
COM
MODE
PROG
FORZA
RADIO
1-2 MOT
L
FLASH
230V
N
MOT 2 MOT 1
FCA
FCC
TXRX
COM
N.C.
N.O.
SIC1
N.C.
2 x 1 mm
2
N.C.
N.C.
Al morsetto 13 per collegamento normale
To terminal n. 13 for normal connection
À la borne 13 pour connexion normale
An Klemme 13 für Normalanschluss
Al terminal 13 para una conexión normal
Para o terminal nº 13 para ligação normal
Do zacisku 13 dla podłączenia normalnego
К клемме 13 для нормального подключения
Al morsetto 12 per sicurezze controllate
To terminal n. 12 for controlled safety devices
À la borne 12 pour sécurités contrôlées
An Klemme 12 für geprüfte Sicherheitsvorrichtungen
El borne 12 para seguridades controladas
Ao terminal 12 para dispositivos de segurança controlados
Do zacisku 12 dla kontrolowanych zabezpieczeń
К клемме 12 для управляемых устройств безопасности
ANTENNA, AERIAL,
ANTENNE, ANTENA,
АНТЕННА
RG58
START
START/OPEN
N.O.
PHOTO 1
DISPOSITIVO DI SICUREZZA ESTERNO (N.C.),
EXTERNAL SAFETY DEVICE (N.C.), DISPOSITIF
DE SÉCURITÉ EXTERNE (N.C.), EXTERNE
SICHERHEITSVORRICHTUNG (N.C.), DISPOSITIVO
DE SEGURIDAD EXTERNO (N.C.), DISPOSITIVO
DE SEGURANÇA EXTERNO (N.C.), URZĄDZENIE
ZABEZPIECZAJĄCE ZEWNĘTRZNE (N.C.),
ВНЕШНЕЕ УСТРОЙСТВО БЕЗОПАСНОСТИ (N.C.)
FOTOCELLULA, PHOTOCELL,
PHOTOCELLULE, FOTOZELLE, FOTOCÉLULA,
FOTOKOMÓRKA, ФОТОЭЛЕМЕНТ
FINECORSA CHIUSURA, CLOSING LIMIT
SWITCH, FIN DE COURSE FERMETURE,
SCHLIESSENDSCHALTER, FINAL DE CARRERA
CIERRE, FIM DE CURSO ENCERRAMENTO,
OGRANICZNIK ZAMKNIĘCIA, КОНЦЕВОЙ
ВЫКЛЮЧАТЕЛЬ ЗАКРЫТИЯ
FINECORSA APERTURA, OPENING LIMIT
SWITCH, FIN DE COURSE OUVERTURE,
ÖFFNUNGSENDSCHALTER, FINAL DE
CARRERA ABERTURA, FIM DE CURSO
ABERTURA, OGRANICZNIK OTWARCIA,
КОНЦЕВОЙ ВЫКЛЮЧАТЕЛЬ ОТКРЫТИЯ
LAMPEGGIANTE, FLASHING
LIGHT, CLIGNOTEUR,
BLINKEND, INTERMITENTE,
INTERMITENTE, LAMPA
OSTRZEGAWCZA, МИГАЮЩИЙ
ИНДИКАТОР
230 V ~ 75mA max 50 Hz
230V~ 50Hz ±10%
3 x 1,5 mm
2
2 x 0,5 mm
2
4 x 0,5 mm
2
2 x 0,5 mm
2
2 x 0,5 mm
2
Alimentazione 24V ~ necessaria solo per accessori controllati Art. 130N, 131N,
123N, 124N, 24 V ~ power supply necessary only for accessory as art. Art. 130N,
131N, 123N, 124N, Alimentation 24 V ~ nécessaire seulement pour accessoires
contrôlés art. 130N, 131N, 123N, 124N, 24V ~ Versorgung nur notwendig für
kontrollierte Zubehörteile Art. 130N, 131N, Alimentación 24V ~ necesaria solamente
para accesorios controlados art. 130N, 131N, 123N, 124N, Alimentação 24V ~
necessária apenas para os acessórios art. 130N, 131N, 123N, 124N 124N,
Zasilanie 24V ~ wymagane tylko dla akcesoriów kontrolowanych Art. 130N, 131N,
123N, 124N, Напряжение питания 24 В ~ необходимо только для комплектующих,
регулируемых Ст. 130N, 131N, 123N, 124N
3 x 1,5 mm
2
3 x 0,5 mm
2

Related product manuals