EasyManua.ls Logo

Dea STOP24NET/N/L-F - Page 60

Dea STOP24NET/N/L-F
96 pages
Go to English
To Next Page IconTo Next Page
To Next Page IconTo Next Page
To Previous Page IconTo Previous Page
To Previous Page IconTo Previous Page
Loading...
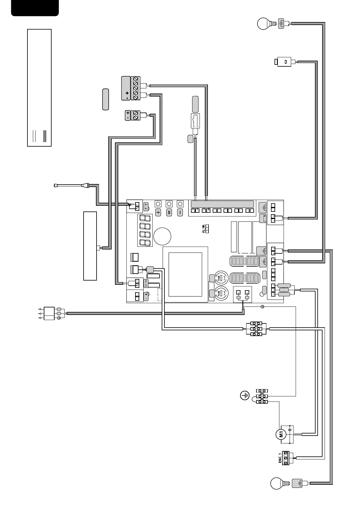
STOP N
PT-8
LIGAÇÃO PARA MOTORES 230V
2
1
910 1112
13 14
15 16
34 5 678
WARNING
LOCK
F2F1
FLASH
230V
MOT 1 MOT 2
WL/FL24V
18
19
20
21
22
23
24
25
26
27
28
29
Para o terminal 31/32 para ligação normal
Ao terminal 33/34 para dispositivos de segurança
N.O.
RG58
ENC
M1
START
TX RX
COM
N.C.
N.O.
PHOTO 1
2 x 0,5 mm
2
2 x 0,5 mm
2
2 x 0,5 mm
2
2 x 0,5 mm
2
3 x 0,22 mm
2
4 x 1,5 mm
2
F
N
F
N
3 x 1,5 mm
2
FLASH
230V
2 x 1 mm
2
2 x 0,5 mm
2
LUZ DE AVISO DE PORTA ABERTA
230V max 150W
INTERRUPTOR OMNIPOLAR
DE ALIMENTAÇÃO
230V~ 50Hz ±10%
MARROM
PRETO
CINZA
LIGAÇÕES INTERNAS FEITAS DE FÁBRICA
LIGAÇÕES EXTERNAS FEITAS PELO INSTALADOR
ELETRO-MAGNETO
2 x 0,5 mm
2
COM
IN_1
COM
IN_2
COM
IN_3
COM
IN_4
COM
IN_5
COM
IN_6
32 3134 33

Related product manuals