EasyManua.ls Logo

Delem DA-65 - Page 43

Delem DA-65
239 pages
Print Icon
To Next Page IconTo Next Page
To Next Page IconTo Next Page
To Previous Page IconTo Previous Page
To Previous Page IconTo Previous Page
Loading...
Delem
V1101, 3.7a
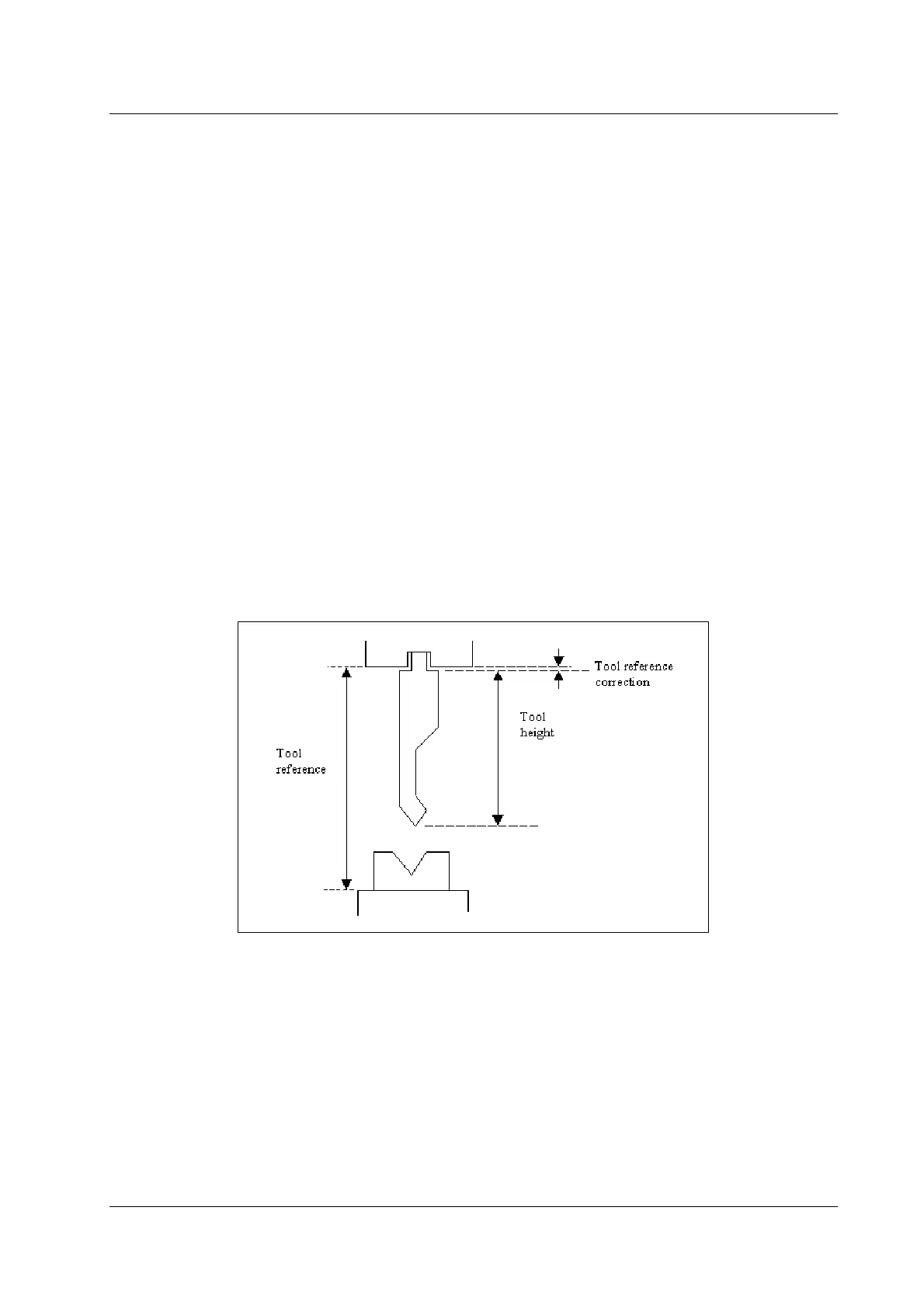
Parameter TR: Tool Reference correction
Range : 0.00-9.99
Default : 0.00
Units : mm
Function
A correction of the Tool Reference value for head mounted punches.
Description
The control can make a distinction between ‘head mounted’ punches and ‘shoulder mounted’
punches.
In case of a shoulder mounted punch (default situation), the control uses the Tool reference and
the Tool height to compute the correct Y-axis position. Since the Tool height is measured from
the punch’ shoulder, this leads to accurate positioning.
In case of head mounted punches, the punch’ shoulder might not correspond with the lower edge
of the pressbeam. In that case, the position of the Y-axis is no longer accurate.
Figure 7.b
In such case, a correction of the Tool Reference value can be programmed.

Related product manuals