EasyManua.ls Logo

Delfield F18MC52E - Page 15

Delfield F18MC52E
28 pages
Print Icon
To Next Page IconTo Next Page
To Next Page IconTo Next Page
To Previous Page IconTo Previous Page
To Previous Page IconTo Previous Page
Loading...
F18 Series Service and Installation Manual
15
For customer service, call (800) 733-8829, (800) 773-8821, Fax (989) 773-3210, www.delfield.com
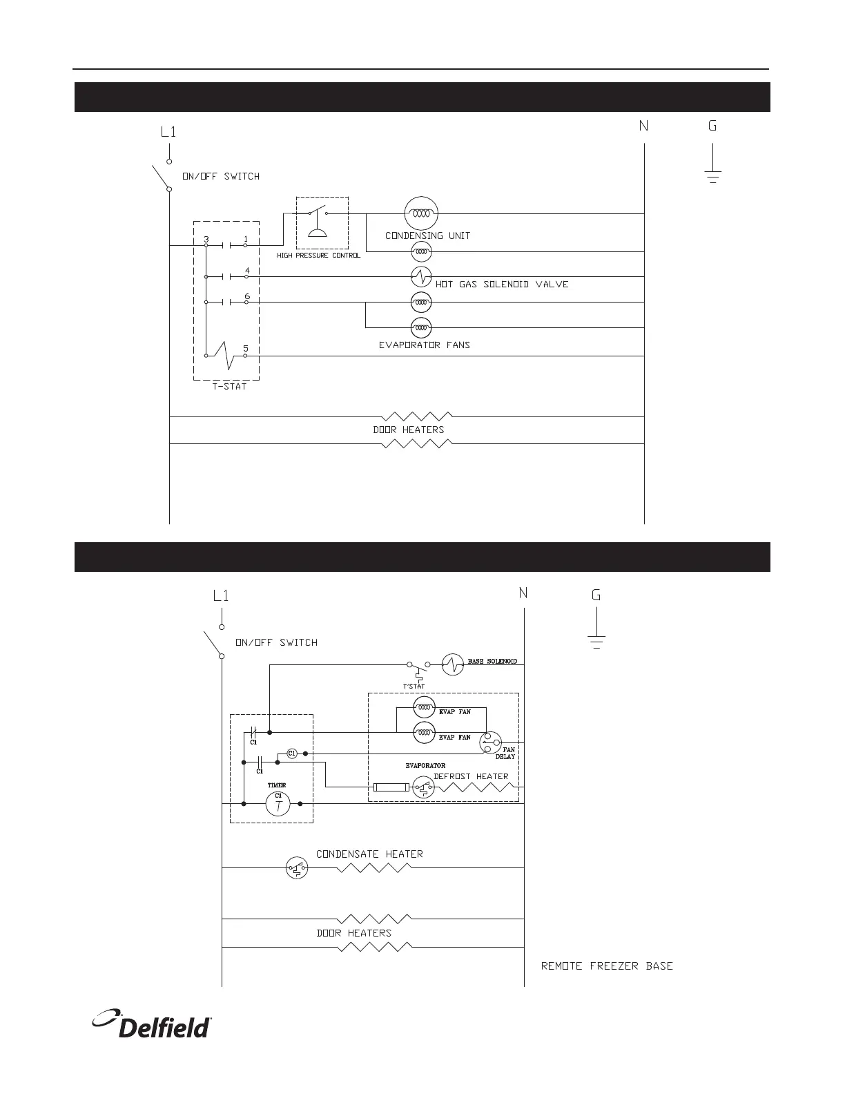
Wiring Diagram, F18FR
Wiring Diagram, F18FC

Related product manuals