Home
Delfield
Refrigerator
F18RC82
Page 14
Delfield F18RC82 - Page 14
28 pages
Manual
Save Page as PDF
To Next Page
To Next Page
To Previous Page
To Previous Page
Loading...
F18 Series Service and Installation Manual
For customer service, call (800) 733-8829, (800) 773-8821, Fax (989) 773-3210, www.delfield.com
14
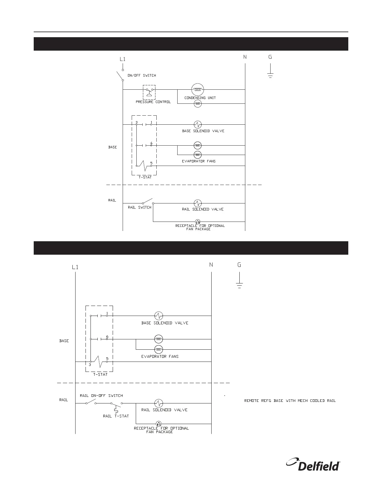
Wiring Diagram, F18MC, F18SC, F18DC & F18RC
Wiring Diagram, F18MR, F18SR, F18DR & F18RR
13
15
Table of Contents
Main Page
Table of Contents
3
Receiving & Inspecting
3
Serial Number Location
4
Warranty Information
4
Regulatory Certifications
4
Specifications
5
Specifications
7
Installation
8
Operation
9
Temperature Settings
10
Maintenance
11
Wiring Diagrams
13
Wiring Diagrams
16
Replacement Part Lists
17
Replacement Part Assemblies
21
Replacement Part Assemblies
24
Standard Labor Guidelines
25
Notes
26
Related product manuals
Delfield F18RC60
28 pages
Delfield F18RC91
28 pages
Delfield F18RC99
28 pages
Delfield F18RC68
28 pages
Delfield F18RR44
4 pages
Delfield F18RR60
28 pages
Delfield F18FC62
28 pages
Delfield F18MC39D
28 pages
Delfield F18MC52E
28 pages
Delfield F18MC60E
28 pages
Delfield F18 Series
28 pages
Delfield F18MC27-BSNP
16 pages