EasyManua.ls Logo

Dell TORINITRON P1130 - Frame Schematic Diagram

Dell TORINITRON P1130
16 pages
Print Icon
To Next Page IconTo Next Page
To Next Page IconTo Next Page
To Previous Page IconTo Previous Page
To Previous Page IconTo Previous Page
Loading...
P1130(E) 4-4
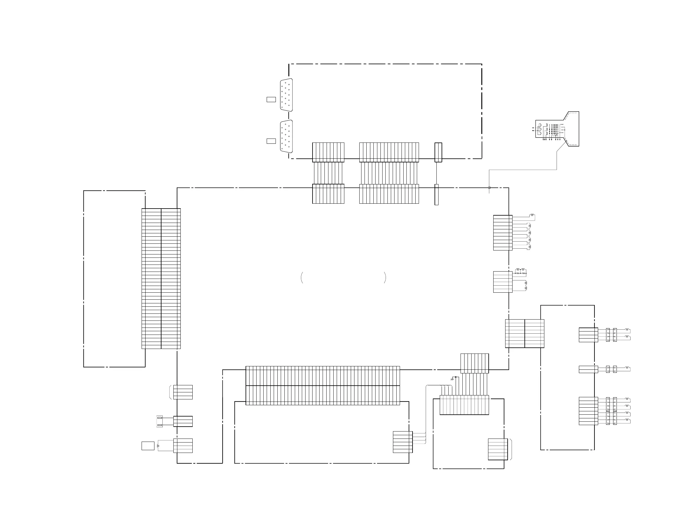
4-2. FRAME SCHEMATIC DIAGRAM
AC IN
LCC-NS
D
HV
DEFLECTION,HDF,VDF,
HV, POWER SUPPLY
B-SS3549<NH.>-KESSENZU-EPS05
H
G1
G2
HG
RGB
PICTURE
TUBE
1.2kV
CN504
1P
1
INPUT2
(HD15)
CN309
HD15D-SUB
5
4
3
2
1
10
9
8
7
6
15
14
13
12
11
INPUT1
(HD15)
CN307
HD15D-SUB
5
4
3
2
1
10
9
8
7
6
15
14
13
12
11
1
2
CN318
2P
G2
G2(NC)
CN1001
44P
44
43
42
41
40
39
38
37
36
35
34
33
32
31
30
29
28
27
26
25
24
23
22
21
20
19
18
17
16
15
14
13
12
11
10
9
8
7
6
5
4
3
2
1
NC
GND
NC
NC
POC
PLL LOCK
GND
S7
WAKE UP
KEY SCAN
IK SIGMA
LED1
LB DET
LED2
V.FBP
INPUT SW
S0
+5V
S1
DGC SW
S2
PWR SW
GND
HTR SW
GND
GND
S3
DDC GND2
S4
DDC SCL2
S5
DDC SDA2
S6
DDC GND1
G2
DDC SCL1
ABL DET
DDC SDA1
HV DET
ECO SW
RXD
IIC SCL
TXD
IIC SDA
CN1104
44P
44
43
42
41
40
39
38
37
36
35
34
33
32
31
30
29
28
27
26
25
24
23
22
21
20
19
18
17
16
15
14
13
12
11
10
9
8
7
6
5
4
3
2
1
NC
GND
NC
NC
POC
PLL LOCK
GND
S7
WAKE UP
KEY SCAN
IK SIGMA
LED1
LB DET
LED2
V.FBP
INPUT SW
S0
+5V
S1
DGC SW
S2
PWR SW
GND
HTR SW
GND
GND
S3
DDC GND2
S4
DDC SCL2
S5
DDC SDA2
S6
DDC GND1
G2
DDC SCL1
ABL DET
DDC SDA1
HV DET
ECO SW
RXD
IIC SCL
TXD
IIC SDA
CN311
17P
WHT
17
16
15
14
13
12
11
10
9
8
7
6
5
4
3
2
1
GND
IIC SDA
IIC SCA
GND
ECO SW
GND
DDC SDA1
DDC SCL1
DDC GND1
DDC SDA2
DDC SCL2
DDC GND2
GND
INPUT SW
VS OUT
HS OUT
H BLK
CN312
9P
WHT
9
8
7
6
5
4
3
2
1
5V
3.3V
7V
+12V
GND
+80V
NC
+B
+B
CN604
9P
BLK
9
8
7
6
5
4
3
2
1
5V
3.3V
7V
+12V
GND
+80V
NC
+B
+B
CN1102
17P
BLK
17
16
15
14
13
12
11
10
9
8
7
6
5
4
3
2
1
GND
IIC SDA
IIC SCA
GND
ECO SW
GND
DDC SDA1
DDC SCL1
DDC GND1
DDC SDA2
DDC SCL2
DDC GND2
GND
INPUT SW
VS OUT
HS OUT
H BLK
N
(
µ-COM
)
H4
(
USER CONTROL
)
L2
(
CY, LCC
)
DA
(
DPU
)
A1
(VIDEO AMP, RGB OUT )
CN1101
40P
40
39
38
37
36
35
34
33
32
31
30
29
28
27
26
25
24
23
22
21
20
19
18
17
16
15
14
13
12
11
10
9
8
7
6
5
4
3
2
1
CN502
40P
40
39
38
37
36
35
34
33
32
31
30
29
28
27
26
25
24
23
22
21
20
19
18
17
16
15
14
13
12
11
10
9
8
7
6
5
4
3
2
1
XSC
YSC
D.TILT
XDC
HFBP
YDC
HD OUT
REFDC
HSHAPE
+12V
NC
+12V
A.GND
3.3V
D.GND
D.GND
HSAW_SW
GXSC
LCC NS
GYSC
IIC SDA
IIC SCL
A.GND
A.GND
H.LINBAL
H BLK
NC
HS OUT
DCC2
VS OUT
VSAWN
NC
A.GND
PLL LOCK
A.GND
POC
A.GND
A.GND
V.DF
H.DF
XSC
YSC
D.TILT
XDC
HFBP
YDC
HD OUT
REFDC
HSHAPE
+12V
NC
+12V
A.GND
3.3V
D.GND
D.GND
HSAW_SW
GXSC
LCC NS
GYSC
IIC SDA
IIC SCL
A.GND
A.GND
H.LINBAL
H BLK
NC
HS OUT
DCC2
VS OUT
VSAWN
NC
A.GND
PLL LOCK
A.GND
POC
A.GND
A.GND
V.DF
H.DF
CN1103
8P
WHT
8
7
6
5
4
3
2
1
INPUT SW
+5V
GND
LED 2
LED 1
KEY SCAN
WAKE UP
+12V
CN1400
14P
CN1003
6P
:S-MICRO (L)
14
13
12
11
10
9
8
7
6
5
4
3
2
1
VX
VY
T_AMB
GND
GND
GND
INPUT SW
+5V
GND
LED 2
LED 1
KEY SCAN
WAKE UP
+12V
1
2
3
4
5
6
GND
VX
VY
T_AMB
LUMI (NC)
5V (NC)
CN1401
5P
TO
MAGNETIC
SENSOR
1
2
3
4
5
6
GND
VX
VY
T_AMB
LUMI (NC)
5V (NC)
CN1101
40P
1
2
3
4
5
6
7
8
CN1603
8P
WHT
1
2
3
4
5
6
7
8
-15V
+15V
GND
GXSC
GYSC
LCC_NS
IIC SDA
IIC SCL
-15V
+15V
GND
GXSC
GYSC
LCC_NS
IIC SDA
IIC SCL
10
9
8
7
6
5
4
3
2
1
ROTATION+
ROTATION
XSC
XSC+
YSC
YSC+
XDC
XDC+
YDC
YDC+
CN701
10P
WHT
:S-MICRO
ROTATION
1
2
LCC-NS (+)
LCC-NS ()
CN1600
2P
WHT
:S-MICRO
1
2
3
4
5
6
7
8
LCC-LT (+)
LCC-LT ()
LCC-LB (+)
LCC-LB ()
LCC-RT (+)
LCC-RT ()
LCC-RB (+)
LCC-RB ()
CN1602
LCC-LT
LCC-LB
LCC-RT
LCC-RB
3
4
1
2
CY4+
CY4
CY3+
CY3
CN1601
4P
WHT
:S-MICRO
V DY
H DY
CN501
6P
WHT
:VH
1
2
3
4
5
6
V+
V
NC
H
NC
H+
DGC
1
2
3
4
DGC
NC
NC
DGC
CN601
4P
WHT
:VH
CN602
3P
WHT
:VH
1
2
3
AC L
NC
AC N
1
2
3
4
D GND
+5V
RXD
TXD
CN1101
4P
WHT
TO ECS

Related product manuals